查看完整案例


收藏

下载
Dream of the Homeland
故園尋夢
@設計手稿
Enter a natural landscape
綠竹幽徑
淮左·竹西是福州首家淮揚菜系餐廳,位於剛落成的綜合性高端商業體——融僑外灘壹號。在本項目中,設計師將“自然”這一截然相反的插件置入商場環境,從品牌到空間,設計師試圖挖掘更深層的淮揚文化,而非對自然的直接摹寫。
入口處,映入眼簾的是象征祥瑞的石獅,一塊方正的墨色巖石映襯著秀麗的字樣,清秀雅致,水面映照寧靜的心境,盈盈動人,筆直矗立的石柱與竹影相得映彰,鋪墊著幽深的自然印象。
設計師在戶外區域打造了六個包廂,將包廂的地面擡高,同時通過木屏風與商場行人的視線之間產生的高度差,確保包廂私密性的同時,也使空間保持通透。
Dream of the Homeland
故園尋夢
在福州当地,喝茶是生活的日常、习惯。因此,在户外景观区的六个包厢中,设计师将其中一个包厢设计为茶室。茶室拥有最佳的观赏景观,坐在茶室内,可以享受到中庭的景观。对着庭中的松枝,煮茶听曲,感受寂静之美。
Impression of Huaiyang
淮扬印象
瓊花是揚州的符號。隔斷、吊燈鏤空的紋樣為瓊花元素,與朦朧柔和的燈光相襯,勾勒著簡潔而雅致的線條。門把手與屏風同樣應用了瓊花作為文化元素,剛柔並濟,處處是溫雅,又盡顯克制。
彤樓漆柱,是蘇式古典建築的一個特色,在木的表面塗上大漆以裝飾建築。設計師采用這一傳統的裝飾,在木柱以及墻以黑漆飾面,以顯高貴典雅氣質,同時偏紅的木色鋁材又使空間保持一種親和、溫馨的質地。
Have a nice moment
歡言得憩
結合空間的格局,用餐區域劃分為室外的景觀區域以及室內的散座區和包廂,兩個不同的區域增加了內部空間的豐富性。
設計師沒有從過多的形式上去表達江南,而是依據對其文脈的理解去塑造空間真正的品格,將獨特、細致的文化符號融合現代,使其成為一種延續。由此提供一種暗示,這個雅致、安靜的空間本身便是一種闡述,並且是具有包容性的。
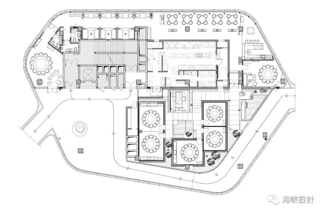
平面圖
項目地點丨中國·福州
項目面積丨580m²
完成時間丨2020.12
設計團隊丨YaoDesign 耀設計
主案設計丨朱壽耀
協作設計丨陳麗媛、路威
攝影丨李迪
朱壽耀/ALLEN—YaoDesign 耀設計 創始人/首席設計總監
陳麗媛
/lavern
—
YaoDesign 耀設計 設計總監
YAO DESIGN 耀設計專註於精品商業空間、酒店、辦公及住宅空間設計,致力於挖掘商業與設計背後的邏輯,用設計創造價值,用設計承載品質生活——以匠人精神,做有識、有度、有心的設計。
整理自「達人設計」
丨海峽飾界丨
設計藝術跨界
END
海峽設計∣一個有逼格的公眾號
手機:17326621923
任何想法、咨詢、供稿都可與我聯系
長按,識別二維碼,加關註
免責聲明:
1. 以上圖片及資料內容來源於網絡,由我方整理,版權歸原作者及其公司所有;
2. 本資料僅供學習研究之用,不得用作於商業用途,若侵犯到您的權益,請與我們聯系刪除;
3. 本文章版權歸本公眾號所有,未經同意不得隨意轉載 ,若惡意侵權將追究其法律責任。
客服
消息
收藏
下载
最近


















































