查看完整案例

收藏

下载
MS MORE DESIGN Mystery Nature
丰盈的人生
一半是日复平淡,一半是历久弥新
用初心描绘生活的纯粹
去化解日常的繁杂与琐碎
便衍生出清雅、澄澈的生活质感
初识这个家
Information|项目信息
约克郡·壹号湖畔
Area|面积
530 平方米
Design Team|设计团队
MS MORE 柯沅伽
本案的女主人时尚精致、形色包容,更是一个拥有三个孩子的优雅妈妈,家是她最深层次的情感寄托。在沟通之初,我们便希望将一种共鸣的生活方式带给居者,而与之邂逅,也如见故友。在本案的空间设计中,基于业主家庭结构及三个孩子成长阶段的现实考量,我们将“Less is More”的设计理念赋予作品。
家,不在于繁杂的堆积,留白的意义,则是让家人用情感将空间填满。
于是,我们用奶油白色系作为温润时光的空间肌理,在公共区域最大程度留白,摒弃过于繁杂的线条、造型装饰,而是把时间花在更多的细节之处,去丰盈家的趣味,让看似平淡的生活也能拥有别致的优雅。
家的留白美学
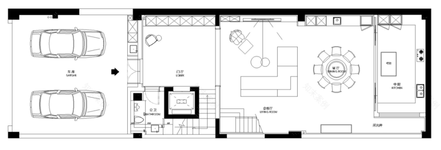
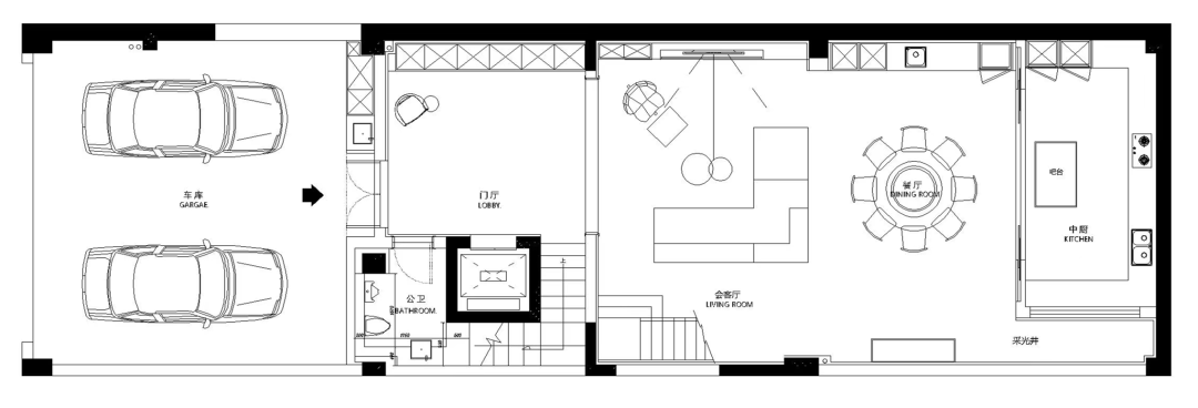
休闲厅
Leisure Hall
本案的一层包含了休闲厅与西厨,这里是离自然风景和阳光最近的地方。
素净且纯粹的格局,就像给生活增添了一份特有的仪式感,将一切美好都包裹进温柔的奶油白里。
在休闲厅内,柔软和可爱占主导地位,PIERRE AUGUSTIN ROSE 沙发一气呵成的弧度,充斥着满满的法式高级和优雅,配合 FLOS 蚕丝灯,更显鬼马俏皮。而那一面静谧的白色电动门,隐藏了电视区域,每一个精雕细琢的小巧思都从这里展开。
西厨空间一览无余的白色更显高级质感,FLOS 吊灯给素净的空间增添不一样的个性。左侧的窗户用同色系的电动门遮挡,拉上即回应了风水的最佳格局,拉开便与自然和阳光无缝连接,尽享宜人的美好时光。慵懒地在窗边看看书,享受阳光的沐浴,而窗边的小圆桌则是下午茶的小天地,更是孩子们与小伙伴聚会的休闲场所。
一本书,一杯咖啡,在这样的氛围之下,每一口甜点仿佛都见证了午后生活的慵懒迷人...
会客厅
Reception Room
黑白灰是永不过期的经典格调,赋予了空间简雅的风韵。负二层作为全家人的客厅空间,以其理性的简洁,搭配个性且品位的软装,中和着家的温馨和感性。
在空间设计上,我们亦将负一、负二层以 loft 的形式呈现,超高挑空、透明玻璃扶手的运用,使整个空间通透洁净,让家的尺度更无限边界。
B&B Bend 沙发一抹沉稳的蓝色让休闲区更添舒适和温暖的质感,混搭酷黑的电视背景墙、晶莹澄澈的玻璃装饰桌,奇妙的组合,让空间呈现有趣的视觉分隔和精英感的清新气质,创造出独特且个性的艺术风格。
在用餐区域,精致圆桌的设置象征着一家人用餐的幸福时刻,铺展出满满的烟火气息;闲暇时间,这里也成为了孩子日常的功课区域,见证着孩子每一次的成长与进步。
餐厅空间内的巧思和雅致,来源于女主人挚爱的餐边装饰柜,同样水晶玻璃的材质,在天井投射的自然采光下更显清透,放上生机盎然的绿植,富有情调的蜡烛、酒杯,无不透露着女主人热爱生活的真挚情感。挑空区域的个性装饰,热情活泼,也丰富了空间的趣味。
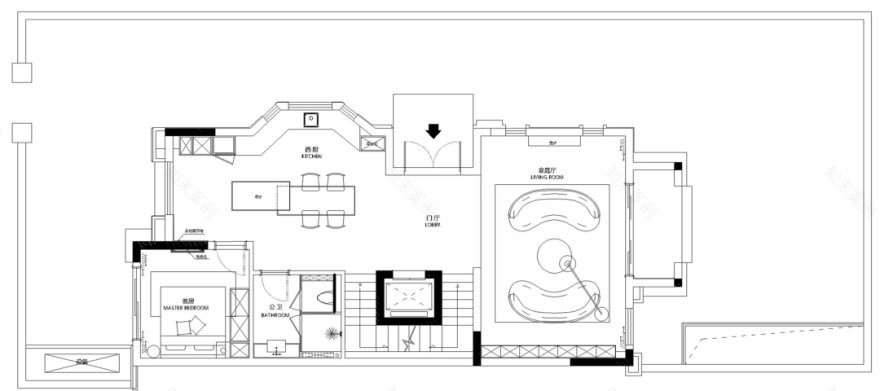
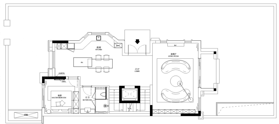
在门厅位置,我们则为女主人贴心打造时尚奢雅的收纳区域,盛放她的收藏与心头所好。醒目的 Heart cone chair 爱心甜筒椅,个性的墙面装饰,配合柔美的装饰灯光,未见其人便能感知女主人的精致魅力。
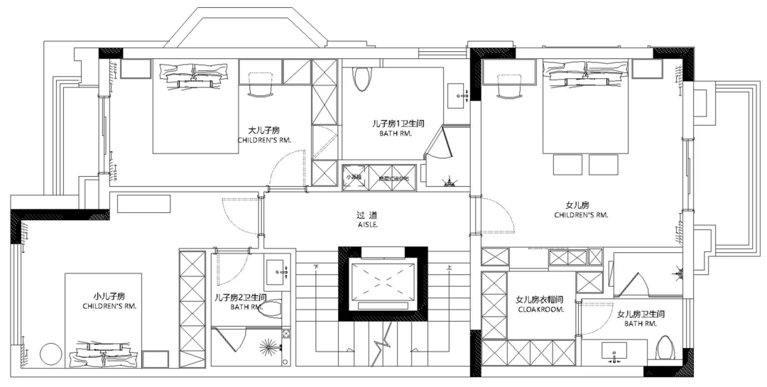
儿童房 Children’s Room
在二层儿童房的打造上,轻松、舒适、简洁是主基调.....此层空间楼梯过道处设有饮水区和迷你小冰箱,方便孩子们的日常生活,而不同细节的空间装饰,又赋予了孩子们不同的期许。
女儿的房间以浅蓝装饰,点缀在床头、窗帘,配合丝缎般的床品与鲜花,凸显女孩子的小优雅,碰撞出专属的私语空间。
大儿子房间的灰色墙面与绿色衣柜形成鲜明对比,SELETTI 猴子灯则让沉静的氛围中多了些许跳跃,为空间增添了几分趣味。
小儿子房间的墙面则运用了若隐若现的月球纹理,个性的收纳柜更添时尚精致,光影重叠下,弥漫着安宁、自然、童真的浪漫氛围。
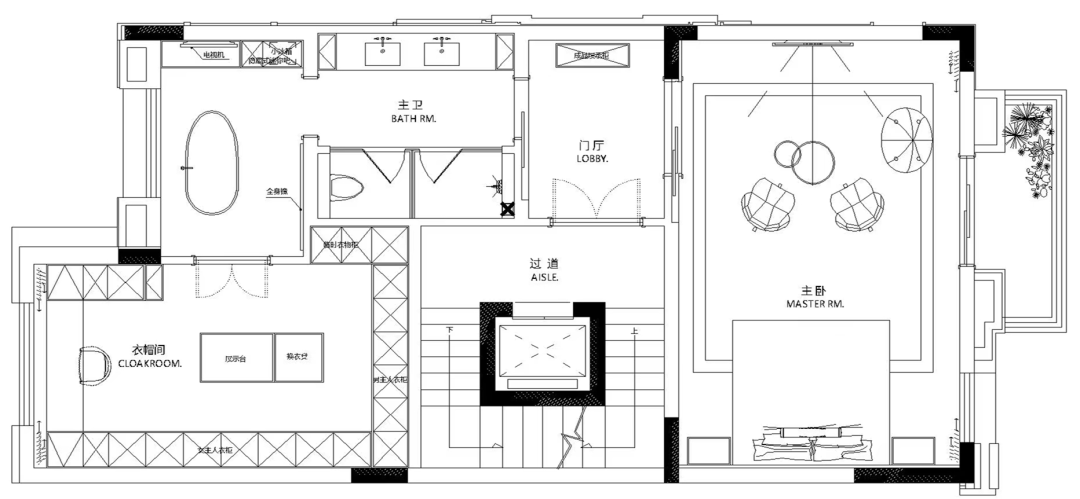
主卧 Master Bedroom
在主卧的设计上,我们则将古典雅致的法式雕花造型呈现在空间之中,满足女主人留学经历赋予的偏爱。
主卧内混搭艺术地毯、个性茶几等活泼元素,增加了都市生活的故事感,无不体现着女主人的生活情趣。
主卧衣帽间与卫生间的设计,则无需过多的奢华修饰,质感可寻觅于纹理,精致可润心于无形,每一寸皆是简美风情。
在主卧空间内,轻盈与沉稳的联结是居者气质的体现,更是浪漫和复古在其中的温柔延展。
花园 Garden
夜幕降临,盈盈灯光照亮花园,庭院在灯光的映照下,展现出与白日不一样的宁静之美。
在这里享受身心的独处,抑或是花前月下夫妻间浪漫的夜话,大有“三千繁华烟过耳,始觉素中欢”的诗意情调...
3. 家的艺术重构
空间实景·VLOG
负二、负一会客休闲空间
一楼休闲厅、西厨空间
二楼儿童房区域
三楼主卧室区域
Less Is More
去繁存简,为空间注入情感与温度,意在还原一个家庭最极致的快乐与温暖。
MS·MORE 创始人
2022 美国 MUSE DesignAwards 设计金奖
青年设计师俱乐部新锐设计师
国际建筑装饰室内设计协会(ICDA)高级室内设计师
国际建筑装饰室内设计协会(ICDA)高级陈设艺术设计师
2021 年度第八届 INNODESIGN PRIZE 国际创新设计大赛专业组“Space & Interior Design”
2021 ICS 国际色彩空间设计奖·年度优秀色彩空间设计奖
Rayli 瑞丽无界轻奢生活方式设计大赛 2021 瑞丽轻奢生活空间最佳设计奖
中国设计星全国 36 强(2021-2022)
40 UNDER 40 中国(重庆)设计杰出青年(2021-2022)
2021 金住奖-中国(重庆)十大居住空间设计师
2021 老宅新生(重庆)十大改造设计师
2021 中国家装设计百强提名人物
2021 她设计奖·年度优秀空间作品
2021 芒果奖·别墅空间类入围奖
M+中国高端室内设计大赛全国 TOP100(2021)
40 UNDER 40 中国(重庆)设计杰出青年(2020-2021)
金堂奖年度优秀住宅公寓设计(2020)
客服
消息
收藏
下载
最近


















































