查看完整案例


收藏

下载
设计思路
part.2
未来将作为婚房,是属于自己的小天地,完全可以按照自己的喜好去装修。➋想将 81 平的精致小家打造出 140 平的视觉效果,小户型摇变大平层。➌三房改两房,主卧要衣帽间,卧室空间怎么舒服怎么来。➍想要 100%落地,对标超五星酒店标准,把高级格调搬回家。
part.3
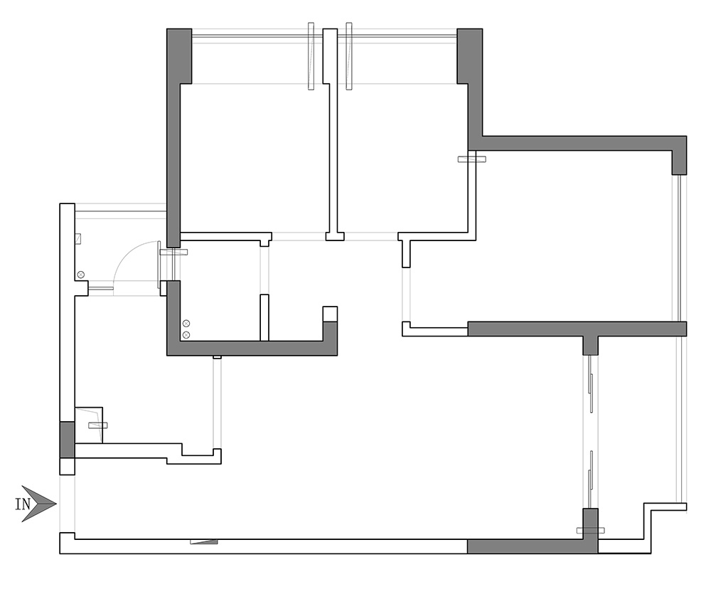
原始户型解析:
❶81㎡三房结构,实用性较高,但每个空间都不大,舒适性偏低。
➋厨房空间较小,操作台面不足,且一门之隔的生活阳台闲置过于浪费。
➌餐厅区域较小,无法正常放置餐桌,动线受阻。
空间改造解析:
依照业主点的“菜单”,设计师使出浑身解数:
❶改三房为两房,为主卧打造一间专属衣帽间。
➋通过无主灯设计,还原层高,拓展立面距离感。
➌打通厨房,外拓阳台,最大化延伸公区空间,营造大平层视觉效果。
➍使用大理石+木饰板+氛围光,升级版“抄作业”对标超五星酒店,把高级大气和低调奢华通通搬回家。
实景照片
质感艺术
不锈钢+木质的结合提升空间质感,将鞋柜做成上下分体悬浮式造型,搭配大理石台面和连接上下柜的开放装饰格,使得鞋柜区域变得不再常规,自带非凡气质。
为将客餐厅这块公共区域尽可能放大,设计师可谓是煞费苦心,将连同客厅一侧的阳台融入背景墙,加大加宽背景墙尺寸,另侧直接延伸至入门鞋柜处,使得一个整面融为整体。
电视墙是灰色大理石墙面叠加木饰面,顺延梁位延展的造型令空间延伸感十足,再加上磁吸轨道灯的运用,扩大了整个公共区域的视觉感,大平层的即视感直逼 100 分!
经过外拓改造的阳台,原结构暴露出来的剪力墙和较低梁位成了硬伤,凹位做储物收纳被设计师巧妙利用,变身加大加宽电视柜。
将裸露梁作弧切面来修饰过渡,和背景墙弧面隔空交错,使得整个空间圆润顺滑,反而成为一大设计亮点,原本的刻意也变得顺其自然。
整个空间统一色调,灰色布艺沙发将精致拉入生活气息,深灰色单椅、几何体小凳子和黑色边几,呈现出不同灰度的色彩过渡。稳重、淡定、务实、从容不迫。
牛皮拼接地毯丰富平面层次感,金色小巧圆形茶几轻松点缀,没有过多占空间,反倒把空间衬托得更宽敞了,玻璃面板和闪耀的金色支架造型独特,十分吸睛呐~
就餐仪式
在厨房和餐厅连接处搭建水吧台,作为西厨区,冲冲咖啡、洗洗水果、备备餐点,都可信手拈来。一体式餐厨将空间完全腾了出来,格局立马被打开。白色岩板餐桌与皮质餐椅,搭配黑色极细桌腿,简约明亮,清爽利落。
可别小瞧这些空间的改造和重构哟,冰箱往哪塞,吧台做多宽,餐桌椅如何摆,一件件不起眼的小细节背后,凝结了太多太多设计师的心血。一分一毫的精准测算尺寸、一点一滴的贴心考虑和细微调整,才成就了最后的恰到好处,一切都刚刚好!
开放厨房
与鞋柜相对的是厨房和餐厅,因业主不常做饭,所以将厨房改为开放式和餐厅连接为一体,另一端则一直延伸至生活阳台,使厨房台面和活动空间得到扩大。自然平衡
木材的选择是本案一大特色,由于业主自家从事木作行业,这个得天独厚的资源必须给安排上!设计师选择现代直纹木皮代替原始树木纹理,大面积对客餐厅、过道墙面进行装饰,使房门自然嵌入墙面,倒成了一种天然的装饰。光影交错之下,温馨如故。
分体式浴室柜是提升高级感的关键,但对下水管的处理要求较高,为了颜值设计师也是拼了!镜柜的实用性毋庸置疑,绝对是小户型必备单品。
过道采用储物柜填充凹陷部门,增加收纳功能。柜门统一配上黑色腰线,与房门向外拓展至墙面的黑色腰线相呼应,这个过道简直太爱了!
甜酣入梦
考虑到业主父母住附近,对于卧室的功能需求,除了主卧外,仅需预留未来儿童房即可。因此,将原来中间的房间进行拆改,一部分用作主卧衣帽间,另一部分用来扩充次卧收纳柜,同步升级了两间卧室空间,嘎嘎棒~
卧室同样是无主灯设计,仅用灯带结合单侧吊灯予以装饰,床头背景延续公共区域的满墙护墙板设计,干净利落。整个卧室空间仿佛洗却所有生活的条条框框,洒脱自如地躺在床上,尽情放松就是啦~
卧室床边预留了衣柜的位置,随时可按照设计方案加装透明顶天立地大衣柜,既不妨碍视线,也可收纳进漂亮的包包、衣帽。转角空间打造成独立衣帽间,开放式和封闭式收纳柜结合,收纳展示两不误!未来理想
次卧作为预留的儿童房,整体简约舒适,并预留出了一块专属活动区域,日后可供孩子玩耍学习。
整墙衣柜连接书桌书柜以实用性为主,白色搭配全屋灰色主调,并在造型上延续整屋弧形元素,使得空间更具整体感。
所谓人生最曼妙的风景,不过是内心的从容与淡定;我们曾期盼外界的认可,到最后才明白,世界是自己的,与他人毫无关系,而我热切期待的家里,能否马上等到那个你?
项目名称:尚峻
项目设计:深圳漾空间设计有限公司
软装实施:深圳漾空间设计有限公司
项目地点:深圳尚峻御园
项目面积:81 平
装修风格:现代风格
客服
消息
收藏
下载
最近






































