查看完整案例

收藏

下载
“ZS ART 之上艺术”艺术中心选址杭州钱塘江畔一线江景CBD,空间被横向切分成两半,“一半艺术、一半自然”,又相互穿插。
一半的弧形美术馆空间,以弧线引导路径,切换画面;强调小单元弧线重复和聚集,结构主义建筑最直观的特质。另一侧的会客和多功能区域,是自然与现代交融的聚会空间,可以欣赏到开阔宏大的山川美景。
杭州这座城市以美丽的自然景观、历史悠久的南宋文化、现代化的繁华都市完美结合而闻名。
作为一家全新的艺术中心,“ZS ART 之上艺术”选址于杭州钱塘江畔一线江景CBD。
像这座城市一样,“一半文化,一半自然”,“ZS ART 之上艺术”在引入开阔宏大的钱塘江自然景观与城市霓虹的同时,拥有优雅的会客和活动空间,以及宁静的展馆空间。
设计团队将艺术中心赋予多重的内
涵。后疫情时代,人与艺术的关系也将被重新看待,艺术品正在帮助突破人与人之间的隔阂。因此艺术中心被视作一个交流的窗口,主办方或者策展方得以和客户、合作伙伴们一起,分享艺术以及对未来和当下的思考。
因此该艺术空间也需要具备多重属性。与具有固定目的的空间(典型如画廊)相比,该空间将画廊与会客、沙龙以及多种不定活动的功能有机地结合在一起,可以有效激发人们在使用该空间时的想象力和创造力。
该空间可以方便地切换成阅览室、会议室、酒会、音乐会、晚宴、会客、团体娱乐活动、私人展览、公共展览等不同的使用场景。
弧形的美术馆空间,如同帐幕。“帐幕”一词,来自圣经启示录里的帐幕这一意象,用以形容神在人间与人同在的居所,是圣洁、朴素、无垢之地,寓意纯洁和保护。
今天,科技快速发展,日益追求效率,这带给人们很强的压力和侵略性,因此设计团队想要创造一个传达柔软与谦逊、文化与历史的空间。也寓意“ZS ART 之上艺术”在当下的时代强调艺术的价值:我们需要通过艺术保护我们的精神家园。
沿着钱塘江的水平面,我们横向切分了两个空间,又相互穿插。一半的弧形美术馆空间,有着帐幕一般被包裹,被保护。在这个空间里,我们强调小单元弧线重复和聚集,结构主义建筑最直观的特质。用弧线引导路径,切换画面。
从入口踏入艺术空间的时候就会被包裹在弧形的帐幕里,向帐幕外望去可以看到开阔的江面,人们会自然地先走出帐幕,走入自然与现代交融的聚会空间。
我们用艺术多元,把割裂变成了空间的延展,用人串联起空间更多可能性。
阅览室更像画廊的延伸,安静的气质,供阅读的同时兼容艺术分享课程,兼容落日私宴。共享客厅,更像私人艺术沙龙的延展。吧台区域,兼容落日咖啡和微醺时光,为多元活动提供更多都市松弛感。
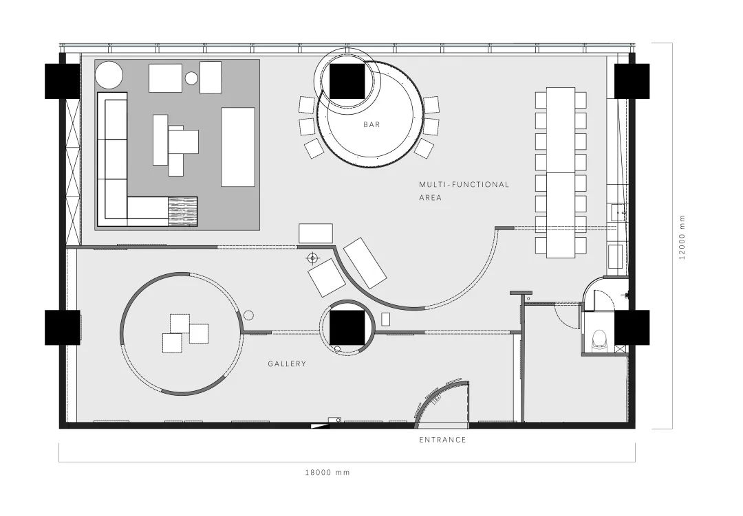
平面图
项目信息
项目名称 | ZHISHANG ART 之上艺术
项目地址 | 中国杭州
项目面积 | 300㎡
完成时间 | 2022年7月
设计公司 | 之恩设计
设计总监 | 沈恩密
项目摄影 | 郑焰、感光映画
品牌支持 | 之上艺术、Vitra、Thonet、感物地板
鸣谢艺术家 | 岳书亚、张鸿禹、李旭
ABOUT ZN DESIGN
ZN DESIGN
之恩设计是由沈恩密女士(
Amy Shen
)于
2017
年成立于杭州。以室内设计及艺术陈设为基准,致力于酒店,商业会所、地产示范区、艺文展示、私人定制别墅,一体化的综合性设计机构。旗下有原创家居品牌“之上艺术 ”。主张“栖身自然、优雅艺术、前瞻未来”的设计理念,公司项目获得众多国际奖项。
ZN DESIGN
杭州之恩设计事务所
0571-86507018
17280179105
杭州滨江科技馆街1600号
银泰国际商务中心35F
客服
消息
收藏
下载
最近














































