查看完整案例

收藏

下载
《看不见的城市》
《看不见的城市》
连绵的城市无限地扩张,城市规模远远超出了人类的感受能力,这样的城市已经成 为一个无法控制的怪物了。这就是后工业社会中异化了的城市状态,而这种状况会一 直恶性循环下去。
“我希望能够远走,逃离我的所知,逃离我的所有。我想出发,去任何地方,不论是村庄或者荒原,只要不是这里就行。我向往的只是不再见到这些人,不再过这种没完没了的日子。我想做到的,是卸下我已习惯的伪装,成为另一个我,以此得到喘息,于是我们在岳麓山中建起了这座
乌托邦
。
”
项目名称:镜中
项目类型:民宿空间设计
设计面积:300 平方米
项目地址:湖南 长沙
设计时间:2020年3月
室内设计:凡兮设计师事务所
艺术装置:凡兮设计师事务所
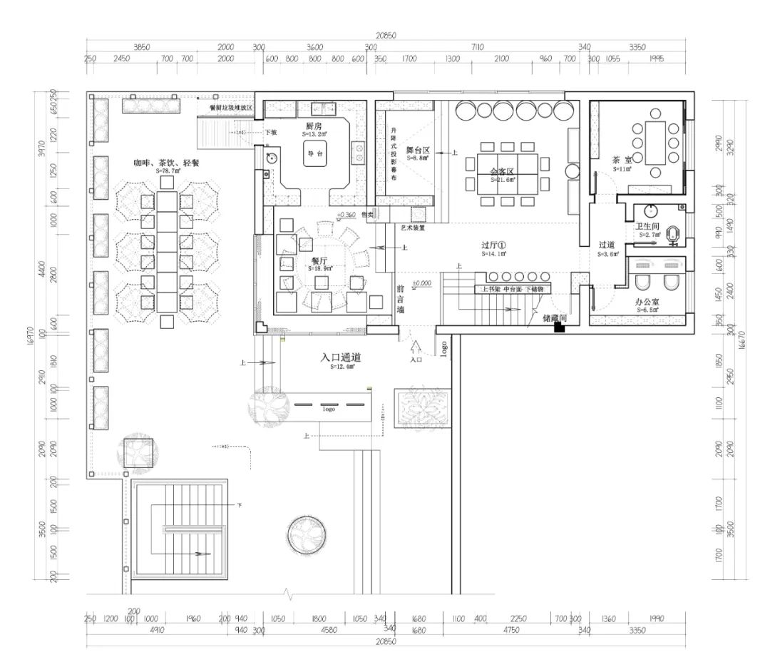
一层平面方案
二层
平面方案
三层
平面方案
室内效果图展示
场景对比
客服
消息
收藏
下载
最近


































