查看完整案例

收藏

下载
喜茶空间设计团队通过对店面地址的解析、对本土文化的深入挖掘,和中国茶文化、喜茶品牌结合,向HOPE提出“在地性”的设计理念,和HOPE团队进行灵感碰撞;如何提升运营服务效率的同时,探寻地域文化的记忆、打造人们可参与的场所,形成能触发情绪的场景,成为本案的中心议题。
我们力求在设计中把成都老茶馆的“人间烟火”气息和喜茶“灵感之茶”的先锋、前瞻品牌文化建立对话。重新搭建成都人泡茶馆的新“市井”生活场景。
# 01
成都在地文化记忆
有谚语说:
四川“头上晴天少,眼前茶馆多”。
不无夸张地说,成都人过日子,一半 在火锅店,另外一多半则进了茶馆里。
要了解成都的风土人情可以先从老茶馆坐起。
"杯里乾坤大,茶中日月长
"
汇聚
三教九流
之客,容留南来北往之风。露天院子,竹靠椅、小方桌、三件头盖茶具、泡茶馆、搓麻将、打长牌、自得其乐。我们追寻这种最质朴、市井、巴适的生活方式,试图搭建HOPE人心目中的成都老茶馆“人间烟火”气息的空间语境关系。
# 02
提炼成都“市井”情绪
成都人喝茶讲究舒适、有味。
椅子都是代表茶馆特色的竹靠椅,让茶客想躺就躺想坐就坐,
椅子都是代表茶馆特色的竹靠椅,巴适得板。
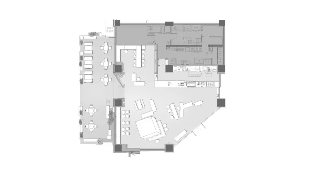
空间呈梯形,斜面主入口。我们打破传统座位布局形式。设计多样的座位组合方式。对坐、反坐、围坐,不同的坐下来的方式出现在同一个大空间内,私密性与开放性共存。让每个消费者都能寻找到各自舒适的空间“游玩”线路。
◆
局部分解图
空间由灰色的马赛克作为基底,不锈钢骰子装置、原生竹木条凳与俚语牌构成具有年代感与趣味性的画面。回溯80年代成都街头、茶馆随处可见的人间烟火——劳碌一天的人们围坐在一起或坐或趟,聊天消遣、肆意人生。
在户外窗对景的空间中心投掷了一颗骰子。视线穿过一大扇落地窗撇见它的一眼,拉回你所有目光,透过月亮门你与喜茶的故事就此开始。
骰子内部是镜面不锈钢空间,地面铺上回收灰砖,中心生长青竹艺术灯,通过镜面的反复,搭建出陶醉感和梦幻感的小天地。
徜徉在成都市井生活的氛围里,沉醉于玲珑雅致的朦胧风韵中,一把竹靠椅独坐幽林处,灯光从枝杆缝隙中洒下,让人们浮躁烦乱的内心,感觉丝丝清凉的气息与安闲惬意的感觉。
◆
局部分解图
不锈钢立柱固定原生竹木条凳,人群自由的穿梭其中,如在竹林般放松惬意
◆
局部分解图
我们把
成都茶馆
最有特色的俚语,以可视、可忆的灯箱形式穿插在整个空间中。如:“茶轮”“板凳戏”“喝加班茶”“喊茶钱”“摆龙门阵”“胡了”,这些传统记忆通过信息的重复输出,把这些即将失去的地域特色文化重新植入到消费者内心中。这正是成都被时代潮流冲淡的那“烟火气息”的延续。
成都的露天院子是生活空间的延伸,也是人们闲下来后故事的开始。将外立面做斜切引导,结合川西民居雨檐,打造喜茶的后院。
人们在户外相邻的靠椅上坐下来,向外伸出的屋檐遮断了阳光,身处在凉爽的阴影中,看着熙熙攘攘的人流与车流,仿佛在和市井进行一场慵懒的对话。空气中飘扬着老茶馆的味道
◆
局部分解图
项目信息
设计公司:HOPE DESIGN 尚希设计
项目名称:喜茶成都SM广场店
位 置:成都市成华区SM广场
设计面积:252㎡
设计时间:2019年08月
完工时间:2020年01月
设计总监:韩薛 LIKE HAN
主案设计:叶芳顽 ALEN YE
设计团队:叶晓莹、潘焕、张明远、王振锋、杨永健
摄 影
:
贺川
主要用材:苹果砂不锈钢 原生竹木 马赛克 回收灰砖
鸣 谢
:
喜茶HEYTEA
客服
消息
收藏
下载
最近































