查看完整案例

收藏

下载
The Urban Land Institute (ULI) is a non-profit education and research institute supported by its members. Its mission is to shape the future of the built environment for transformative impact in communities worldwide. Established in 1936, the institute has over 45,000 global members representing all aspects of land use and development disciplines.
ULI first began the Awards for Excellence program in 1979 to recognize truly superior development efforts. Awards recognize the full development of a project - planning, construction, economic viability, management, and community impact, as well as design. Projects are assessed by the jury on the extent to which they are distinctive and innovative, showcase sustainability and resiliency strategies, have replicable components that can be adapted in other communities, and have meaningful impact on the surrounding community. Winning projects represent the highest standards of achievement in the development industry.
Universal Creative Square involved the adaptive reuse of a former Walmart warehouse (one of many in the area) that occupied the lower three floors of a seven-story building in Beijing’s growing technology hub of Wangjing. The repurposing was complicated by the fact that the upper four floors of the building had a different owner, meaning work had to be completed while tenants continued to occupy the upper floors.
BEFORE
Another challenge was that the pre-existing space was created for a big-box retailer, it lacked natural light and consisted of very deep floor plates that made it less than ideal for use as offices.
BEFORE
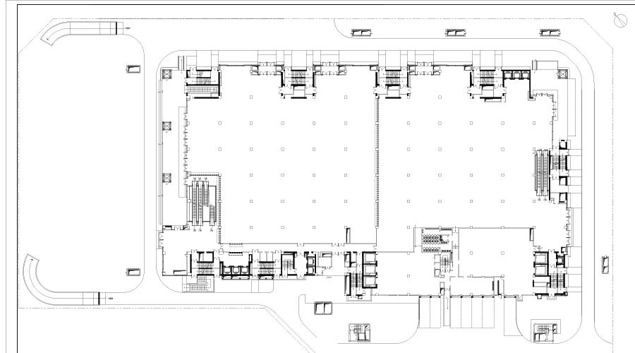
BEFORE - Site Plan
AFTER - Site Plan
To address these problems, designers introduced:
A ‘townhouse’ strategy
that partitioned floor plates to create a number of separate offices rather than a single large space on each floor. New ground floor openings were then introduced to facilitate access to the individual offices. These openings have also contributed to improved pedestrian circulation across a landscaped, publicly-accessible community area outside the building. Given the younger demographic office workers now occupying UCS, the space has become a vibrant hub for the overall neighborhood.
Design Strategy
Design Strategy
Landscaped Plaza
To bring light into the newly-partitioned space
, a significant area was cut from the three-floor slabs at the center of the building, creating an unsymmetrically-shaped atrium. While the current building configuration does not allow natural light to be introduced into the atrium, the new space still serves as a light well, creating a sense of openness in what would otherwise be a claustrophobic layout.
Cut Light Well
Individual Office Entry
In addition, an articulated building façade was constructed that meshes well with the pre-existing façade on the upper floors, resulting in a holistic and aesthetically appealing external appearance.
Facade Study
Facade Details
UCS has also incorporated a significant volume of retail (in particular food and beverage) space on the ground and basement floors. This serves the needs of both building tenants and also the entire neighborhood, given a previous shortage of retail facilities due to the impact of local planning regulations. UCS is located in the middle of Wangjing, it has now become a key component of a district-wide regeneration strategy, helping transform the area into a vibrant neighborhood.
Following completion in mid-2019, developers have created 50,000 square meters of upscale technology offices. According to one juror: “It’s interesting how they have sub-divided floor space to intentionally create small tenancies where they could have just kept the large floor plates with one tenant per floor. Dividing it into four suites spread across multiple floors creates a very dynamic space.”
Given the large number of outdated premises in inner-city locations that are currently unfit to meet the needs of modern-day office tenants, the mature whole-lifecycle development strategy and unique design approach offered by UCS has produced a replicable template for the transformation of other large floor-plate spaces in cities across China.
Xiaomei Lee
Regional Managing Principal, Greater China
Successful design can bring people together and create opportunities for meaningful interactions. A truly viable 20-minute city offers a network of shared spaces that can help foster connected, thriving communities for the benefit of all. Office buildings will attract new tenants by being part of the community. Their ground levels will become the anchors of the 20-minute city. Community-oriented programs serve both building tenants and neighbors at different times, keeping the space activated for at least 18 hours per day.
Hasan Syed
Design Director
As the world’s largest design firm, Gensler has a unique obligation and opportunity to focus on sustainability in the built environment. It’s our responsibility to reposition a building through an adaptive reuse approach. In top tiers cities in China, repositioning can also reduce the risks of planning approvals especially in the cities like Beijing and Shanghai.
Su Chen
Regional Repositioning & Landlord Services Leader
During the renovation of UCS, we combined experts from different practice areas to spur new ideas. New design elements were added to the pre-existing building without competing with the reserved features, to reimagine the building. We fully explored the potentials and create a flexible workspace that keeps evolving with the market.
Roman Wittmer
Senior Designer
Urban renewal is the key to the future needs of our cities. Repositioning serves as the immediate solution to recreate cities, places and buildings in our aim for the sustainable city. UCS was created under these principles of sustainability and value creation, to lessen our impact on the environment we live in.
The reposition of UCS constitutes a work and lifestyle complex that became one of the transformational drivers for this area.
CLICK THE IMAGES TO SEE BEFORE AND AFTER COMPARISON
▼
客服
消息
收藏
下载
最近
























