查看完整案例


收藏

下载
结庐在人境,而无车马喧。问君何能尔,心远地自偏。采菊东篱下,悠然见南山。山气日夕佳,飞鸟相与还。此中有真意,欲辩已忘言。
—— 陶渊明《饮酒》
「隆园双庭 借景通达 」
园
融合岭南园林的造园特色
庭
打造中庭花园 冬可沐浴阳光 夏可观看繁星
景
借助自然景色 同时营造人工景观
达
视线通达 交通便利
位于广东惠州的隆腾盛世K3别墅
,打造了一个1100平米的院墅产品示范单元。多维度空间设计,外景内院,全生态环绕,推窗即见美景,出门即入庭院。建筑外立面采用中式现代风格,精致明朗的线条展示了东方的美学形式。
中心庭院通达至天,移光入井,可赏春花秋月,可看书、品茶。竹影成诗,白墙如宣,让光线射入井内,同时结合晶莹通透的玻璃与泛光灯带,模拟自然天光,使庭院尽端延伸至园景的竹林中去。
▼中心庭院 / 负二层
Central Courtyard
/ B2
光影婆娑的竹林 ,凸显其独有的肌理与朴素质感。
闲坐于院内,听微风吹着竹叶沙沙作响,看竹影在墙上留下的画面,摇曳间不断变换。
▼运动健身区 / 负二层
Sports And Fitness Area
/ B2
现代生活中,车库已经成为主人回家、客人拜访的主入口。因此化地下车库为名车展示,弱化地下空间感,呈现生活艺术的气质。
▼名车展示 / 负二层
Private Garage
/ B2
负一层围绕中庭花园增设空中廊道半室外空间,减缓地下9米的落差感。
将外部的清风明月引入室内,同时也是负二层的遮阳屋檐,增添了生活的志趣。
▼空中廊道 / 负一层
Air Corridor
/ B1
步入空间,耸立着开敞通透的偌大门扇,以如同编织的型态呈现,左侧设有中式庭门,与中心庭院相连,将庭院内的万象有机地融为一体。餐区的设计亦以简雅为意,贴近自然的木色与纹理、古雅的圆盘与清冽的琉璃器物等陈设,在弥漫着一室淡淡花香的空间内,娓娓地述说着东方的故事。
一步一景,步移景换。这样的意境诉诸于现代空间里,必然成就风雅人文气之所。在暮色渐起,华灯冉冉时,在觥筹交错,交谊热络间对于此景留下深刻的印象。
▼18人宴会接待厅/ 负二层
Banquet Reception Hall
/ B2
会客厅利用半室外的空中廊道来模糊室内外的界面,创造一种开放而又充满层次的漫游环境。清风在门扇间肆意流通,是空间的区隔也是链接,将内外的光景各自框成一幅画面,静谧而美好。
一侧设有茶室,辅助主厅使用。微风徐徐入堂,人们斟上半盏清茗相对而坐,宁静悠远的不止是空间,更是心境。
▼会客厅/ 负一层
Reception Room
/ B1
▼品茗室 / 负一层 Tearoom / B1
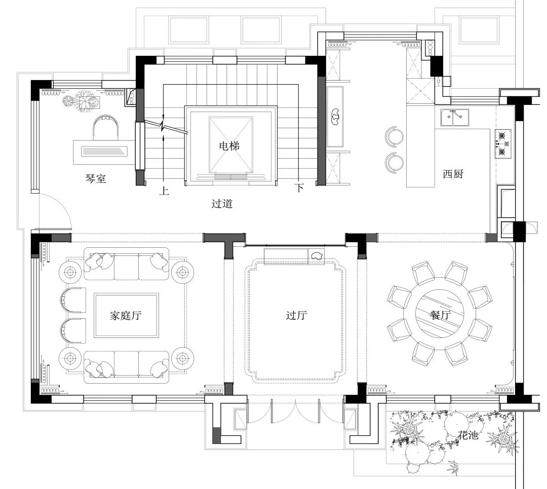
一层为家庭活动区域,从符合国人的生活使用习惯出发,主入口设在坐北朝南处,设有宽阔的玄关、西南侧的家庭厅及东南侧的餐厅。
开放式的空间布局纳入更多自然清气,现代形制的家具陈设糅合中式绵绵古意,贯穿于空间的情致中,将俊雅幽然的氛围无声地渲染。
▼玄关 / 一层
Vestibule
/ B1
▼家庭厅 / 一层
Family Hall
/1st floor
▼餐厅 / 一层
Dining Room
/ 1st
floor
▼厨房 / 一层
Kitchen / 1st floor
檐下的古人文思泉涌,庭院深深,看堂前花开花谢,斗转星移,望檐上云卷云舒。
将传统美学渗透进山水城市生活的日常之中,营造朴质幽然而予人安适惬意之感。
▼书画室 / 负一层
Painting Room
/ B1
▼接待室 / 负一层
Reception Room
/ B1
格栅与灯光的编排引发空间节奏感,灰色肌底延续前厅的冷静,轻奢质感的金属材质与深色木纹多重拼合,着重的色彩显得沉稳、儒雅。
在起伏的
山峦间,鉴赏国之艺术的别具匠心。
▼艺术品展示区 / 负一层
Art
Exhibition Area
/ B1
主卧是简洁质朴的设计,用色雅致,着墨不多,却在不露声色中流淌出涓涓禅意。
两侧有设计了规整的镂空屏风造型。
带着浓浓古朴韵味的插花小品修饰着空间,清透的玻璃透着微
烁的光,退却喧嚣,使自然之力生息不绝。
试图创造一个让人眷恋,充满温情的空间。
▼主人房 / 二层
Master Room
/ 2nd floor
长辈房色系质朴统一,木质、石材等材质交互运用,空间感受于宁静之中又饱含温润之意。
床品也以另一种方式与其相延展,庄重之外兼济柔和之美,使得这个休憩空间流露着一片素净淡雅的美。
▼长辈房 / 二层
El
derly Room
/ 2nd floor
床头背景墙上简约型的金属线条与素色模块勾勒出一轮轮弯弯月型,也能一窥其轻巧恬静风采以及饱满的艺术涵养。
▼女儿房 / 三层
Daughter Room
/ 3rd floor
儿子房贯彻蓝色基调并辅以航海元素作为爱好的点拨,在欢乐之时保持一颗至臻的童心。
▼儿子房 / 三层
Son Room
/ 3rd floor
▼设计图纸 / Design drawings
△
-2层平面图
△-1层平面图
△1层平面图
△2层平面图
△3层平面图
项目信息/INFORMATION
项目名称:隆腾盛世花园K3单体别墅
项目地点:广东 惠州
设计面积:1100m²
设计管理:李东泽、李东阳
主创设计:宋红阳、李欣
参与设计:张浩南、苏广栋、徐斯杰、黄俊瑛、张西建、文丹
软装设计:宋嘉音、刘贤双、黄思燕
项目摄影:释象万合
设计时间:2017年9月
完工时间:2018年9月
END
END
▼点击"阅读原文"进入公司网页
客服
消息
收藏
下载
最近





































