查看完整案例

收藏

下载
项目地址:壶山一品二期 【浙江武义】
设计单位:欣家装饰
施工单位:欣家装饰
室内设计:何俊杰 吴婷
主材品牌:金意陶瓷砖 箭牌卫浴 天格地板 家美佳家居
柔曼布艺 维意定制 启明灯饰 德国汉莎定制
鸣谢:帅气的DAMAO.敬爱的DAMAO爸爸妈妈.【业主】
在很久很久以前......
何以与DAMAO相见与
一间破工作室
于是就有了后来的
方案
负一层平面布置图
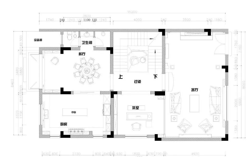
一层平面布置图
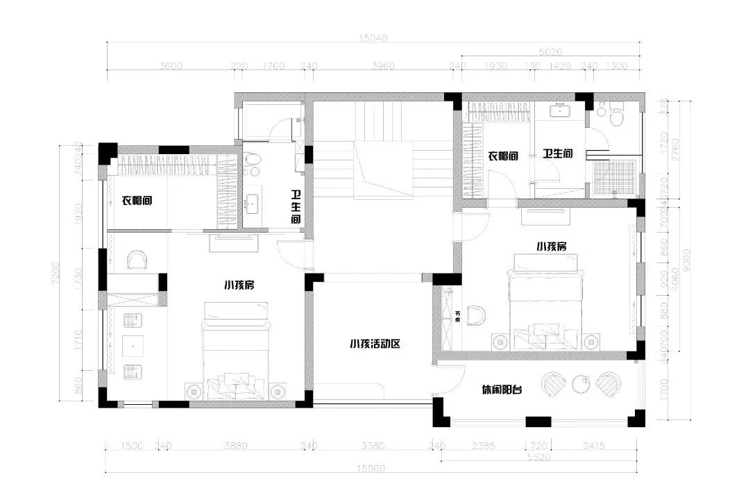
二层平面布置图
三层平面布置图
初见DAMAO
【PS:20年出头的印钞机】
帅气
帅气
还是帅气!
问
可否有配偶
答
装修当婚房
问
谁说了算
答
母亲大人
负一层效果图
一层效果图
后来.....
这位母亲
以姐姐的样子出现
告诉我 她想要
美式的格调
适合DAMAO年轻人的气息
于是就有了......
何以认为
经典风格肯定是存在的
【PS:无风格论很扯淡】
说是风格混搭
实质上是两代人的审美结合
那么如何做到协调......
【PS:说得清楚还需要画图纸吗?别扯了】
实景
负一层实景照片
那么问题来了.....
为什么实景与效果图
如此接近
【PS:不接近要图纸干嘛!】
一层实景照片
为什么这些实景这么像实景
没错你猜对了
用DAMAO的IPHONE拍的
【PS:没米买单反喽】
借口 更真实
二层实景照片
三楼实景照片
所以......
即设计.则呈现
饰家热线:13566751311
客服
消息
收藏
下载
最近


























