查看完整案例

收藏

下载
引言 / Preface
一个动势,拔地而起。作为展厅,其外表有着强烈的昭示性,相对的封闭引导视觉内向收敛,人的穿越有如一场仪式,脚步声、呼吸声、衣物摩擦石壁的声音——纤毫毕现。
-入口区-
入门处空间内外间隔但不隔绝,通透的玻璃金属柜传递庄重而神秘的吸引力,激发向内探索的欲望。
- 现代橱柜区
中岛与吧台设定,作为家庭的重点核心区域,将就餐层板横架在两者之间,给观者以生活的想象,引领全新的生活方式与状态。
- 衣帽间区 -
- 现代沙发休闲区
- 洽谈、材料区
- 走进空间内部,利用金属夹丝玻璃屏风界定空间,方块空间造型及层板设计展现形体上的流线层次。艺术涂料平静、木质温润、与铁件结合伫立其中。
-新中式
区
-儿童玩乐榻榻米区
-简欧轻奢
区
-现代轻奢区-
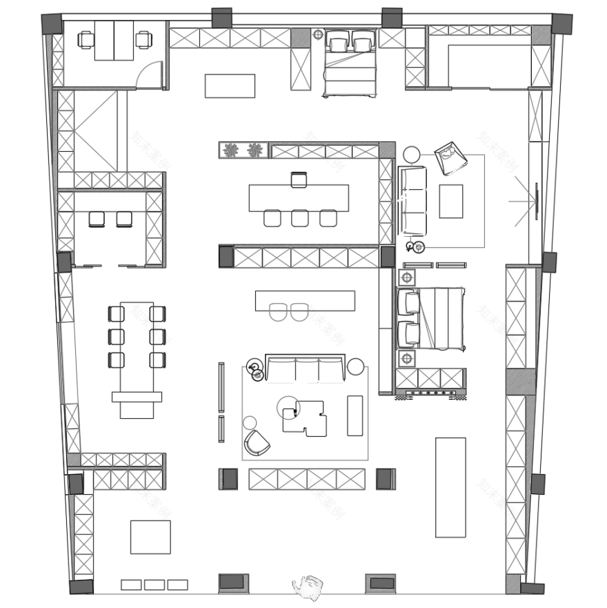
睡眠区、衣帽柜、梳妆台打造一体化的卧室空间,温润的木皮作为基底与材质色彩相互对比形成视觉深度,运用材料转折于空间之中。在格局规划上,由公共空间至起居空间层层叠入,跟随功能转换,通过材料的重新组合传达不同的心灵感受。有序的对称性增加空间仪式感,自然的材质与对细节的打造提高空间的精致度。-平面布局图-
项目信息——
项目名称:合生全屋定制展厅
设计方:L.J DesignN l
设计机构:理基室内设计事务所
主笔设计:冼俊杰
设计团队:陈蕾、梁庚鳞、陈燕威
项目地址:佛山
开启一场情绪与空间的对话。
“一切材质的表达、形态的构成、灯光的运用终都会回归空间情绪的传递,空间情绪是跳脱时间与空间维度,更真实的存在。本来之间以改变万千家庭生活方式为出发点,塑造空间情绪为终目的,回归原本的生活状态。”
-入口区
- 儿童区
- 员工区
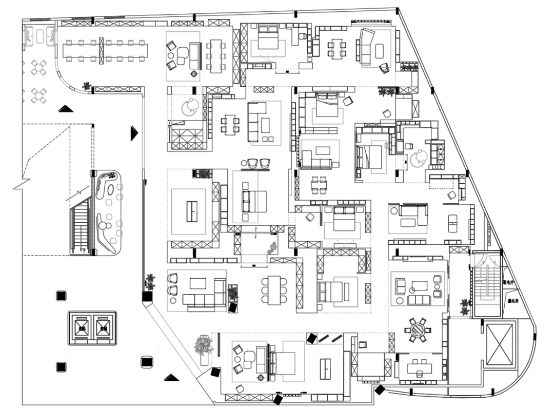
- 本次空间设计的核心功能规划分别是办公区、选样区、开放客餐厅及衣帽间展示,由于需要将功能、实用与展示完美结合,并体现空间的接待功能,所以尽可能将空间开放,让整个空间有一种向外的张力,体现出一种自我表达和展现的大气。
- 选样区
- 柜体展示区
生活美学与艺术创作的融合,既有气定神闲的潇洒,又有创新的无限进取。既有利朗的线条表现,又用精致细腻的装饰细节。
如果我们把产品看做艺术品...
//始于生活·成就品牌
开放式的空间以不同材质不同向度的分割,创造多层面的层次,以五感为传递媒介,给观者不同情绪的带入。
客餐厅与西厨区域结合塑造完整的功能形态,大面积的电视柜与餐厨柜体、不同材料不同形式的运用,有透空有后退,以退为进,厚重大气而不失轻盈、律动。电视柜植入移门的应用,满足设计与机能的双重标准。西厨区提升生活品味,塑造多元化的生活场景。
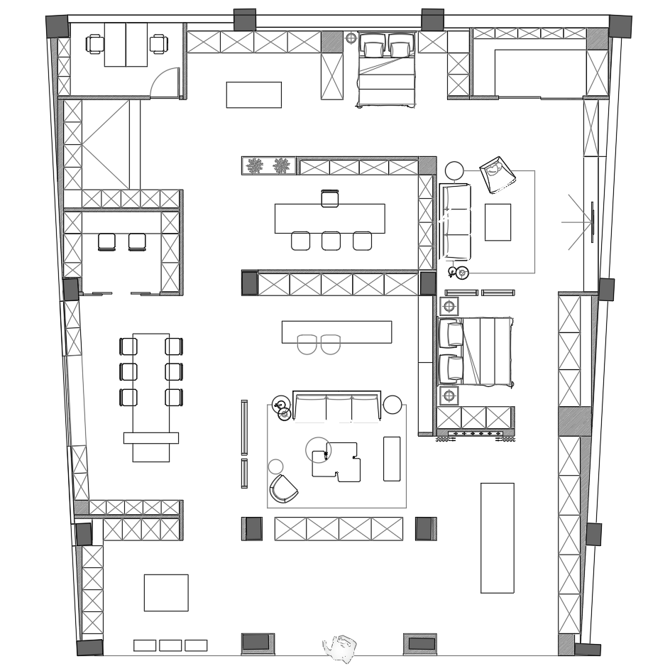
-平面布局图
项目信息——
项目名称:A 家家具全屋定制展厅
设计方:L.J DesignN l
设计机构:理基室内设计事务所
主笔设计:冼俊杰
设计团队:陈蕾、梁庚鳞、陈燕威
项目地址:佛山
在设计师看来,空间不只是容器,更是人与自然完美关系的演绎。以光照拂,塑造万物与空间共生,以此展开更多联想,永无止境。
大面积的材料传递空间的情感,地面材料的区分,用不同元素表达不同的感受,强调不同空间属性。墙面造型搭配艺术装置,增加记忆点,弱化量体原本的厚重,产生有趣味的空间状态。
设计通过空间感与尺度感的控制,结合结构与秩序的关系,利用岩板至大、至轻、至薄的可能性,将理性与感性融合出独特的设计语言。虚实相映,柔中带刚,大开大合。
项目信息——
项目名称:恒威陶瓷展厅
设计方:L.J DesignN l
设计机构:理基室内设计事务所
主笔设计:冼俊杰
设计团队:陈蕾、梁庚鳞、陈燕威
项目地址:佛山
如果您喜欢我们的作品
希望您关注我们
细节注重品质品质专注设计
客服
消息
收藏
下载
最近












































