查看完整案例

收藏

下载
在 UNO 落地的第一个项目,柳州螺蛳粉小镇会客厅中,对于建筑幕墙穿孔板的表达和应用,我们一直充满遗憾。当时受制于时间和技术,没有完整地表达我们对于设计的理解。
在 UNO 近期落地的“游戏屋”——江津幼儿园项目中,团队得以重新思考和表达。我们扮演了幕墙深化设计的角色,使得建筑设计概念在幼儿园主立面得以呈现。
本文分享了全部设计过程,用于记录,并期望多与大家沟通,交流和理解。
——Team UNO
穿孔板的来源
穿孔板,又名冲孔板、冲孔网筛,是由铝合金属板经过冲压床或铣床加工而成,是一种装配式预制材料,具有加工快捷,轻质环保,防火安全,安装方便等诸多优点,现广泛应用当今的建筑设计以及景观或室内项目中。
Image_01_Resource: FAÇADE COMMISSARIAT DES MUREAUX EN TÔLE PERFORÉE
1. 穿孔板的形式与材料
1.1 形式
Image_02_Resource: Internet collage
穿孔铝板在加工过程中,通过加入各种合金元素,提高了板材的力学性能以及化学指标,使其延伸率、硬度、抗拉强度、屈服强度、抗腐蚀性、可焊接性等指标均非常适合屋面卷边、轧压设备的加工[1],为表皮设计提供了更加丰富自由的形式。
1.2 图案
Image_03_Resource: Modern Decorative Digital Panel and Stencil Laser Cutting Card CNC kit(Etsy)
根据穿孔板的金属工业特性,可以定制丰富多样的图案形式。
1.3 分类
Image_04_Resource: metalmeshcorp
Image_05_Resource: Rob Cleary (Reddog Architects)
根据材质类型可划分为:
不锈钢板、低碳钢板、镀锌板、PVC 板、冷轧卷、热轧板、铝板铜板。[2]
根据喷涂类型可分为以下三种:
1)喷粉铝单板:仅限于室内使用,造型低廉,不可经历室外日晒雨淋。
2)聚酯喷涂铝单板:可用于室内外吊顶及幕墙装饰,能经受轻微的日晒雨淋,但不能长期放在极端天气里。
3)氟碳铝单板幕墙:可用于室外的幕墙铝单板,大量应用于机场,体育馆,候车室等公共建筑外立面。
2. 建筑的半透明性
“正是光使得人们能够看到建筑”——让•努维尔
由穿孔板构建的建筑表皮给人带来如同面纱一般的朦胧美,打破了由砖墙石砌带来的实体界限,在视觉上形成强烈的对比和反差。光线穿过穿孔板的孔隙,给建筑空间带来多重层次的光影效应,在视觉上给人带来传统建筑所不具备的神秘感,让人产生对建筑内部空间的强烈好奇心。
Image_06_Resource: Nth Fitzroy by Milieu(FIELDWORK)
2.1 格式塔心理学 - 闭合性
格式塔由三位德国心理学家在研究似动现象的基础上创立,格式塔源自德语“Gestalt”,意思为“整体、完形”,格式塔理论也被称为完形理论。核心理论:我们习惯于以规则、有序、对称和简单的方式把不同的元素加以简单的组织,一个不断组织、简化、统一的过程,正是通过这一过程,才产生出易于理解、协调的整体。
当我们在观看时,并不是一开始就区分某个单一的组成部分,而是将这些单一的组成元素组合起来使其成为一个易于理解的统一体。当看到某个部分是不完整的时候,我们的大脑会将不完整的信息按照已有的信息填补,并将其视为一个整体。[3]
Image_07_ 格式塔原则之闭合性 Law of Closure(
©UNO Architects
)
穿孔板能够通过定制各种花纹和图案去满足人类心理学对于图案补齐的趋势,更加吸引人类去探索未知神秘的建筑空间。
Image_08_ Resource: Brit&Roos(RAW COLOR)
2.2 好奇心的激发
Image_09_相遇(©UNOArchitects)
瑞士儿童心理学家让·皮亚杰(Jean Piaget)在《教育科学与儿童心理学》一书中的提到:“儿童心智的成长,经历了‘感觉+运动’主导的初级阶段……有认知工具专门处理的状态,或者说把运动和转化描述成一个个前后相随的状态,我们称其为‘图像’,比如说感知、模仿,所谓内化的模仿,就是有心理图像构成的。”
而穿孔板所形成的隐隐约约的图像特征,正好可以激发孩子们强烈的好奇心,引导他们去探索房子内的空间,创造一个适于孩子们发现,游玩,相遇的成长环境。
3. 设计灵感
Image_10_泡泡与梦想世界(©UNO Architects)
对于孩子来说,每一个五彩晶莹的泡泡都承载着一个个美丽的愿望,晶莹透亮的泡泡在风中自由飞舞,在阳光下熠熠生辉,这是童年最具浪漫与想象力的画面。因此,我们选择了一个个空中飞舞的泡泡来作为幼儿园门头穿孔板的主要图案。
Image_11_幼儿园门头立面图
(©UNO Architects)
4.Grasshoppers 设计过程
Image_12_生成过程图解
(©UNO Architects)
5.为什么要填充 - 透光率
为满足门头足够的采光,需保证冲孔率,所以我们在大孔图案的基础上建立了另一套小孔填充系统。
Image_13_Resource: design blitz
菱形填充
Image_14_方形围合式填充
(©UNO Architects)
圆形填充
Image_15_圆形围合式填充
(©UNO Architects)
打样过程
探讨孔径优化的尺寸于视觉效果的比例
Image_16_两种不同填充方式 1:1 打样对比
孔径优化
通过材料商的样品进一步确认孔径尺寸是否符合制造规范。
Image_17_60mm 大孔样品尺度分析
Image_18_10mm 小孔样品尺度分析
Image_19_8mm 小孔样品尺度分析
Image_20_孔径对比打样分析
Image_21_Grasshopper 中进行孔径优化算法
Image_22_最终创建直径为 10、15、20、25、30、40 的标准圆孔直径
Image_23_标准圆孔放大图
Image_24_优化后的铝板厂家样品
Image_25_铝板厂家样品与 1:1 A3 纸质样品对比
Image_26_铝板厂家样品与 1:1 A3 纸质样品对比
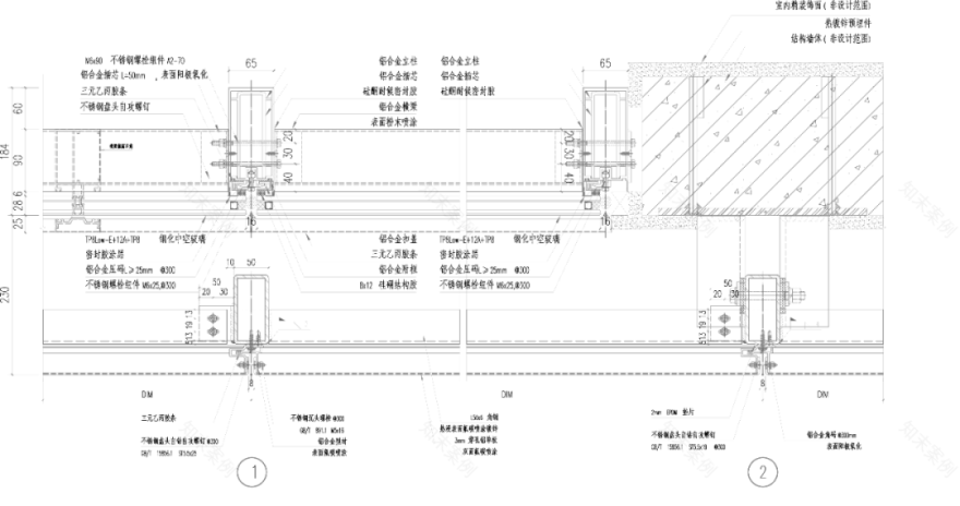
6.安装过程
施工细节图纸
Image_27_穿孔铝板施工细节剖面图(@弗思特建筑科技)
Image_28_穿孔铝板施工细节剖面图(@弗思特建筑科技)
Image_29_穿孔铝板安装动态图示意(来自 ZAHNER COMPANY)
施工过程照片
Image_30_穿孔铝板安装过程
Image_31_穿孔铝板安装过程
Image_32_透过铝板小孔观察室外的效果
Image_33_透过铝板大孔观察室外的效果 7. Done!完工照片
Image_34_主入口立面
Image_35_
©存在建筑
Image_36_
©存在建筑
参考文献:
[1]浅谈穿孔铝板的建筑表皮应用《工程管理前沿》2014 年第 6 期供稿 作者:吕祝青
[3]格式塔心理学原理 出版社:北京大学出版社 译者:李维 出版年:2010-12
[4]教育科学于儿童心理学 出版社:教育科学出版社 作者:[瑞士]让·皮亚杰(Jean Piaget) 出版年:2018-06
客服
消息
收藏
下载
最近







































