查看完整案例

收藏

下载
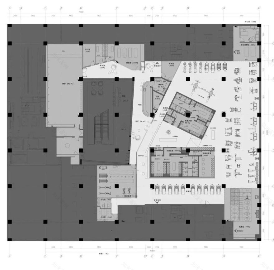
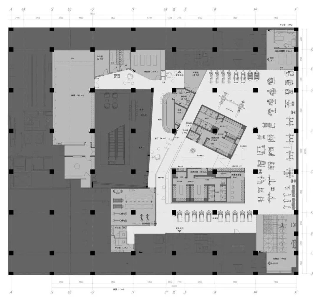
This project locates in the west zone of Taikoo Li Sanlitun. We scatter the two cubes freely in the space and divide the original single square space into multiple composite spaces that are infinitely connected and relatively independent. According to the space conditions required by different forms of movement, diverse functions give to relative spaces, and their characteristics get strengthened. Using the advantage of height and cooperating with structure and light, the design creates a large artificial patio in the negative space between the cubes, as if we were outside. The full-court dimming system provides members with a variety of sports scenes and space experiences.
Mix Power Fitness advocates future life and scientific fitness, providing powerful technical support for members. Its top fitness equipment integrates the power of science and technology, extending people's unlimited potential.
Information
甲方:MIX POWER
项目面积:2000 m²
项目类型:健身空间
项目设计日期:2021.07-2021.08
项目建设日期:2021.11-2022.05
室内设计:生兵、屈飞婧
品牌设计:罗逸亭、梁秀川
图片拍摄:VEGA
Summary
项目位于北京太古里西区,我们将两个立方体自由地散落在空间里,将原本方正单一的空间分隔成既无限串联又相对独立的多样复合空间。根据不同运动形式所需的空间条件,赋予不同空间不同的功能并强化其特点。我们利用层高的优势配合结构和光线的设计,将立方体之间的负形,营造出天井院落的空间感受,仿佛置身室外。配合全场调光系统为会员们提供了多样的运动场景和空间体验。
MIX POWER力禾健身中心,倡导未来生活与科技健身,为会员提供强大的技术支持。顶级的健身器材融合科技的力量,运动延伸人的无限潜能。
客服
消息
收藏
下载
最近






































