查看完整案例

收藏

下载
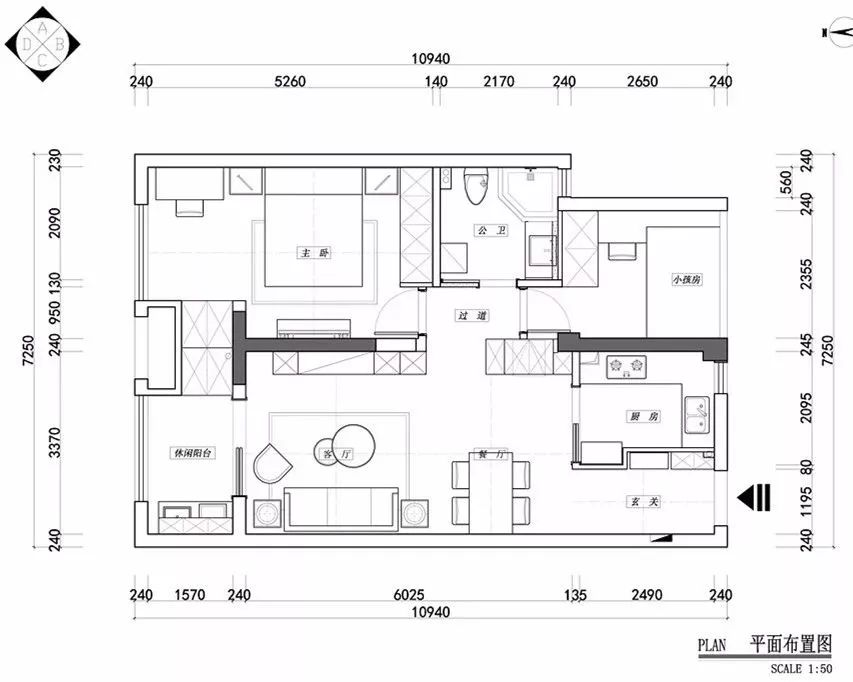
建筑面积75平米的北欧风小户型二居室案例,房子整体以灰色调为主。
平面布置图
入户玄关做了嵌入式的鞋柜,在鞋柜当中留出了一个换鞋凳的区域,方便平时更换鞋子和挂包包、外衣等,非常实用。
餐厅和客厅之间没有做隔断,餐桌椅靠着墙面摆放,另一侧的墙面做了嵌入式的到顶柜子,冰箱也选择了嵌入柜子当中,储物空间非常多。
客厅的沙发背景墙被刷成了浅灰色,然后搭配简单的挂画作为装点,灰色系的地毯和窗帘相互呼应,整个客厅空间给人一种轻松大方的感觉。
电视背景墙则是做了满墙的储物柜,中间部分同样是刷成了灰色,底部的木质隔板柜摆放零碎物品和绿植,边边角角的收纳设计加起来,再也不担心东西放不下。
厨房内部是做了L形的橱柜布局方案,浅灰色的地面搭配小白砖,再加上白色的吊柜和深色的橱柜,整个厨房看起来层次分明。
主卧室的墙面被刷成了更为清新的灰绿色,搭配原木风的床和木地板,让卧室多出了一些自然感。床头柜被书架所代替,方便屋主躺在床上看书。
卧室原本是有一个迷你的小阳台的,把阳台和卧室打通,利用这个小角落做了一个书房,这样在家办公也方便了不少。
卫生间内做了干湿分离的设计,钻石形的淋浴房放在转角的位置,然后左右两侧做木色的洗手台和马桶,浴室镜改成了镜柜的款式,还在底部加了藏光设计,更加时尚。
客服
消息
收藏
下载
最近












