查看完整案例

收藏

下载
设计风格:原木北欧风
设计面积:86㎡
户型:两室两厅
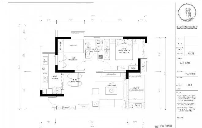
▲平面布置图
▲“断舍离”的理念在这户体现的尤为明显;
▲下班回到家,慵懒的躺在摇椅上,消除一天的劳累疲惫
▲朋友聚会、回家疲惫时需要一个超舒适的沙发,暖橘灰的沙发;
▲包子油条、萝卜辣椒,佐以插瓶花艺
▲地毯、蒲团、摇椅、暖暖的落地灯都为整个空间编织了一个柔软的梦;
▲白色的门板搭配以黑色把手,既有对比性又有整体性,换鞋凳与置放区之于实用主义;鞋柜在设计之处就从实用出发,尽可能的将两人每个季节的鞋子进行一个分类:常用和不常用的区分;以及回家换鞋的习惯摆放方式;
▲灰色地面、米色墙面、白色灯罩、鲜花等于三餐四季;
▲厨房台面的高低度根据平时下厨最多的那个人的习惯定制,灶台比常规的低一点,操作比常规高一些,从实际操作上更人性化一些;
▲原木家具、植物系的装饰画、柔软的编织物、米色的窗帘,再添加一撮阳光,便是你浓我浓的情意;
▲卧室是休息的区域,在于安静以及休息质量;床头一支郁金香,开启元气满满的一天;
▲卫生间容纳了蹲便、坐便、淋浴、洗漱于一体,同时也满足了客人来时的方便;
▲洗晒区最大程度上满足了平时洗大件和储物的功能;
客服
消息
收藏
下载
最近

















