查看完整案例

收藏

下载
设计师首先要考虑的根本问题不是风格与效果,而是能赋予这个家的温度。宛若清茶一杯,徐徐品之,里面沉淀的都是关于家人和生活
的味道
入室第一印象便是简约主义的装修风格,被原木与温馨围绕的客厅,摒弃了现代风格中的冷硬线条,达到利落与温暖的制约点,落地大玻璃保证了空间充足的透光性。
角落里的书桌,是业主的心头好,在忙碌的工作生活之余,能够安静看书赏湖,分外享受。
对于家里的小朋友们来说,地毯上是玩玩具最棒的场所啦。玩累了的俩人就可以爬上宽敞舒适的沙发中场休息。
大面积的落地窗引入自然光以及闲湖自然景色,让整个开放的室内空间充满了阳光、温暖的气息。
电视背景墙后是改造儿童房,隐形门的设计让空间的整体造型更加整洁统一。
打开隐形门的效果。
从客厅看向餐厅,一览无余的视角拓宽了视觉空间,让室内层次分明,没有一丝压抑感,自由舒畅。原厨房隔墙拆除换成推拉式玻璃门,保证餐厅里光线以及空气的流通。餐厅以白色为基础色,简约吊灯配以大理石餐桌和灰色餐桌椅,增加空间的质感。
简单却要有品味,体现在设计细节上的把握,在施工上更要求精工细作,每一个细小的局部和装饰都要深思熟虑,餐厅并没有做复杂繁琐的造型,墙体向主卫不规则移动60-70公分,合理增加西厨和冰箱。
U型厨房,合理的动线安排,让厨房更加人性化。白色橱柜搭配白色大理石,厨房拥有如此巨大收纳量的柜体看上去依然清爽明亮。
主卧是夫妻俩的私人空间,整个空间以饱和度较低的色调为基底,大量的木质材质,如地板、桌子与护墙板,搭配黑色、灰色床与床品,时尚不失简约。大窗户良好的采光为室内营造出洁净温暖的视觉感受。
墙面用科定板贴了110公分高度作为护墙板,独特的挂画和吊灯呈现出精致感,增加空间的多样性。
功能上的要求与业主的精神追求是设计重点,现场定制的造型书桌和墙柜,简约的生活习惯是业主家的最好定义。
采用灰色大理石纹瓷砖,配上恰到好处的灯源,增加空间的高级感。浴室柜采用镜面的设计,淋浴房推拉门的运用也节省了不少空间。
儿童房让小朋友自己选择了喜欢的颜色进行搭配,原始窗户保留下来,增加空间空气和光线的流通。
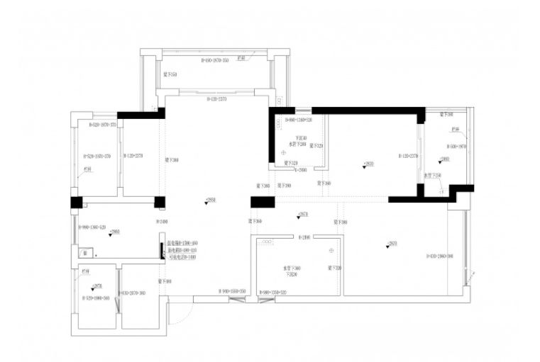
原户型存在的问题:
1.收纳问题的处理;
2.主卧与父母房的承重柱导致的空间处理;
3.主卧卫生间的切割划分;
4.室内和阳台的处理;
改造后:
1.考虑玄关处需要鞋柜,于是将进户左侧墙体向内移40公分设计成鞋柜,餐厅借了点主卫的空间做了西厨的柜子,保持简洁的同时兼顾收纳;
2.根据屋内的承重墙来重新规划空间与尺寸,连接承重墙扩大主卧面积。
3.将主卫墙体进行局部拆除改造,洗脸+厕所+浴室三式分离大大提高了卫生间的使用效率。
4.将阳台内包扩大使用面积,增加女儿房和书房两个空间,只保留次卧阳台作为晾晒衣服的生活阳台。
客服
消息
收藏
下载
最近





















