查看完整案例

收藏

下载
〇筑设计近期完成
La Cour
舞蹈工作室改造设计。
工作室入口
项目背景
La Cour
是位于市中心的一家舞蹈工作室,由于近期学员增多,原有教室面积及设施已无法满足需求,为此客户拓展了营业面积,并委托我们对其重新设计。
新舞蹈室位于领事小区地下停车场与公寓交接的入口通道处,其往来人员众多,重要性不言而喻。但较低层高,缺乏自然光,错综的管线,以及较短的施工周期,也对团队提出了较高要求。如何在有限的时间内,设计一个符合品牌调性,简洁动感,又便于快速实施的方案是此项目主要挑战。
原现场照片
设计概念
由于舞蹈室功能相对简单,层高单一,此次设计更多地关注于立面。设计初期,业主强调了一系列设计关键词,如灯带,斜线,未来感,透明性,片墙,并提供了了原有的工作室logo。如何整合这些元素,并营造出
舞蹈工作室
独有的氛围成为设计重点。
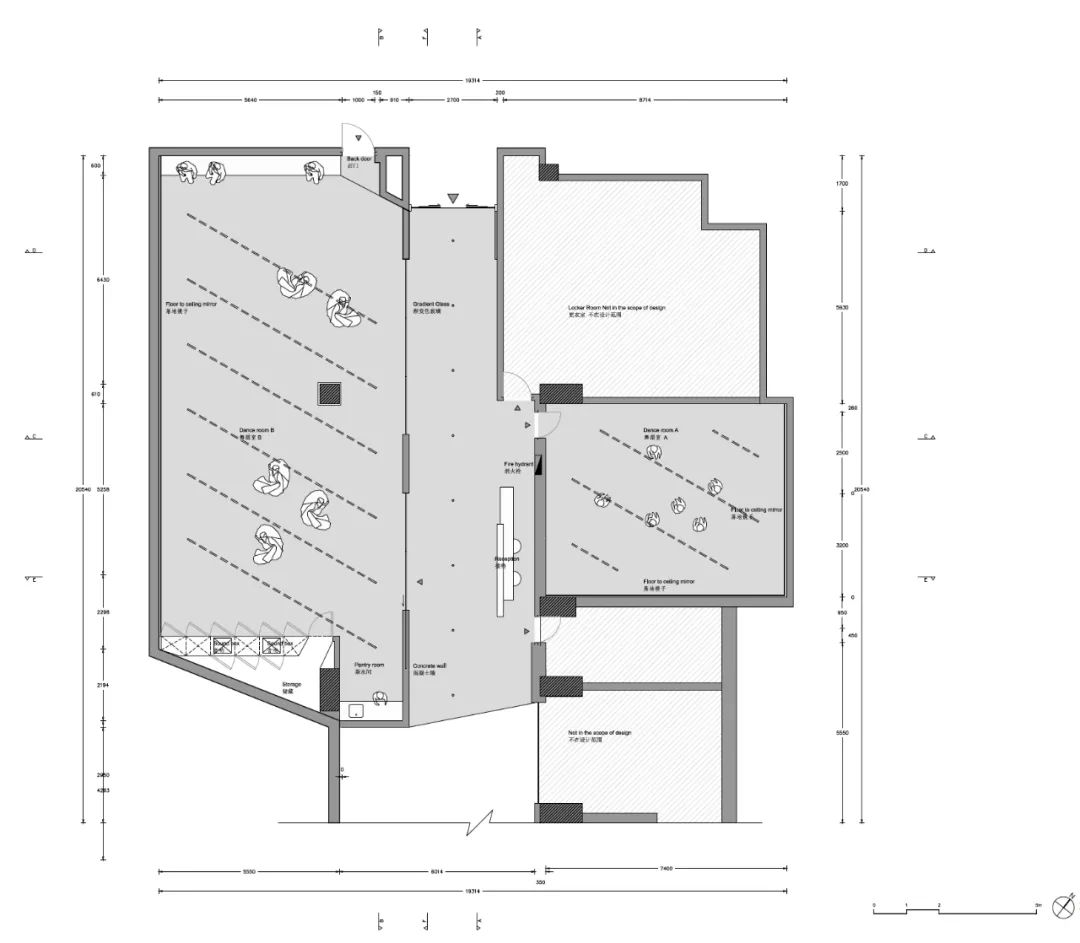
改造后平面
考虑到现场入口通道层高仅为2.3米,过多方向的斜线会导致立面断裂杂乱,设计最终选择了一系列平行斜线,并将其运用于前台,舞蹈教室入口,墙面…以强调入口区域的指向性及动感。
改造后立面
在色板及材料选择上,我们则以银,灰,白色为背景色,并以原logo上的湖蓝色作为补充。这一方面是延续了原有舞蹈房简洁的基调,另一方面也强化了品牌特性。混凝土及渐变色玻璃则被交错运用到墙面及家具中,为后期业主拍摄视频提供了丰富的背景。
品牌logo及材料选择
由于原风口布置凌乱且与新功能相冲突,但施工周期紧张不足以重新排布管线,设计采用了一个取巧的方法,用银色穿孔板覆盖整体天花,以达到通风且遮盖风口的目的。线性的阵列吸顶灯则略微倾斜,与墙面斜线相呼应,并让整体更具未来感。
〇筑希望这一设计能帮助客户建立全新的品牌形象。
入口及前台 1
入口及前台 2
大舞蹈教室 1
大舞蹈教室 2
位置:上海
日期:2021
项目面积:230m2
项目进程:建造中
设计团队:王卓尔,
Begoña Masiá,
王磊
客服
消息
收藏
下载
最近











