查看完整案例

收藏

下载
民宿十方名字源于我国常见的宅基地面积,大致都是 10 米 X10 米 X10 米,最终体积 10 立方米。我们的目标是通过几何切割的体型,来改变这个尺寸的地基常见设计样式,希望起到设计多样性的思考。从设计开始经过一千零一个日日夜夜,终于完工。原始设计稿点击。10 米 X10 米的宅基地能玩出啥花样?
地基航拍图
夜景图
日景
游泳池
建筑是光线下形状正确、绝妙、又神奇的游戏。——勒·柯布西耶
正立面
正立面
建筑开始于两块砖被仔细地连接在一起。——密斯·凡德罗
立面细节
泳池视野
游泳池
泳池细节
客厅
客厅
壁炉
画作
来自王一冷
客厅
楼梯
挑空空间
画作来自王一冷
露台
客房
客房
汉斯格雅墙出龙头
独立浴缸
-1 层平面图
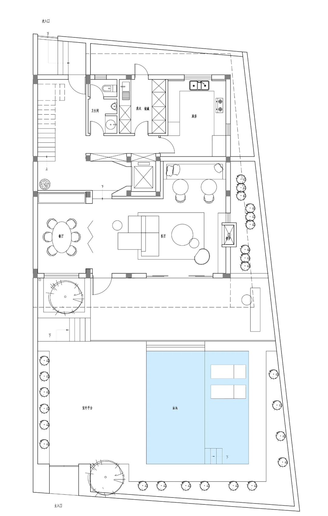
1 层平面图
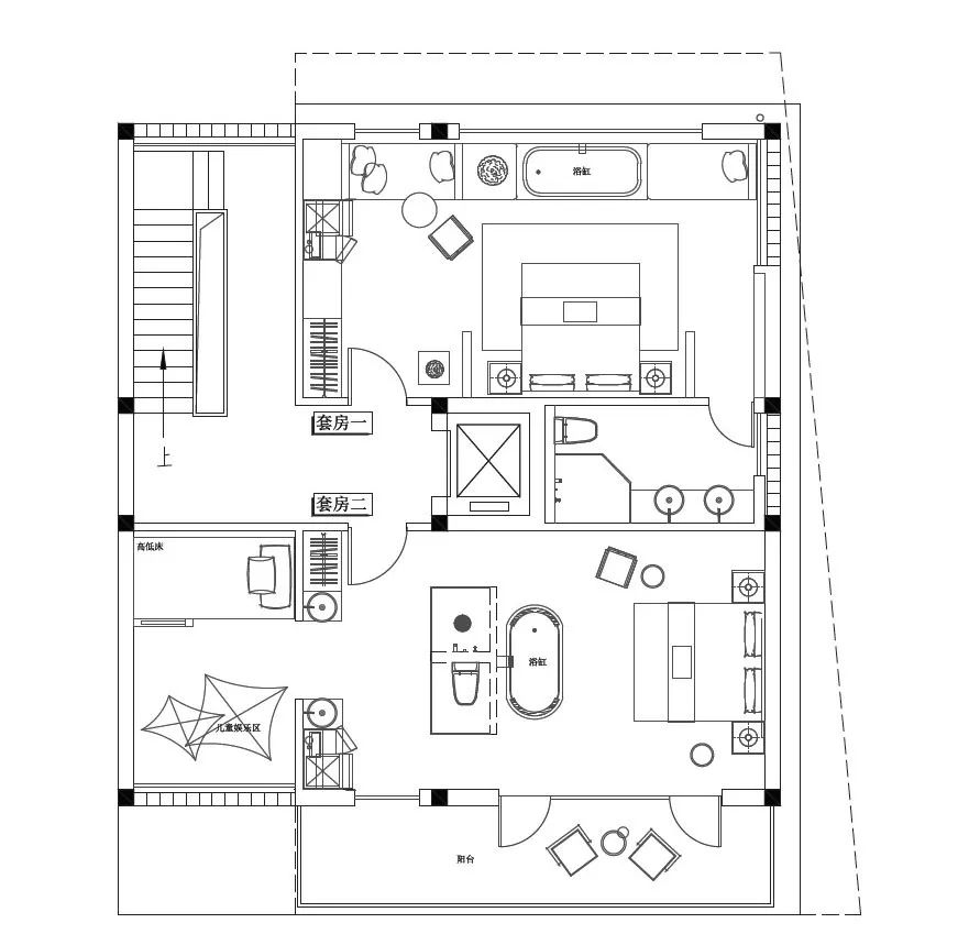
2 层平面图
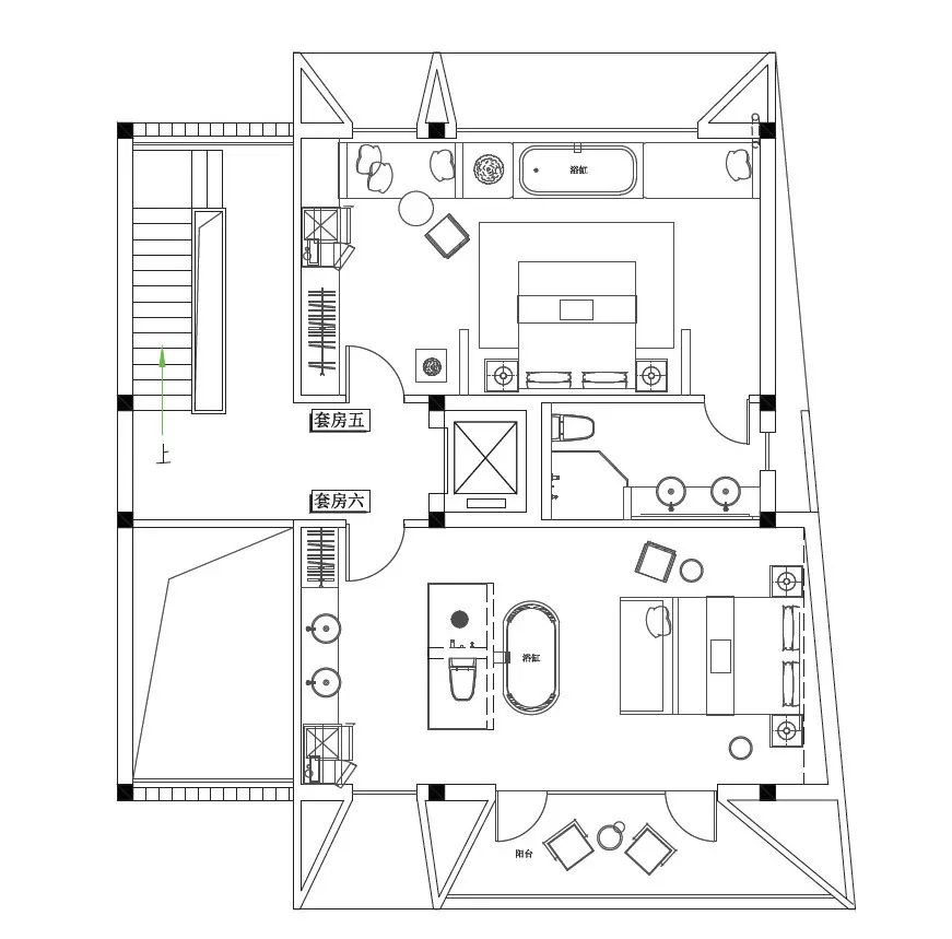
3 层平面图
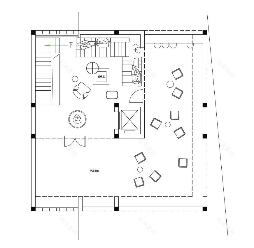
屋顶平面图
剖面图
三年前的设计稿与实景对比(左边效果图,右边实景)
地面新风出风口
吊顶三恒系统
室内部分业主不惜代价,用了三恒系统,恒温恒湿恒氧,夏天控制在 22-27 度,湿度控制在 40-65%之间人体最佳舒适温度,冬天配合地暖控制在 18-24 度之间,它完全静音,也没有空调风口对着吹的不适感,冬天的地热又是恰到好处的温暖并不会让人觉得干燥。新风系统每小时换气一次。
其次,卫浴洁具都用了汉斯格雅 Hansgrohe 和杜拉维特 Duravit,对标五星酒店,床垫用的是金可儿 Kingkoil,布草出自康乃馨 Canasin,同样是高端酒店集团的合作伙伴,可以说是诚意满满了。
十方的地理位置也相当不错,位于茅洋高速出口附近,距离象山影视城仅 15 分钟车程,到丹城市区也只要 20 分钟,距离松兰山沙滩,东旦时尚运动沙滩,半边山沙滩,皇城沙滩甚至亚运会亚帆中心 30 分钟内均可到达。步行可达又有几家味道及其地道的老牌海鲜餐厅,价廉物美的乡间美味,却是外面吃不到的新鲜菜式,还要热烈推荐街头卖手工木莲冻的小摊位,一杯下肚,暑气全消,妙极。
95547769)
或者杨先生:13736091041
项目地点:浙江省宁波市象山茅洋
建筑规模:550 平方米
投资规模:400 万元人民币
建筑设计:马卿、李国斌、饶立晓、章仕杰
室内设计:马卿、章仕杰
结构设计:奚小燕
设计时间:2018 年 8 月
完工时间:2021 年 9 月
延展阅读 / LQS 建筑设计事务所的其他作品
改建,是缝缝补补还是脱胎换骨?
10 米 X10 米的宅基地能玩出啥花样?
有人只花 150 万住上了这样的别墅!
我们用泥巴建造了一个野奢酒店
我家
私人会所
陆启水
国家一级注册建筑师
高级工程师/副教授
中国建筑学会资深会员
作品入选《中国当代青年建筑师》
Tel: 0574-87748966
LQS Architects / 规划/建筑/室内/景观 专注于精细化建筑设计
地址:宁波市鄞州区文苑路 462 号 1 号楼 603 室
客服
消息
收藏
下载
最近










































