查看完整案例


收藏

下载
Design isn’t crafting a beautiful textured button with breathtaking animation. It’s figuring out if there’s a way to get rid of the button altogether.
设计不是用令人惊叹的动画制作漂亮的纹理按钮。它正在弄清楚是否有办法完全摆脱按钮。
--------
Edward Tufte
▃
项目信息
■ 项目地址|福州市 · 万科澜悦
■项目户型| 两室二厅一卫
■项目面积| 90㎡
■项目类型| 住宅设计
■项目设计| 北城梁筑设计
Scene
现场情况
▃
LIVINGROOM
客厅
▃
女主人是标准的颜值主义,强调多次的要好看,当然,我们也需要权衡美观与实用的比例,结合生活习惯和居住功能来完成设计,美美的同时也能落地并且住起来舒服,才是家居设计的意义呀。
The hostess is a standard beauty, emphasizing that it is good to look good many times. Of course, I also need to weigh the ratio of beauty and practicality, combined with living habits and living functions to complete the design. Beautiful at the same time can also land and live comfortably, is the meaning of home design.
客餐厅一体化的设计,让整个客餐厅空间看起来宽敞明亮,在功能动线上也不会凌乱。餐厅边上使用百叶帘,阳光照射进来会形成美丽的光影。浅色系的搭配,让整个空间低调又静谧。沙发背景墙的粉色大理石作为点缀,也不会使整个空间太过于质朴,我们也合理地运用灯光效果,让地面、墙面、顶面都精致立体有层次感了起来。粉色大理石和绿色小边几的碰撞也有另一番滋味呢。
The integrated design of the living room and dining room makes the entire living room look spacious and bright, and it will not be cluttered in the functional line. Blinds are used on the side of the restaurant, and the sunlight enters to create beautiful light and shadows. The combination of light colors makes the whole space low-key and quiet. The pink marble of the sofa background wall as an embellishment will not make the whole space too simple, and we also make reasonable use of lighting effects to make the ground, wall, and top surface delicate and three-dimensional and layered. The collision of pink marble and green side table also has another taste.
RESTAURANT 餐厅▃
为了避免墙面过于单调留白太多,我们在餐厅墙面上挂上了装饰画,不会过于沉闷,装饰画的面积不大,不会有喧宾夺主的感觉,又使整个空间活泼了起来。
细腻的暖调艺术漆与同色系的温润柜板组合,带来清新气息与丰富的装饰层次,如日落余光般的温柔氛围令人沉溺。
In order to avoid the wall being too monotonous and leaving too much white space, we hung decorative paintings on the wall of the restaurant, which will not be too dull. The area of decorative paintings is not large, there will be no feeling of noisy, and the whole space is lively. The combination of delicate warm art lacquer and warm cabinet panels in the same color brings fresh air and rich decorative layers, and the gentle atmosphere like sunset afterglow is addictive.
MASTERBEDROOM 主卧▃
卧室的横梁用木饰面包裹住,用木制的温润带给空间自然的纹理和质感,书桌上的壁灯和客厅的壁灯相呼应,全屋通铺木地板,让整个家充满轻松和愉悦。
The beams of the bedroom are wrapped with wood veneer, and the warmth of wood brings the natural texture and texture of the space. The wall lamp on the desk echoes the wall lamp in the living room, and the whole house is covered with wooden floors, making the whole home full of relaxation and pleasure.
整个卧室空间都是奶油色的,没有多余的色彩,也可以非常吸睛,质感细腻、高级舒适。不管多累,回到家就可以立马被治愈了。
The entire bedroom space is cream-colored, without excess color, and can also be very eye-catching, delicate texture, high-class comfort. No matter how tired you are, you can be healed immediately when you get home.
SUBDECUBITUS
次卧
▃
每个女孩的心里都有一个粉色梦幻世界,无论走到哪里,坚硬的外表下,总有柔情。整个卧室空间以温柔的奶油系和浅粉色的装饰,清新又少女,充满浪漫的气息。
Every girl has a pink dream world in her heart, and no matter where she goes, there is always tenderness under the hard exterior. The entire bedroom space is decorated with gentle cream and light pink, fresh and girly, full of romantic atmosphere.
无主灯设计,打破了传统的吊灯一贯的设计,让整个房间的光线更加柔和,躺在床上的时候不会觉得过于刺眼。床垫和书桌粉色的烤漆板相互呼应,充满浪漫可爱的卧室,哪个女生看了不会沦陷呢。
The main lampless design breaks the traditional chandelier design, so that the light in the whole room is softer, and it will not feel too dazzling when lying on the bed. The mattress and the pink lacquered board of the desk echo each other, full of romantic and cute bedroom, which girl will not fall when she sees it.
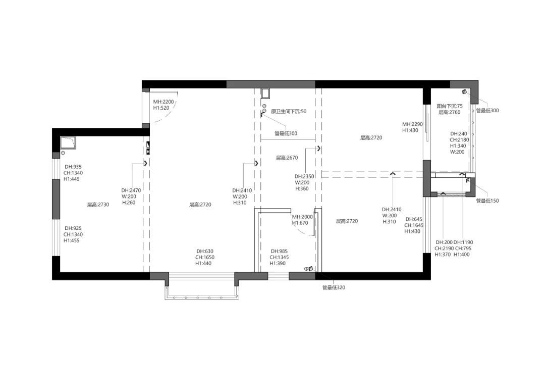
SPACEPLANEPLANNING 空间平面规划▃
DESIGNDIRECTOR 设计总监▃
THE DESIGNER 设计师 范毅勇 ▃
▃
商务负责人
创意总监
Past cases
往期案例
━
北城梁筑设计 / 当杂志上的家落到现实,在黑白之间捕捉生活气息
北城梁筑/爱好收藏者的家庭艺术廊
北城梁筑 / 和家居博主一起打造治愈系住宅
北城梁筑实景 | 158㎡极简设计 空间情绪
新案/平潭·渔屿海景民宿
客服
消息
收藏
下载
最近































