查看完整案例

收藏

下载
我希望它会成为杭州的“芳草地”,成为文艺青年们的聚集地,艺术文化的孵化地。
——伦佐·皮亚诺(Renzo Piano)
© OōELi
天目里,由知名服装品牌江南布衣与GOA大象设计投资,1998年普利兹克奖得主、意大利建筑大师伦佐·皮亚诺首入中国打造,并与数个国际级团队共同合作完成。项目自2020年10月开放以来,以其独特的审美品位、别具一格的设计风格以及高标准执行的施工工艺,迅速在业内外引起高度关注并被广泛讨论。
© OōELi
© RPBW, ph. Jiali Zhou
感谢江南布衣和GOA给予的充分信任和支持,选择
绿城爱境担纲天目里的景观深化设计
,让团队在过去几年可以和伦佐·皮亚诺以及RPBW建筑工作室的同仁们一起工作,充分学习到国际团队一丝不苟的工作态度之外,更在隐蔽工程、样板制作、新材料新工艺等方面获得了深刻的历练。
© OōELi
隐蔽工程
作为在诸多领域都达到世界顶级工程标准的天目里,本身应用了较多的新材料新工艺,对于景观设计深度和高标准还原,
绿城爱境
经历了循序渐进的过程,并应RPBW工作室的要求、在材料制作安装前,必须在深化设计中全方位考虑其落地性。
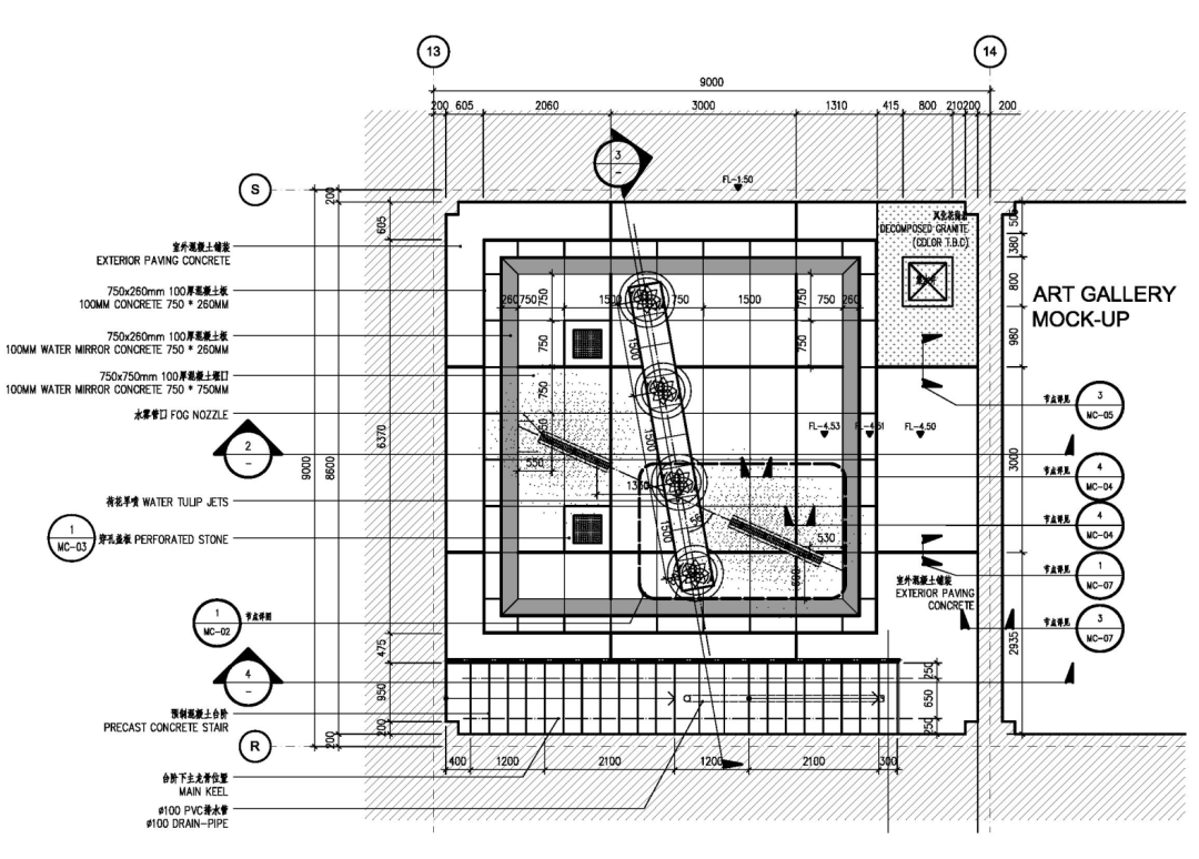
地坪基层深化设计
为确保现浇混凝土地坪材料在后期使用中避免开裂及沉降,团队与工程部和结构同事多次讨论后采取了一些加强措施:在顶板区域,消防车道和建筑交接处采用地垄墙支撑加刚性垫层方式;步行区域采用灰土加刚性垫层;地库和项目周边区域利用原围檩结构作为稳定结构做支撑补强。
©绿城爱境,步行区地坪支撑图
树穴的深化设计
为保证园区地坪区乔木无地上支撑,改用土球固定方式。在做地垄墙设计时围合出直径2米的树穴,但考虑到施工便利度和地下空间尺寸受限因素,最后采用50厚预制混凝土树穴,并在侧壁预埋固定土球钢缆挂钩。
©绿城爱境,树穴深化设计图
样板制作
打样模拟,是从方案设计到竣工完成中间很重要的步骤,尤其对于多项指标具有超高工程标准的天目里而言。对样板模拟、生产加工至现场实施的严格管控,是后期景观能够完美呈现的必要步骤。在这个过程中,
绿城爱境
参与较为深入的打样主要是镜面水景和屋顶茶树种植两项内容。
2017年,我们正式开始制作最主要的景观样板——镜面水景、台阶及栏杆,按照1:1将所有要素进行样板设计。
©绿城爱境,镜面水景、台阶和栏杆样板设计图
©绿城爱境,2017年打样施工现场
©绿城爱境,样板修正讨论后打样模拟
经过几轮的设计讨论后,我们付诸实施打样模拟。首轮样板制作完成后评估其设计和施工等方面的问题,出现的问题有水景所用预制板存在裂纹、回水槽过宽、钢板收边不挺直、台阶预制构件截面不合理、安装存在问题、栏杆安装细节考虑不全面等。经过再次设计修改后重新打样,验证其可实施性情况。
©绿城爱境,2020年镜面水景地坪测试施工现场
屋顶的龙井茶园,被业内称作天目里风景独好的第五立面。在缜密严格的样板测试之后,我们对原茶园的设计密度、遮阳设施、遮阳网遮盖密度等细节做了调整,避免部分茶树因夏季高温发生灼烧死亡的状况。同时,遮阳网立柱安装方式也调整为更易安装和拆卸的形式。
© OōELi
新材料新工艺
天目里实景呈现之后的一致高度肯定,除了源自设计师的创意、也离不开许多新材料和新工艺的研究和应用。
从2015年初介入景观深化设计工作至2020年10月工程交付使用,
绿城爱境
和RPBW工作室及其他相关合作团队及参与部门进行了诸多的前期研究和测试工作。
©绿城爱境,条形混凝土铺装做法
以“天目里”最重要的设计特色——清水混凝土营造为例。和建筑一样,项目在景观设计中也出现了各类混凝土预制构件,如露台和屋顶使用的架空预制板,茶树围合矮墙的压顶板、露台种植池/箱、下沉庭院台阶以及台阶边沟盖板、条形混凝土铺装构件等。最大程度确保设计效果呈现,也是景观深化设计最大的挑战之一。
通过细致的探讨、打样,对细节的可实施性精心推敲论证,最终形成了工作中的基本准则,如:关注每个单元构件尺寸和重量,便于现场施工安装;预制构件尽可能是简洁的断面样式;设计中构件外露面和非外露面务必清晰表达,一旦制作完成,非外露面很难补救;阳角和阴角应是倒圆弧……等等宝贵的经验和总结,为未来团队使用新材料时提供很好的指引和借鉴。
其他感悟
恰如伦佐·皮亚诺提出的,对于这个项目,“ 我们提出了一个共同的目标,希望这个乌托邦又酷又自然,
所有的设计都在坚持实现这一点。
”
在2015年初至2018年三年时间里,
绿城爱境
和RPBW工作室团队的合作状态是:当我们形成初步成果后、与之沟通讨论、继续修正深化、待一个区块深化定型之后再逐步推进分区分块设计。这样的沟通、推敲研究的工作会议在三年多时间里高达三十余次,才顺利完成景观深化设计的大部分工作。这种建筑师团队全程深入参与深化设计的状态,在以往
绿城爱境
操盘的项目中几乎不可能出现。
©绿城爱境,绿城爱境和RPBW工作室团队的沟通会
所有的精品,都需要时间和专注来沉淀
。天目里每一处令人称道的细节背后,都有着不为人知的付出。参与天目里景观深化设计的最大收获,是让
绿城爱境
的同仁们学习到境外大师级团队做事认真的态度、对工程质量的执着和渴求、对设计管理全程的细致和全面。
和国内一些客户为了省时省事、盲目压缩施工时间和成本相比,天目里的实践,提供了一种正确的专业态度。
© RPBW, ph. Jiali Zhou
项目档案
:
项目名称:天目里
项目地点:浙江,杭州
建筑面积:约23万平方米
设计/竣工:2013-2020
投资方:慧展科技(杭州)有限公司
建筑设计:伦佐·皮亚诺建筑工作室
中方合作设计: GOA大象设计
结构、设备、幕墙工程及灯光设计顾问:Arup
植物顾问:Rana CreeK
枯山水:枡野俊明团队
水景设计:JML
景观深化设计:
绿城爱境
室内深化设计:GOA大象设计
标识设计:SPDA
2013-2020
JNBY Headquarters
Hangzhou, China
Client: Hui Zhan Technology (Hangzhou) Co, Ltd
Renzo Piano Building Workshop, architects
in collaboration with Greentown Orient Architects (Hangzhou)
Design team: M.Carroll (partner in charge), O. de Nooyer (associate in charge) with P.Fang, A.Guazzotti, J.Hallock, D.Hart, S.Ishida (partner), S.Kim, M.Laurent, A.Phommachakr, D.Piano, A.Pizzolati, S.Polotti, J.Zhou, M.Ottonello and J.Guzman, J.Gwokyalay, T.Hassen, S.Modi; F.Cappellini, I.Corsaro, F.Terranova (models);
Greentown Oriental Architects (LDI): Qing Zhou, Du Liming, Zhao Liang Liang, Liu Lin
Consultants: Arup (structure, MEP, façade engineering and sustainability); Rana Creek (landscaping); JML (water features); Greentown Akin (landscaping LDI); GOA Lekong (Interior LDI)
▶
关于我们
绿城景观&绿城爱境,是一家依托于绿城房地产集团
的国家风景园林工程设计专项甲级资质公司
,主要提供规划、园林设计、景观工程营造、景观工程监造及苗木培植等领域专业服务。公司成立至今,
始终秉承绿城集团先进的理念,以“专业、专注、缔造美好生活”的理想追求和“真诚合作、互惠共赢”的经营理念,成为当代中国景观设计营造的新标杆,
已完成景观设计、营造及监造作品总计达600余个,取得了良好的业界口碑,赢得了广
大客户的信任和赞赏。
精品项目
请点击图片进入详细页面
最美的季节遇上你|德清·莫干山郡安里
“知者乐山,仁者乐水”|临沂·春江明月
食必求真,然后至美丨杭州·新荣记
客服
消息
收藏
下载
最近





















