查看完整案例

收藏

下载
当我们阅尽铅华
沉淀了岁月
割舍掉许多虚荣的负累
家
也被我们赋予着更真实的样貌
在各种风格争奇斗艳的往昔中向前一步
静谧和幸福给予我们的
是经得起时间考验的隽永魅力
G.M DESIGN
纵观一个别墅的体量
在四五百平方的面积中
要将简单和丰富共同呈现
需要扎实的专业与美学功底
我们的设计出发点
兼具未来感与功能性
灵感主要源于Santiago Calatrava
我们希望在此呈现的住宅氛围
既重视光影又具备生活味道
///
地点:广东广州
面积:约480平方
费用:50W
首席设计:卢维涛
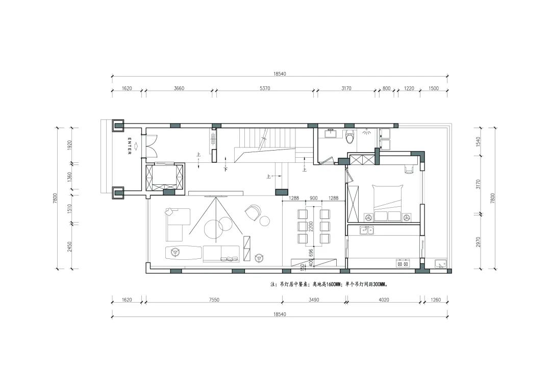
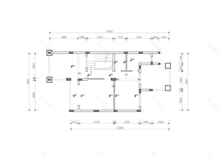
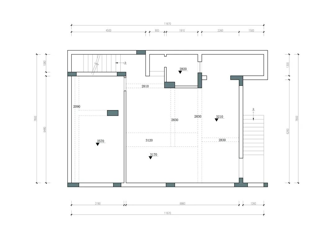
原建及平面布置图
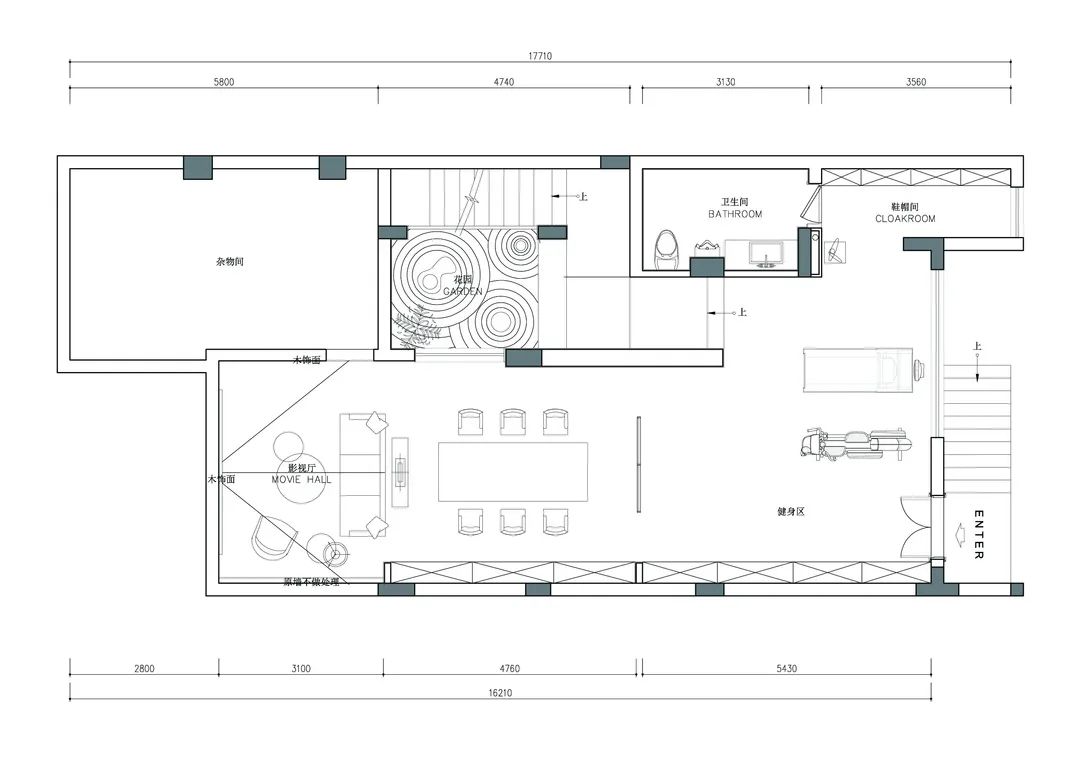
完工实景
纵观一个别墅的体量
在四五百平方的面积中
要将简单和丰富共同呈现
需要扎实的专业与美学功底
我们的设计出发点
兼具未来感与功能性
灵感主要源于Santiago Calatrava
我们希望在此呈现的住宅氛围
既重视光影又具备生活味道
精致的简洁设计是严谨和充满探索精神的
作为室内建筑设计者
设计师是感性又天马行空的设计诗人
对空间和室内建筑美学问题
设计师必须有批判性研究和创新性设计
最终
将使用者的行为需求作为出发点
通过细致的工艺和高品质的材料
将作品呈现出来
最实际的一点是
他们往往要提供针对各种生活方式的解决方案
室内环境的微妙之处
在于身处其间时
居住者的心反而需要是更加自由的状态
有形的边界和无形的生活之间
是舒适感与尺度的交互
我们以材质和体块做为元素
就像自然界中的山与树
它有数不尽的组合方式
来完美我们的视觉与生活
石材与木质是一对天生的壁人
利用适合的色彩合为一体
就能漂浮于地面之上
重新定义三维空间的尺度
脱离了原有的环境
形成全新境界
生活其中
久坐或行走
总能获得一种空灵与力量叠加所带来的安宁与惬意
营造出特有的生活的诗意
客服
消息
收藏
下载
最近





























