查看完整案例


收藏

下载
/云山雅境 花园会议/
三分葱郁,七分惬意
身居城市繁华
绿林就在你脚下
眼前一片绿意盎然
内外环绕的鲜氧与舒适
云山雅境,花园会议
站在这里
各种色彩交织
给心境美好的洗礼
城与境的碰撞
成就一面自然之窗
一方享城市繁华,一方享诗意生活
这里,就是白云国际会议中心
白云国际会议中心
背景介绍
白云国际会议中心地处白云新城核心地段,是广东省最大的综合性会议中心,是连接白云山和白云新城的重要生态节点。
设计定位
落实最美综合性国际会议中心的目标愿景,突出“云山雅境,花园会议”的主题,兼备交流、游憩、赏景、防护等多种功能为一体的岭南花园式国际会议中心。
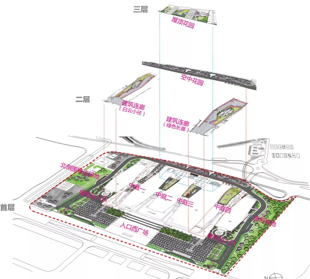
空间布局
三层景观:屋顶花园
二层景观:白云小径、绿色长廊、空中花园
首层景观:中庭、北侧绿地、西侧绿地、入口西广场
项目景观特点
Ⅰ. 城景交融
以山借景,取白云山的形态作构图,取建筑的红色做景观设计主色调,纳入屋顶花园的景观中。
屋顶花园园路以折线形式表现山的剪影,等高线形叠层的台阶式花池从立面上延续山形的表达方式。
以叠山的形象作抽象设计,主园道以折线表现连绵的山脉轮廓。
异形坐凳提取白云山的自然形态,用几何形的折线,模拟白云山的高低起伏。
Ⅱ. 建筑空间的景观活化
采光井下的空间为主景区,以天空中云为形象抽象出云形树池的形态,简洁的圆形意境门洞恰到的框住这处光圈中的一景。
抽疏原有蒲葵,铺设白色砂石,点缀丝兰、虎尾兰等热带植物,活化景观空间。
以建筑作为景观核心,结合各个场地不同的功能属性,合理组织广场、平台、园路布置,活化建筑空间。
Ⅲ. 岭南植物的应用
围绕岭南文化、广州花城文化,通过本土植物的运用、合理的布局和丰富的植物造景,展现富有岭南植物特色的绿地景观。
Ⅳ. 精细化、品质化设计
异型坐凳
山影墙
异型石基
感受每一颗草的呼吸
远离喧嚣,悠闲静谧
一起享受繁华中的自然!
客服
消息
收藏
下载
最近

































