查看完整案例


收藏

下载
审美/独立/自由
HUAIAN/2021/SHUIMU DESIGN
案例简介
CASE DESCRIPTION
关于日着,关于我们...
我们一直在探寻被人遗忘的中国游侠文化,在这个风云变幻令人惴惴不安的时代里,我们依旧保持着自由、独立思考与逆流而上。用我们坚持的审美与这个世界相处;刚柔并济,磨而不磷,剑胆琴心... ...
--RIZHUO
从农村到城市化的进程中,每个人都经历着快速的更迭变化,我们从内心出发,探寻都市生活下被自我遗忘的游侠情怀。
“我一直想开一家与众不同的女装店”;
——业主有话说
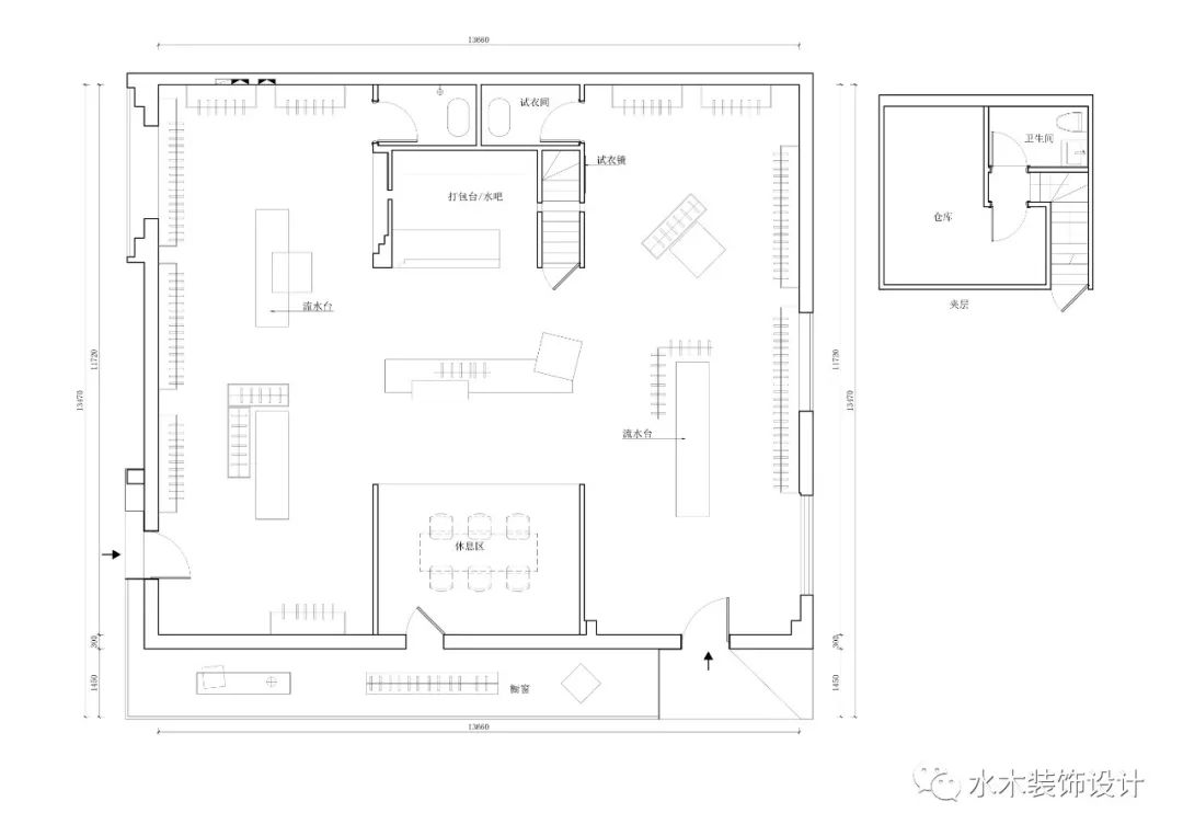
■项目坐标 / 淮安·淮印时光文创园 Project Address /HUAI YIN CUITURAI AND CREATIVE PARK
■
项目类型 / 商铺 Project Type / shop
■设计时间 / 2019 Design Time / 2019
■总设计师 / 司琪 Chief Designer / Qi Si
■摄影时间 / 2020 photography
Time / 2020
■项目面积 / 150m² Project Area / 150m²
■设计机构 / 淮安水木装饰有限公司 construction organization / water& wood design
■施工单位 /淮安水木装饰有限公司 construction organization / water& wood design
实景照片
VIEW DIAGRAM
外观图
外观细节
两个“盒子”相对独立又很统一
“重塑结构”,以开放与窥视并存的视觉关系构建销售动线,让客户有别样的购物体验
——设计师有话说
“小景”展示
原木吊顶;给空间增添了一丝温柔与生机;
自然光被完整的保留下来,代替了人工光源;让顾客感知到时间与空间的变化
——设计师有话说
衣服都是零部件,有你才能完整;
——RIZHUO
都市游侠自由,独立 ,孤独又充满希望;
——RIZHUO
—THE END —
喜欢就关注我们哦~
我们生产设计,我们为自己代言。我们会第一时间与您分享水木设计的最新设计作品。欢迎广大朋友上来拍砖、设计咨询。海纳百川兼收并蓄,站在巨人的肩上展望未来,我们一同进步......
客服
消息
收藏
下载
最近

















