查看完整案例

收藏

下载
项目名称:中梁温州茶白-金澜云邸
项目地址:温州市瓯海区
建成设计(示范区):2020.10
01
瓯越之地,物化天宝
温州古代称瓯越。还在五六千前的新石器时代晚期,就有先民在这里劳动生息,留下了深厚的文化底蕴。
区位介绍:温州市瓯海区梧田新区板块,梧田街道位于浙江省温州市瓯海区东北部,北邻鹿城区。总面积约25.96平方公里,距离城市中心区域及交通枢纽均在5.0-6.0公里以内。基地距离温州龙湾国际机场18.1KM。距离温州站3.0KM,距离温州南站9.4KM。地块东南侧1公里大型商业配套万象城,向东1公里是三垟湿地、荷塘月色公园, 大大的提高基础生活服务。周边有温州中学,温州第二外国语学校,梧田二中、北京外国语大学附属学院,规划待建中小学,教育资源丰厚。
规划总图△
梧田历史悠久,是浙南水乡的古老集镇,山清水秀、物产丰富、气候四季宜人,人民勤劳淳朴。西部拥有吹台山、牛山、八福山,山深叶茂,同无量寺、伴云道观、平安寺、王璇墓等古迹相映成辉,自然景观与人文景观相得益彰。
用地规划图△
体量生成△
鸟瞰实景△
设计由道路绿化行道树开始将城市道路和示范区在做以动静区分,同时也将行人的视线引入示范区广场。在缺口处确立了人行入口和车行入口,流线汇合后由广场水景和广场铺砖材质的区分将视线引入示范区入口。
02
寰中绝胜,高科技感
位于东北侧的示范区,是一部自然,文化科技吟咏而成的艺术作品。
实景图△
它以铝板为主要的外饰材料,依旧采用平直面及斜切面穿插组合,并辅以印刷玻璃幕墙,形成虚实相生,变化精巧的艺术形象。
主入口透视△
建筑总体呈矩形,底层局部外伸平直桥架,并改斜切面形式弯折向下,立于庭院,稳定坚实,形成室内外交接的灰空间,打破了矩形的保守之态;二层以楔形竖向印刷玻璃幕墙作为外墙装饰,与轻盈的的铝板幕墙相结合,形成动感十足的时尚风格。
主入口水景△
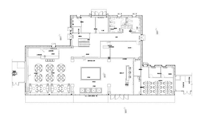
一层平面图△
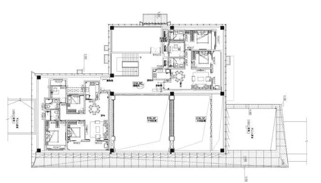
二层平面图△
三层平面图△
流动的水景和错落的绿植辅以填充,通透的玻璃体在墙体间穿插,光影、空气、街景在空间内伺机渗透。漫步间仿佛流转于如画式空间,浅水倒映着天光云影,婆娑树影,层出不穷,亦不断变化。
室内空间△
访客通过室外水景景观引导进入建筑内部。入口与水景景观融为一体直接衔接展厅,主沙盘连接户型沙盘及次沙盘空间区域。主展示区由入口门厅的一层空间过渡为二层通高空间,同时及侧面玻璃幕墙的光线渗透进来,给访客带来豁然开朗的感觉,极具震撼力。主展示区紧邻观影厅、水吧、阅览室等功能布置成开放空间,流线清晰明了,使人身在其中,倍感舒适。
工程信息:
业主名称:中梁控股集团
项目地点:温州市瓯海区
建筑面积:179368.9㎡
建筑团队:上海华策建筑设计事务所
景观团队:上海帝思贝尔建筑景观设计
施工图团队:浙江天然建筑设计
PIC:
杭州鲲图
设计/建成时间:2020.10
精品住宅 | 商业综合体 | 建筑景观一体化
-往期回
顾-
客服
消息
收藏
下载
最近






































