查看完整案例

收藏

下载
0
1
项目概况
PROJECT OVERVIEW
_
_
广发证券大厦位于广州珠江新城 CBD 东侧,与原跑马场相邻,建设单位为广发证券股份有限公司。项目总用地面积 106773㎡,其中代征市公共用地面积 4214㎡,代征市政道路 3524㎡,城市公共绿化 1088㎡,红线内面积 6463㎡,地块总容积率为 10,总建筑面积约 157990㎡,其中主楼地上 62 层,标准层高为 4.20-4.35m,顶层层高 11.06m。主楼总高共 308m;副楼地上 5 层,首层架空,主要为商业用途,天面高度 23.5m。
项目定位:为广发证券股份有限公司自用企业总部级办公为主的超甲级智能高档写字楼,成为广州市财富管理中心。
0
2
设计理念
DESIGN CONCEPT
_
_
城市规划方面:从珠江新城整体空间关系以及城市东扩的趋势来看,在珠江公园东侧的广发基地需要建设一处易读性的地标式超高层建筑,与珠江新城东、西塔及电视塔遥相呼应,因此大楼应该是简洁、高雅、线条清晰、具有精致几何造型的建筑主体。塔楼本身是柱状,整体稍作转体以退让马场路,但建筑整体平行规划道路,为南面广场创造出更为开阔的广场空间。附楼与主楼靠近并与马场路平行,强化了小尺度城市规划中道路界面的连续性与完整性,这样的建筑布局顺应了两条不平行马路,与异形基地有积极的对话,创造出与周边街区完全不同的金融办公特质。
地下室采光园林中庭
0
3
技术特点
TECHNOLOGYFEATURES
_
_
建筑设计方面:建筑强烈的视觉效果来自于其简洁的形体、脉络分明的结构系统以及富有表现力的竖向幕墙系统。这种造型特点使得建筑有如从原始晶体中雕塑出来的钻石。建筑顶部支撑结构逐渐改变形状,形成了围合建筑空间的弧形玻璃结构。顶部弧形的主题和象征中国建筑元素的幕墙竖向系统为建筑带来了稳重感、力量感,为 CBD 东区带来了永恒之美。
副楼与塔楼具有不同的城市环境关系,是一个小尺寸的,保持人体尺度而富有亲和力的建筑。
形态设计的灵感来自于岭南地区的榕树,粗壮的树干支撑着上部空间,整个体量得到提升并高于珠江公园内的树木高度,引导视线由室内一直望向 CBD 中心区,与中轴线的各组建筑产生对话,也利用首层的架空空间创建了宜人的室外城市客厅。
首层中庭图
西北侧裙楼夜景图
西北侧夜景图
东侧鸟瞰图
0
4
结语
CONCLUSION
_
_
为进一步提高中心城市的地位和发挥中心城市的作用,广州市政府确立并建设了包括珠江新城在内的广州市 21 世纪中央商务区(CBD),广发证券大厦作为珠江新城东侧的一个地标性项目,结合“以人为本”的设计原则,提倡绿色建筑、生态建筑在规划上与城市环境产生积极对话,在建筑设计上也满足地标式超高层建筑的易读性,实现了稳重、有力的城市效果,在使用上满足了建设单位的始定目标,其脉络分明的结构系统、富有表现力的竖向幕墙系统以及简练明快的灯光系统都是本项目的主要技术亮点,项目的建成宣示了珠江新城(CBD)整体空间格局的最终完成,为城市中心的东扩做出了积极的应对。
西南侧立面图
0
5
设计图纸
DRAWINGS
总平面图
GENERAL
PLAN
首层平面图 FIRST FLOOR PLAN
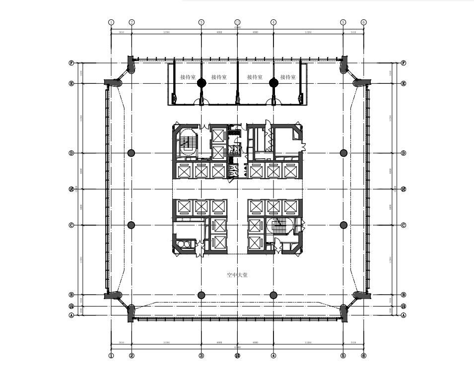
标准层平面图 STANDARD FLOOR PLAN
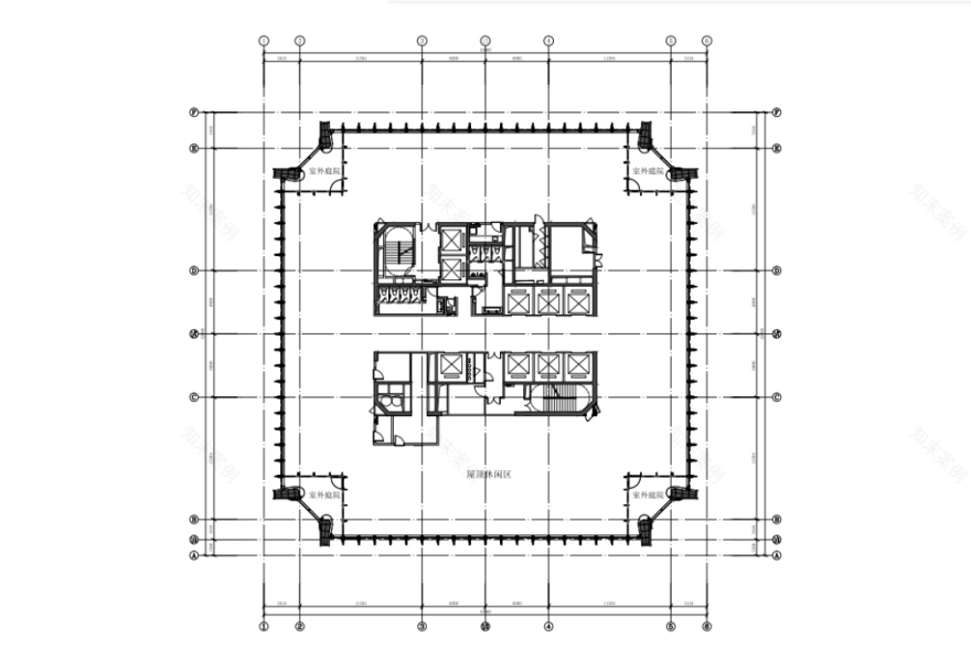
二十八层平面图 TWENTY-EIGHTH FLOORPLAN
五
五十九层平面图 FIFTY-NINTH FLOORPLAN
东西
立面图 ELEVATION
南北立面图 ELEVATION
主塔楼剖面图
SECTION
▎项目档案
项目名称:广发证券大厦
项目位置:广东省广州市
总用地面积:约 1.1 万㎡
总建筑面积:约 15.7 万㎡
设计时间:2012-2020 年
竣工时间:2020 年
设计单位:华南理工大学建筑设计研究院有限公司
项目负责人:何镜堂 黄骏 韦宏
建筑:李绮霞 黄骏 邓孟仁 林燕 孔剑虹 柏小利 郭建伟
结构:方小丹 江毅 韦宏 易伟文 赖洪涛 雷文军 黄勇 刘光爽 何智威
机电:江帆 岑洪金 关宝玲 俞洋 过仕佳 陈华坚 耿望阳 范细妹 黄光伟 王钊 邹玉进 陈卓伦
绿建:胡文斌
概预算:邹文霞
室内:郑炎 梁均宇
景观:晏忠 廖俊峰
▎项目获奖
·2021 年度广东省优秀工程勘察设计奖建筑工程二等奖
供稿项目组
编辑 企划部
校审 黄骏 邓孟仁
版权 华南理工大学建筑设计研究院
往期精选
华南理工大学建筑设计研究院有限公司
长按添加关注
业务联系:020-87111157(经营部)
人才招聘:020-22238270(人力部)
企划宣传:020-87111579(企划部)
客服
消息
收藏
下载
最近






















