查看完整案例

收藏

下载
0
1
项目概况
PROJECT OVERVIEW
_
_
李政道图书馆建于上海交通大学闵行校区,西侧毗邻计划建设的理学楼群,东侧为第四餐饮大楼,北侧为新体育馆,南侧为工程训练中心。图书馆总建筑面积约 6500 平方米,功能定位以图书馆、档案馆和科学研究所为主,兼顾陈展与会议功能,同时结合李政道先生本人特点和信息时代特征,有限扩充艺术馆及科学馆的职能。从而形成五馆合一的有机整体,担负激励后学、弘扬科学精神、展示人文素养的科普教育基地和开展高能物理研究的工作基地。
0
2
设计理念
DESIGN CONCEPT
_
_
本设计立足于李政道先生三十一岁便获得诺贝尔物理学奖的辉煌成就,取用“山”的意象,意在激励青年学生和科技工作者勇攀科学高峰。设计在对称稳定的体量中引入动感的切割,以笔直上扬的一笔勾勒出动感跃升的遒劲之美,最终生成上下叠置的两个单元。
向西的户外大台阶作为强化图书馆与理学楼群关联的核心要素,将理学楼群的师生直接引向图书馆,也把科学和艺术展览的功能从图书馆室内延伸至室外,营造集户外阅读、观展、思考、讨论、讲演等多功能的活跃场地。
▎
总体构思
李政道先生 31 岁便获得诺贝尔物理学奖,他发现了弱作用下的“宇称不守恒”定律,该发现打破了传统物理界对于物理世界是左右对称并且各物理作用对于镜像的事物来说也必然是对称的统治性论断。用李政道先生的话来说“对称的世界是美妙的,而世界的丰富多彩又常常在于它不那么对称。有时,对称性的某种破坏,哪怕是微小的破坏,也会带来某种美妙的结果”。本设计立足于李政道先生三十一岁便获得诺贝尔物理学奖的辉煌成就,取用“山”的意象,意在激励青年学生和科技工作者坚持不懈、勇攀科学高峰,并在建筑体量、建筑高度、立面色彩等方面与计划建设中的理学楼群相呼应,在总体布局与交通规划上与基地周边建筑保持有机联系。
▎建筑体量生成
设计在对称稳定的体量中引入动感的切割,以笔直上扬的一笔勾勒出动感跃升的遒劲之美,并最终生成上下叠置的两个单元。
对于下方的为三菱体,内部为半下沉式多功能报告厅,顶部为阶梯式公共平台;
位于上方的为带切角的方体,其内包含展览、库藏、阅览、办公、科研等功能。
方体之内嵌入中庭,为建筑引入天光的同时成为汇聚各种活动的核心区域,为使用者创造层次丰富的交流场所。
所有的造型元素统一于简洁有力的建筑轮廓之内,方整中酝酿着动态,亦表达出科学与艺术的美妙关联。
0
3
技术特点
TECHNOLOGYFEATURES
_
_
▎
功能布局
设计方案充分考虑李政道图书馆的独特功能需要,将其中的各种功能合理地安排在建筑之中,负一层为会议中心;首层为入口门厅、多功能厅、开放式展厅;二层为阅览大厅并结合交通空间局部布置开放式展览;三层为开放式阅览区和特藏书库;四层为李政道先生工作室、研究中心、图书馆工作用房和访问学者工作室。
▎交通流线
在总体规划上,结合校园内部流线引导与疏散需求,将建筑的主入口设于东侧,与校园道路相连,作为参观、阅览和科研的主要出入通道,并通过序厅、坡道联系展厅和阅览等空间;建筑的西侧,考虑到应便捷地服务理学楼群的师生,利用朝向理学楼群的户外台阶作为学生阅览以及部分展览的通道;建筑的南侧,通过半下沉式坡道把会议人流引向报告厅;建筑北侧设图书馆工作人员的出入口,并设置连接各层的封闭式疏散楼梯。环绕中庭的阶梯坡道,不仅有效疏散了各向人流,同时也承担了开放式展览、自由阅览区的功能,视线了交通空间的趣味化和不同功能的立体式交融。
▎立面设计
在立面设计上,建筑北侧的方体以米黄色石材作为外墙饰面,并通过简洁大气的形体切割以及虚实有致的开窗方式,表现出仿山如石的拙朴之美,既有化繁为简、回归本源之意,体现物理研究的科学特征和伟大贡献,又能暗示出图书馆将承继辉煌的历史走向广阔的未来。
建筑南侧的三菱体以暗红色石材板为外墙饰面,以求与西侧红砖为外墙饰面的理学楼群取得色彩上的和谐,并用铁艺窗花印刻各种经典物理公式和演算过程,强化李政道图书馆的学科特点,使三菱体周边成为励志、学习和互动的场地;三菱体的几何造型、石板的暗红色彩以及向上延伸的户外台阶共同强化了不断攀登科学高峰的构思主题。
▎场地设计
在景观与场地设计上,南面的广场设为宽阔的大草坪,其间种植草树,校内师生可于此聚集、漫步。向西的户外大台阶作为强化图书馆与理学楼群关联的核心要素,不但能把理学楼群的师生直接引向图书馆;并且把科学和艺术展览的功能从图书馆室内延伸至室外,为交大师生和各参观者提供了一个集户外阅读、观展、思考、讨论、讲演等多功能的活跃场地。
0
4
综合效益
COMPREHENSIVEBENEFITS
_
_
“细推物理须行乐,何用浮名绊此身”,李政道图书馆是诺贝尔奖获得者李政道先生在上海的工作室所在地,同时也作为李政道先生的访问讲学与科学研究基地,并收藏李先生本人的藏书与艺术藏品。项目立足于李政道先生三十一岁便获得诺贝尔物理学奖的辉煌成就,取用“山”的意象,激励青年学生和科技工作者坚持不懈、勇攀科学高峰,集中体现一代科学巨匠严谨的科学态度和作为炎黄子孙的拳拳赤子之情,传达李政道“物理巨擘、赤子情怀、科艺双馨”的伟大精神。李政道先生对图书馆设计方案高度认可,认为方案“极为达意”,并亲笔致函表示感谢。
0
5
设计图纸
DRAWINGS
_
_
总平面图 MASTER PLAN
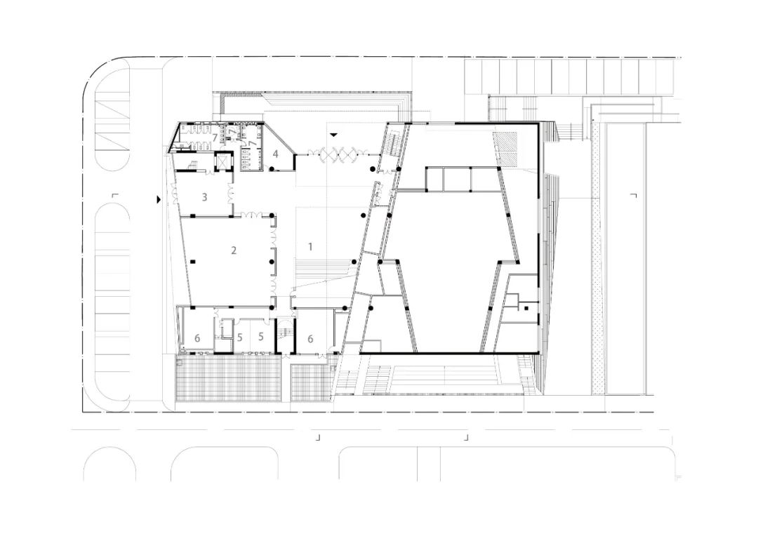
首层平面图
FIRST FLOOR PLAN
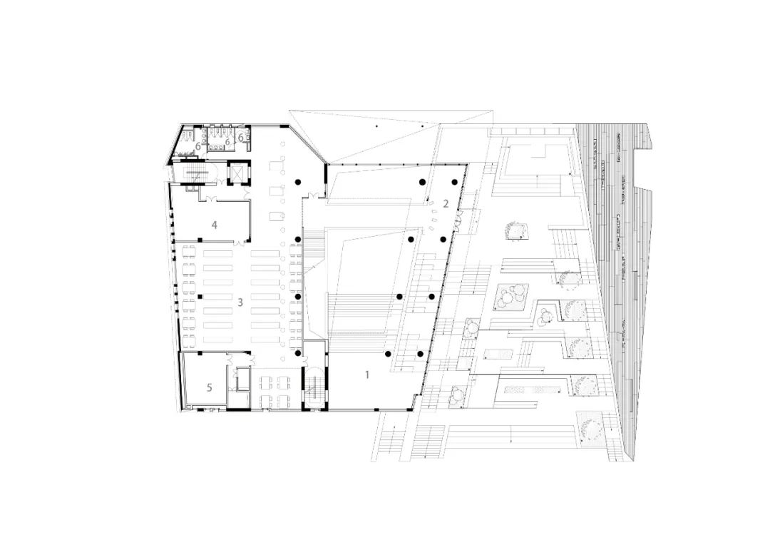
二层平面图
SECOND FLOOR
PLAN
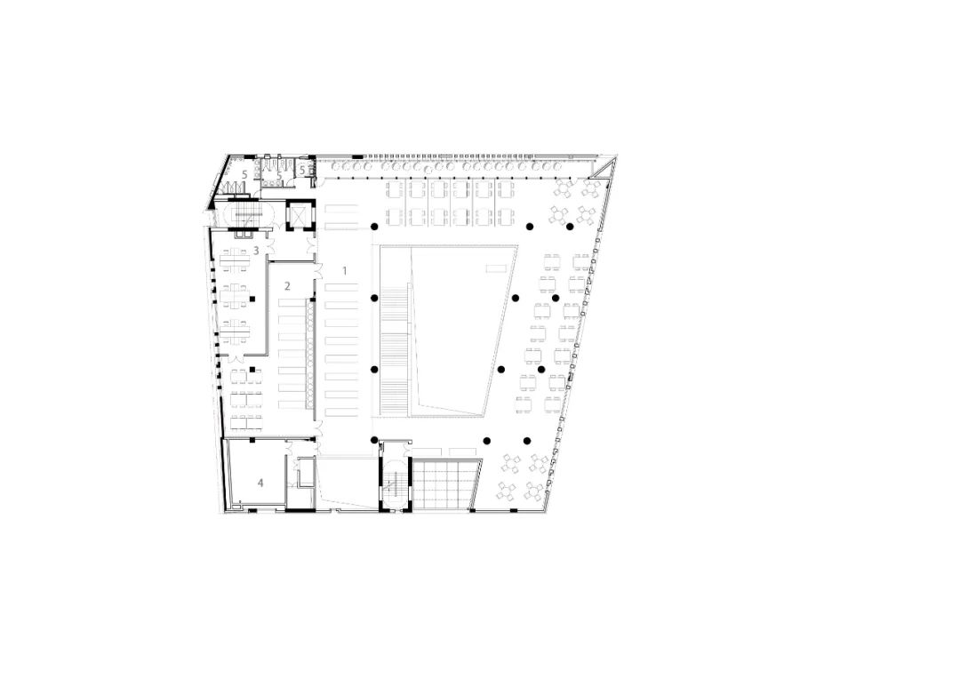
三层平面图
THIRDFLOOR
PLAN
立面图
ELEVATION
剖面图
SECTION
▎项目档案
项目名称:上海交通大学新建闵行校区李政道图书馆
项目位置:上海交通大学闵行校区
总用地面积:10200.25㎡
总建筑面积:6497.47㎡
设计时间:2012-2018 年
竣工时间:2018 年 10 月
设计单位:华南理工大学建筑设计研究院有限公司
项目负责人:汤朝晖 杨晓川
建筑:李鸣正 苏国彦 陈怡 韦浥春 何敏俊
结构:方小丹 周越洲 王帆 秦柏源 陈志城
机电:王琪海 李雄华 杨翔云 张邦图 耿望阳 范细妹 黄光伟 黄璞洁 何耀炳
摄影:汤朝晖 杨晓川
▎项目获奖
·2020 年中国建筑学会建筑设计奖公共建筑一等奖
·广东省注册建筑师协会第八次(2015 年度)优秀建筑佳作奖
供稿项目组
编辑 企划部
校审 汤朝晖
版权 华南理工大学建筑设计研究院
往期精选
华南理工大学建筑设计研究院有限公司
业务联系:020-87111157(经营部)
人才招聘:020-22238270(人力部)
企划宣传:020-87111579(企划部)
了解更多:
客服
消息
收藏
下载
最近
























