查看完整案例

收藏

下载
全景鸟瞰
项目概况
柳州九洲大厦规划总用地面积
21386
㎡
,总建筑面积
103515.45
㎡
,地上最高
35
层,地下
2
层,建筑高度
162.9
米
。
为办公、酒店、商业为一体的综合建筑,定位为柳州市柳江边的地标建筑。
▎设计理念
柳州市是山水城市,青山环绕,水抱城流,
“城在山水园林中,山水园林在城中”,我们将把 “龙游山水”概念融入建筑造型,将错落的建筑体量,丰富的立面虚实对比,在建筑立面上形成连续的折线图案,抽象构造游龙的形象,营造典雅明快的建筑造型,形成柳江边独树一帜的城市名片。
经合理的建筑深化和结构设计,这座超150米超高层建筑土建单价仅为46
50元/㎡
。
技术难点
该项目是柳州市首例岩溶地区采用刚性桩复合地基的超高层建筑;空中连廊采用高3层方钢管空腹钢桁架,楼盖采用焊接H型钢梁-钢筋混凝土板组合楼盖;圆钢管混凝土柱的运用,可减小框架柱截面,取得良好建筑空间视野。
设计特点
1、项目位于亚热带气候地区,根据不同朝向,建筑表皮上进行多种幕墙格栅组合,实现遮阳节能效果;
2、裙楼的弧形立面,与十字路口形成圆滑连续的沿街城景空间,赋予空间亲切感;
3、两座塔楼错开并设有三层空中廊桥,结合酒店功能作为酒店行政酒廊,既将北侧的城市广场景观渗透,形成视线通廊,又将空中廊桥成为项目的特征与焦点。
▎设计图纸
▲总平面图
▲负一层平面图
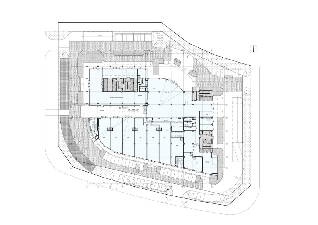
▲首层平面图
▲
标准层平
面图
▲南、北立面
图
▲西、东立面
图
▲剖面
图
▎项目信息
项目名称:
柳州九洲大厦
项目地点:
广西壮族自治区柳州
市
总用地面积:
21386
㎡
总建筑面积:
103515.45
㎡
建筑高度:
162.9 m
设计时间:
2009年
竣工时间:
2014年
设计单位:
华南理工大学建筑设计研究院有限公司
设计团队:
杨晓川、汤朝晖、
韦宏
、
黄睿、李祺燮、
唐雅
男、
丁少润、
方小丹、黄莺、林小海、
江帆、
冯文生、
曾志雄、高飞、杜智恒
等
▎项目获奖
·获
2019年度全国优秀工程勘察设计行业奖(
建筑
)三
等
奖
·获
2019年度全国优秀工程勘察设计行业奖(结构
)二
等
奖
·获
2019年度教育部
优秀工程勘察设计奖(
建筑
)
二等奖
·获
2019年度教育部
优秀工程勘察设计奖(
结构
)一
等奖
供稿 项目组
编辑 企划部
校审 杨晓川、黄睿
- END -
往期内容
·
抗战胜利75周年|勿忘历史 吾辈自强
·
特区四十载
丨回首来时路 华工设计院“建圳”再出发
·
华工设计院与广州市政总院签署战略合作协议 携手助力城市高品质建设
·设计院党委组织开展“四史”学习教育专题党课暨读书月动员会
·
处暑
|
处暑无三日 新凉直万金
·
村落中的游乐场
|
广东省河源市源城区特殊教育学校
华南理工大学建筑设计研究院有限公司
长按添加关注
业务联系:020-87111157(经营部)
人才招聘
:020-
22238270
(人力部)
企划宣传:020-87111579(企划部)
客服
消息
收藏
下载
最近















