查看完整案例

收藏

下载
西侧景观低点 摄影:
陈小铁
项目概况
项目位于广州市白云区同和路东侧,此地块背山面水,东面靠山,可以看到美丽的山景,西面,南面视野比较开阔,可以望到波光粼粼的南湖及广州市区,地块垂直高差达118米,拥有得天独厚的自然景观。
项目由高层住宅和低层住宅,及小区配建的公共配套设施组成,
是一个生态、低密度的花园式山地住宅项目。
C区包括8栋2-3层的连体低层住宅,C区的建筑面积为
6750
㎡
;
D区包括4栋24-27层高层住宅,及一栋与之相连的小区会所,D区的建筑面积为
77664
㎡
。
最高建筑高度93.7M。
小区综合平衡容积率0.71,绿地率32%。
▲设计草图
▎设计理念
01
因地制宜
规划总平面建筑布局结合山地特征,采用台地开发模式,因地制宜进行布置,形成顺应地势的小聚落组团空间和层层跌落的山地景观。
原有地形
在别墅区和高层区存在一个陡崖,规划利用地下车库空间的合理布置,强化了别墅区的层叠布局,弱化了陡崖造成的压迫感,减少了土方的回填,形成了更加人性化的场地空间。
▲总平面图
▲分析图1
02
景观资源最大化
场地西侧为广州市著名的风景区南湖。
项目采用了逐层抬高的布置方式,多数低层住宅都有较好的视线通廊,高层布置在半山之巅不仅不会遮挡别墅,更为高层住户提供了更加独特的景观体验,强化了景观优势。
▲分析
图2
03
户型创新
高层住宅将台地的概念引上空中,在空中植入平台,并用层层成90度错位,形成6米高的空中院落。
客厅结合平台设计在楼宇尽端转角处,为住户提供270度的无敌景观。
在顶层更提供三层的复式空中别墅。
▲
高层住宅转角阳台 摄影:陈小铁
04
接触自然
不仅仅是低层住宅的半开敞天井院落,高层住宅的环绕形的大平台和空中院落,而且在高层住宅下部的半开敞阳光车库中,设计最大限度的让住户能有机会接触自然。
▲
建筑整体日景 摄影:战长恒
▎技术创新
1、低层住宅户型根据地形不同,分别设计为前高后低,前后相平与抬高基座的不同的户型来应对。
在造型上以错动的平台和木色遮阳板作为主要造型元素,通过移动百叶,形成可变的外立面肌理,为现代造型的住宅增添细部。
▲别墅
低点
摄影:
陈小铁
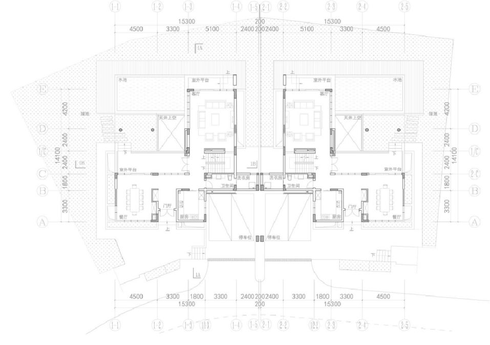
▲低层住宅户型图-C01栋首层平面图
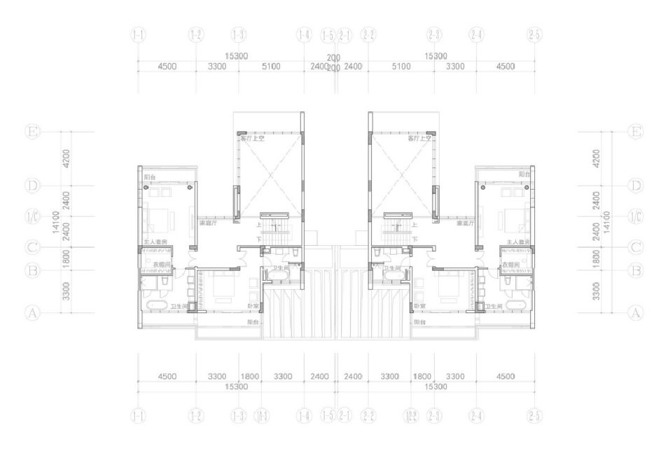
▲低层住宅户型图-C01栋二层平面图
2、四栋高层住宅建筑利用横板的元素强调建筑层的感觉,并不断左右错落,既丰富活泼了立面,又可以形成两层通高的空间,使视野变得比较开阔。
在顶部设计的多套复式户型,利用平台出挑为住户设计了空中私家泳池,提供十分独特的生活体验。
▲
摄影:战长恒
▲高层住宅户型图-D-1栋双数层
平面
图
▲
通往建筑车行路 摄影:战长恒
3、半山会所。
在D区高层住宅区,结合地形,横跨山崖设置了半山会所,住户可通过塔式电梯从山脚直达高层的入户平台花园,并在层层叠落的平台上设置不同的功能用房,满足住户的文娱活动和社区交往,顶层设置屋顶无边泳池,一览南湖美景。
▲
高层夜景 摄影:战长恒
4、阳光车库。
在高层住宅的底部,结合山地地形设计了一面开敞的阳光车库。
车库采用斜坡式停车,减少施工土方的开挖同时,提高了停车效率。
在外围护上没有采用传统的墙体封闭,而是采用预制清水混凝土板遮阳,形成富有韵律,可以呼吸的外立面。
▲
车库屋顶花园
摄影:
战长恒
▎技术难点
建筑设计结合山地特征采用跌落式设计,并设置集中的公共绿地,形成具有山地特色的居住组团。
高层住宅位于山坡上,由低点的基础面标高-23.05m过渡到高点的基础面标高-15.2m,高差约8m。
采用了桩基础,保障了建于山坡上的本高层住宅的安全。
▲南湖山庄D-1至D-4、G-7栋展开立面图
▲高层低点
摄影:
战长恒
▲高层住宅外观
摄影:
战长恒
▲空中花园大堂入口 摄影:
战长恒
▲高层复式玄关
摄影:
战长恒
▲高层复式转角餐厅
摄影:陈小铁
▲高层复式客厅
摄影:陈小铁
▲
高层住宅屋顶泳池 摄影:
陈小铁
▎项目信息
项目名称:
广州南湖山庄项目
—
C区住宅与D区高层住宅
项目地点:
广东省广州市白云区同和路贤庄地段1080号
设计时间:
2009年
完成时间:
2014年10月
设计单位:
华南理工大学建筑设计研究院有限公司
设计团队:
倪阳、林毅、陈福熙、高飞、陈欣燕、吴小卫、张敏婷、田珂、邓心宇、徐杰星
摄 影:
战长恒、陈小铁
▎项目获奖
·获
2017年度
教育部
优秀勘察设计奖(优秀住宅与住宅小区设计)一等奖
·获
2017年度
中国勘察设计协会全国优秀工程勘察
设计行业奖(优秀住宅与住宅小区设计)一等奖
·获2018年中
国建筑学会建筑设计奖
(住宅建筑)二等奖
供稿 倪阳工作室
编辑 企划部
校审 林毅
- END -
往期内容
·助力湾区城市新中心|华工设计院赢得前海公共空间设计国际竞赛
·延续场地的记忆
|中华慈善博物馆
·
从撤点小学到最美乡村营地|雷励贵州大项目活动营地
·长沙新地标|长沙滨江文化园
华南理工大学建筑设计研究院有限公司
长按添加关注
业务联系:020-87111157(经营部)
人才招聘
:020-
22238270
(人力部)
企划宣传:020-87111579(企划部)
客服
消息
收藏
下载
最近

























