查看完整案例


收藏

下载
回向空间设计工作室最近为高级定制婚纱品牌清果KINGOBRIDE设计了他们的第一家旗舰店。
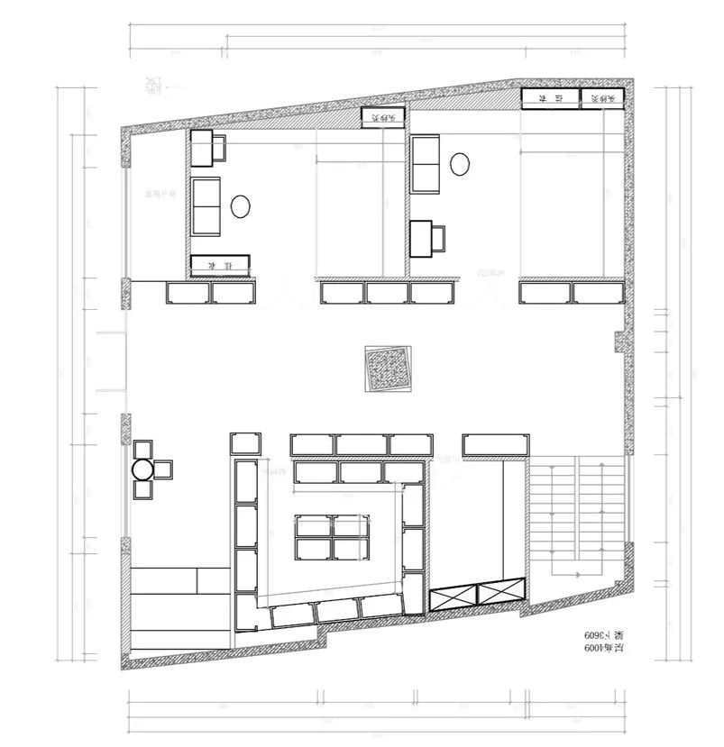
▼平面布局一层
,plan
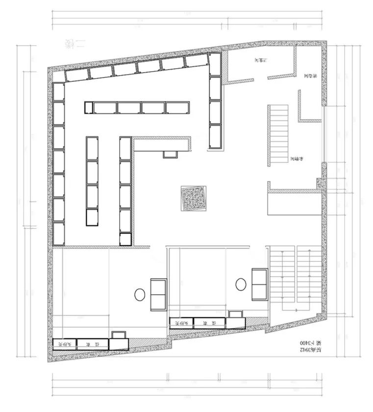
▼平面布局二层
,plan
▼建筑外观,exterior view
▼入口细部,entrance details
回应清果KINGOBRIDE一贯坚持的舒适精致并经得起时间考验的品牌理念,设计团队打造了一个纯粹凝练的空间。不同于传统精品零售店一成不变的布局和销售模式,这个婚纱店的设计抹去纯展厅的理念,也摒弃了通常婚纱店采用的或复古或华丽的流行设计元素,用现代极简的建筑语汇创造了一个具有古典氛围和仪式感的空间,素净统一的色调和强烈的秩序感,让人联想起希腊神庙。配合展出其中的婚纱,传达出永恒和纯洁的意味。
▼前厅,atrium
▼发光膜切角相互交叠,形成高度的向上延伸感
▼过厅,foyer
▼试衣间概览,dressing room overview
项目名称: 清果国际品牌婚纱旗舰店
场地地址: 山东烟台
项目类型: 精品零售商店
设计师: 回向空间设计
完工日期: 2019
面积: 650
设计团队: 谷晓贝 / 王璐婷/ 杜崇泽/
品牌策划团队:南无督造
联系信息: guxiaobei@huixiang.design
主要材料: 肌理漆/黑色金属/地毯
摄影师: 王建飞
客服
消息
收藏
下载
最近















