查看完整案例

收藏

下载
“竞”享激情 X 热血 X 澎湃 X 荣耀。“电竞”一词在大众视野中刷爆存在感,是 2018 年的 IG 战队在英雄联盟全球总决赛中斩获冠军。对于时尚圈而言,电竞真正的破圈事件是近年来 LV 和英雄联盟的联手合作。自此,“电竞热”成为一股浪潮...
Louis Vuitton 与英雄联盟联名推出时装系列。
电竞早已非“宅男专属”,庞大用户群体、高比例年轻人群和越来越多女性用户的受众基础让电竞受人追捧!
万景百年以国内近来最火爆的游戏《英雄联盟》作为设计主元素,结合科技、现代、智能、虚拟等多方面,打造一处让电竞爱好者体验 360 度置身游戏的完美沉浸式空间。
步入整个空间,迎面而来的是金属的光泽和充满未来感的科技银,营造出科幻炫酷的未来氛围。设计师意图打破空间维度,墙面和天花毫无违和地几何式衔接,仿若将游戏的虚拟空间搬到了现实。不同电竞元素点缀在整个空间中,像是找到了通往另一个次元的入口。
天花采用透光膜,几何式的有序排列突显空间的立体感。石材、金属以及玻璃的碰撞,LED 滚动屏,符合人体工学的科幻电竞椅以及专业的玩家电脑桌,仿若置身赛事现场,营造激情澎湃的电竞场景,无时无刻不忘热血奋战。
打破常规的空间布局和展示手法,金属和几何的灯光将空间切割成多元且私密的功能,炫酷的线条将潮流融入极简之中。
同时,在电竞之余也不忘休闲舒适的居家体验。科技与家具的结合,具有流线型、现代极简线条的家具以及潮玩手办的加入,营造空间时尚潮流的高质氛围,戏剧化的场景,给与空间更多的对话可能
走上通透的楼梯来到二楼,空间的氛围也从热血澎湃的电竞时间转为更为休闲的场景体验,楼上楼下的联动,加强了人、物、空间之间的交流。
充满造型的沙发与高定茶几,随意坐下便能来一场激情的手游或者做一场现场直播,玻璃的通透开阔,墙面天花韵律感的排布,带来了未来的无限遐想。
来到房间,是专属于你的个性空间,延续未来感的白色以及金属反射的色调,搭配经典复古的星球大战绝地武士、懒人沙发、各类心爱的潮玩手办,营造充分放松身心的休闲空间,闲暇之余还可来一局手游,逍遥自在...
在这里,对于未来的幻想可以无限放大,各种艺术、科技的形式都试图与未来融合,电竞的热潮不会退散,对于未来的美好畅想正一触即发...
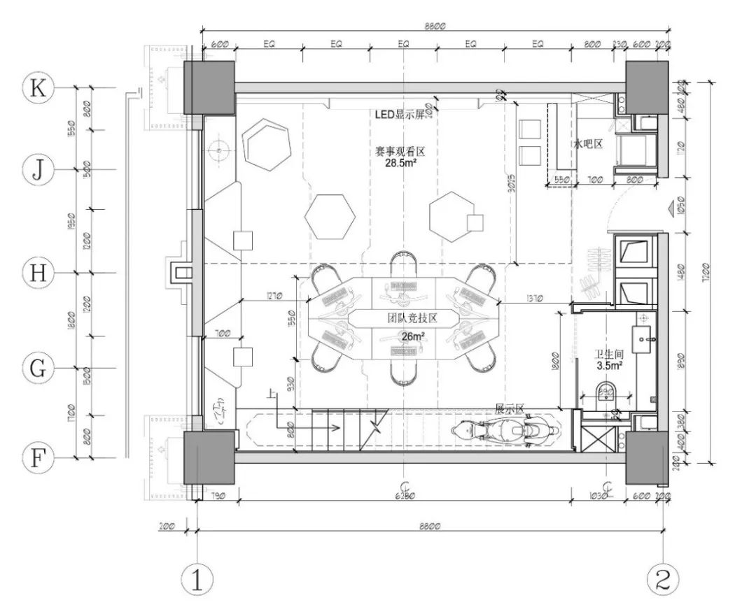
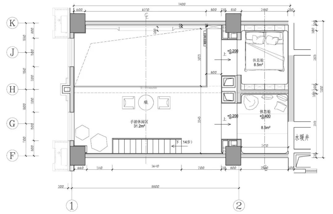
平面图
项目名称:华润 | 沈阳公元九里 loft 户型
业主名称:华润置地(沈阳)公司
设计单位:万景百年室内设计
项目地点:沈阳
项目面积:90 平
服务范围:室内设计、软装设计、陈设执行、艺术品设计
上海 博荟广场
上海市中山南一路 768 号博荟广场 C 座 1701 室 200023
Suite1701,TowerCONE EAST
NO.768 Zhongshan S1 Road,Shanghai,China 200023
T:+86 21 63289898 F:+86 21 63369358
北京 三里屯 SOHO
北京市朝阳区工体北路 8 号 三里屯 SOHO C 座 801 室 100027
Room801,Tower C, Sanlitun SOHO, Chao Yang District,Beijing,China 100027
T:+86 10 59359578 F:+86 10 85900186
设计顾问 | 酒店设计 | 地产设计 | 商业设计 | 康养设计
客服
消息
收藏
下载
最近






















