查看完整案例

收藏

下载
我们的设计让空间和自然景色完美且平衡的融为一体,同时激发着访客们去探索和分享,去融入并成为设计的一部分。
We create a place that is always in balance with nature and at the same time inspiring for visitors to explore, to share and to become part of it. - Peter Ippolito
之于既有实力又有品味的“千禧世代”,现代化的生活方式意味着个性与自然的融会贯通,对家庭与健康的崇尚尤其体现在其对生活品质的追求当中。呼应自然,开放空间,材料的质感和工艺是旭辉地产在其售楼中心设计中力求传达的信息。太湖孕育了无锡,未来业主们在这里踏上寻根溯源的道路,追寻内心深处的渴望,找到自己的梦想住宅,用建筑的语言来诠释天人合一和秩序方圆的诉求。
For the new generation of affluent millennials, the modern lifestyle to which they aspire means being able to pursue a quest for individuality in harmony with nature. A deep appreciation of family and health is particularly evident in their high living standards. Accordingly, a connection to nature, generous dimensions and high-quality materials and workmanship are the key features of the construction projects that real estate developer CIFI renders tangible in its impressive sales centres. In Wuxi on Lake Taihu, prospective buyers experience their dream lifestyle as a journey back to the roots of their desires: Our interior design conveys a connection to nature aligned with the traditional ordering principles of Chinese culture. Taihu Lake 太湖
非同寻常的地理位置和深入植根本地文化是旭辉地产的特色。因此,无锡售楼中心一方面从身边天然美景中汲取营养,一方面参考当地古典江南园林的建筑特色,打造出错落有致的水景庭院。室外的天然景观通过窗棱设计被拉进室内,空间与空间之间和谐过渡。对称的静谧和流动的活力使整个空间兼具安稳与生机。
CIFI construction projects are always distinguished by their exceptional location and the incorporation of regional particularities. In this way, the CIFI Sales Center in Wuxi not only references the surrounding landscape, but also the traditional vernacular architecture of the Jiangnan Mansion. All rooms are laid out in a clear, hierarchical order around a central courtyard, featuring classical water elements. The rooms stand in harmony to each other through the use of framed vistas that curate the beauty of nature for the viewer. A balanced stability and fluid structures come together to form a unique spatial experience.
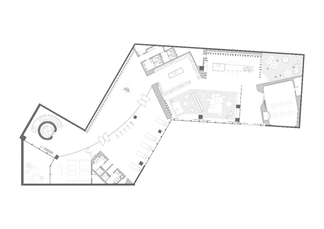
在这座售楼中心,“客户旅程”由一系列精心编排的动人瞬间组成,每一个瞬间都通过视觉唤醒,像一件艺术品一样在访客眼前展开,在心中绽放。从开始到结束,旅程中的每个“驿站”都在诠释旭辉集团的品牌承诺——“用心构筑美好生活”。每一点一滴的生活感受都需要一个与之相配的展示空间。在这里,这个空间就是自然与文化之间随时代更迭不断演变的对话。
Transferred to the sales centre, the customer journey consists of a sequence of meticulously choreographed moments of longing, which are impressively staged by means of guided visual connections. All the stations leading up to the sales discussion underscore the CIFI brand promise: Building for a better life. Every feeling to be evoked requires a fitting projection surface. Here it is the dialogue between nature and culture, reinterpreted in multifarious ways.
水景庭院是江南园林的灵魂。访客穿庭过院,即步入售楼中心主体。博大精深的传统文化为中国人留下了许多恒久的价值观,这座售楼中心即是从时代角度对这些价值观的深入思考和进一步诠释。
A path through the central courtyard, the heart of every Jiangnan Mansion, conducts visitors to the sales centre. Upon entering, they are greeted by the contemplative scene of a contemporary interpretation of the timeless values of traditional Chinese culture.
进入售楼处首先是一间设计美好的儿童游乐场,让孩子们可以安全而尽情地探索自己心中的大自然。
Next door is a lovingly designed, playful space for children, who can discover their own natural paradise there.
之后是一个开放的厨房空间。一张宽敞的大桌充分强调出全家一起做饭,一起用餐的美好和重要性。在这里,传统的价值观与独立自主的现代生活观相交融。
This media upbeat is followed by an image of an open-plan kitchen counter, illustrating the social significance of cooking and dining together by means of a generously sized table. Tradition meets today’s lifestyle attitudes of independence and self-determination.
厨房的对面,以书橱和座椅为前景,一幅绿色的画面透过大窗映入访客的眼帘。窗外是这座中心的庭院,这座庭院是举办活动的绝佳场所。售楼任务完成后,这里将是未来业主的活动中心。
On turning around, visitors are rewarded with a view of the green courtyard, framed by a library and seating area. The open-plan area is ideal for independent events. Thus the possible subsequent use of the sales centre as a clubhouse for future residents becomes directly visible here.
向另一侧望去,巨大的橱窗背后是郁郁葱葱的绿植,这景象对每一个追求健康高尚生活的心灵都是一种慰藉。业主入住后,这一空间即可用作提供例如花店等服务。
Another framed vista of plant structures leads visitors into a green tunnel, which responds to a longing for a high-quality, healthy lifestyle in its lush, verdant staging. Here too, a possible subsequent use as a flower shop is already indicated.
接下来是一个宁静的过渡空间,从这里可进入健身区。一边是穿透天花的树干,一边是通透宽大的落地窗,室内的自然元素与室外的景观花木相呼应,打破了内与外的隔绝,一如身边经过的瑜伽室,令人对健康生活的渴望油然而生。
Upon exiting, guests find themselves in a tranquil atrium that serves as a prelude to the health club. Tree trunks grow up through the ceiling, creating a natural focal point in the interior, while a floor-to-ceiling window front establishes further lines of sight to the great outdoors. Passing a yoga room, a signal for life lived in harmony, visitors are led to a sculptural spiral staircase.
经过瑜伽室,访客将由一道旋转楼梯登上二楼。楼上是整座楼盘的建筑模型。从这里开始,访客即可由售楼人员陪同参观样板间。
A small courtyard forms a reference point to the landscape outside and gives the visitor a moment of intimacy before moving on to a spacious exhibition area on the upper floor, which features an impressively displayed architectural model. After taking this in, visitors move on to tour the model apartments.
在品牌展厅的一侧是休闲吧台区,整座售楼中心的各种元素在此汇集。这里有若隐若现的景观和层叠交错的视线;有沉静放松的时刻和私密交谈的瞬间;有室内与室外的呼应融合;有对健康生活的愿景和对梦中居所的渴望。被清风撩动的窗帘模糊了光与影的界限,以土色调为主的高级织物使天人合一的住居梦想更加近在咫尺。
In a final staging of the brand world, prospective buyers find themselves back in the spacious lounge area with its long bar counter, where all the visual elements of the sales centre design are combined. Visual connections, intimate moments, feelings of stability and mobility, flowing transitions from outside to inside, and inspirational images of a healthy life are all superimposed in a compelling way. Billowing curtains create an interplay of light, shadow and reflections. High-quality textiles in earthy colours render tangible the dream of a life in harmony with nature.
售楼中心的客户旅程通过清晰的视线和有的放矢的景观设计为未来业主打造自己的梦中居所定下基调。无锡铂悦太湖售楼中心展示出个性化需求与传统价值观之间的和谐共生。业主在这里被大自然所释放的积极能量拥抱,收获的不仅是一隅居所,更是对健康生活的兑现。时代的脉搏渴望与自然交融,用触手可及的物像来唤醒和表达深藏心中的情感则是本次设计的过人之处。IFG 通过本次设计,成功将旭辉集团的品牌精神用内外兼备的体验讲述出一个自然与文化交融的故事。
The staging of the customer journey is governed by an order that employs clear visual connections and conscious staging to provide a framework for your own ideas for designing your personal living space. The CIFI Sales Centre in Wuxi proves that individual wishes can be realised in harmony with traditional values. The purchase of a high-quality residential property fulfils the promise of a healthy lifestyle, surrounded by the positive forces of nature. A longing to connect with nature in this way is part of a modern Chinese lifestyle. The magic is created by casting these emotions into a tangible form. Our interior design succeeds in communicating CIFI’s brand promise as the inner and outer experience of nature and traditional Chinese culture.
B1
1F
摄影:Eiichi Kano
团队:Peter Ippolito、Patrick Wu、吴星恒、Halil Dogan、Frank Wang 王一非、Aaron Ye、叶鑫凯
客户:CIFI Group Ltd
版权:Ippolito Fleitz Group
客服
消息
收藏
下载
最近





























