查看完整案例


收藏

下载
01
北京壹号院340㎡样板间
施工图PDF+效果图+幕墙设计丨265M
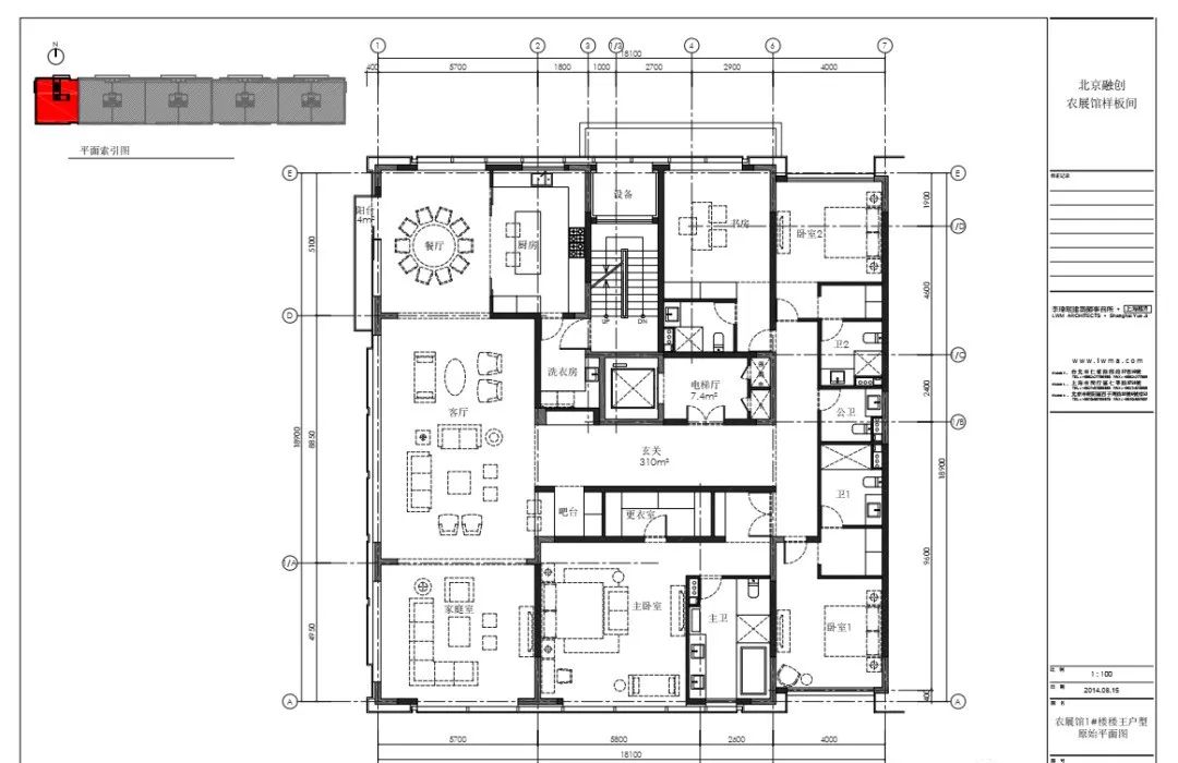
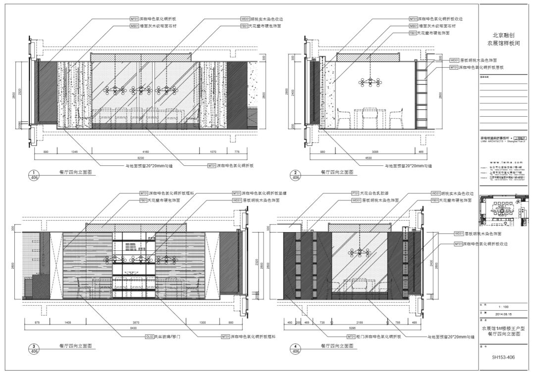
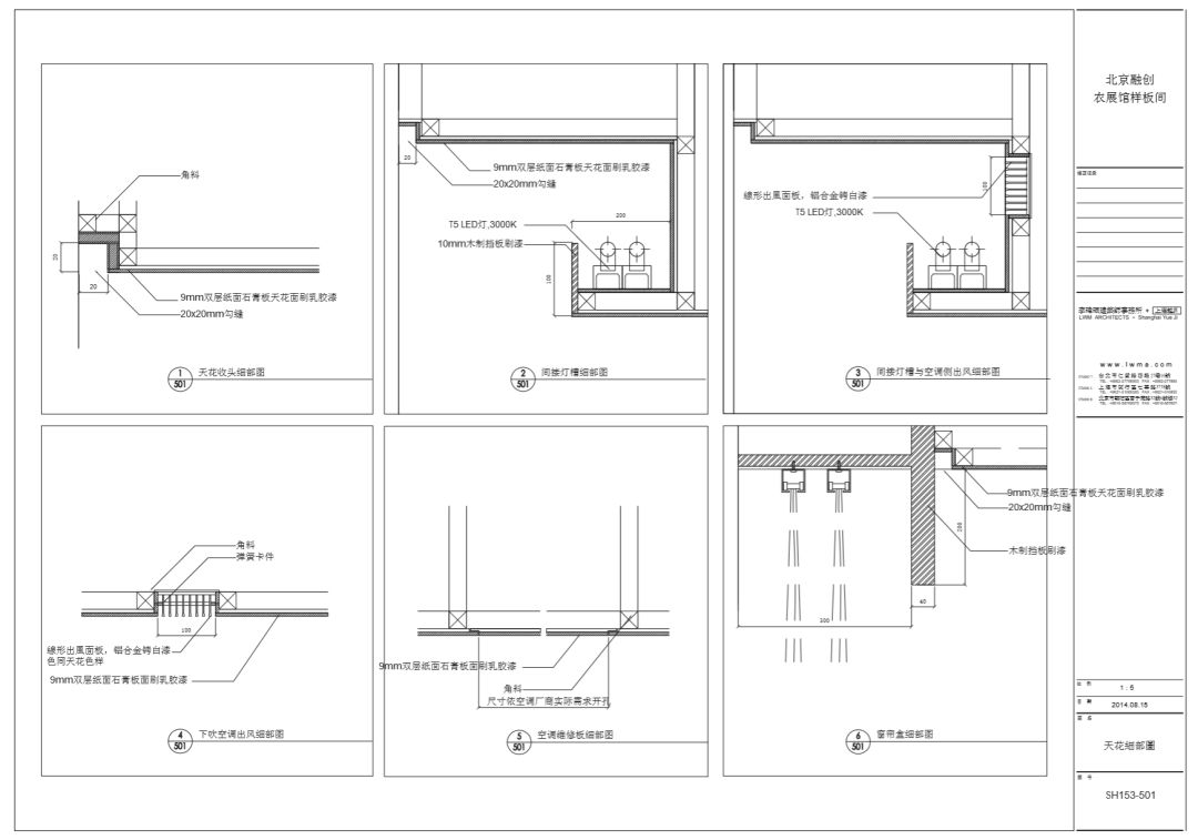
融创北京壹号院
一直被视作融创TOP系标杆产品的豪宅项目,被誉为中国豪宅的“顶豪之王”。
由
李玮珉
负责的北京壹号院样板房的设计中,把“内建筑”、“高级灰”的设计理念贯彻到底,其最终呈现的效果得到了行业内外的一致好评。
(部分展示)
◎ 以下图片请横屏查看
(部分展示)
02
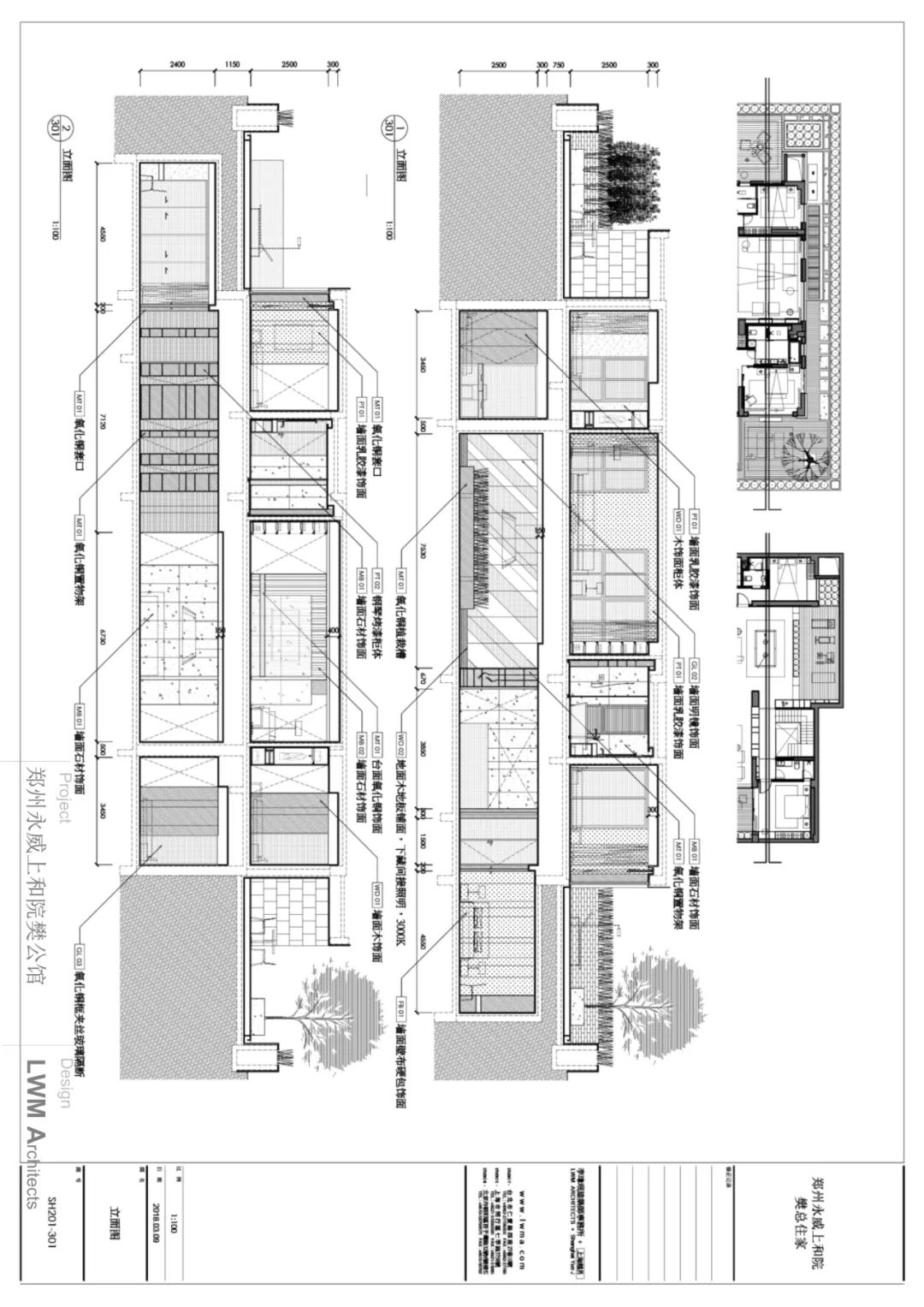
郑州永威上和院樊公馆
方案PPT+施工图CAD+景观方案PPT丨615M
(共
98
P,部分展示)
◎ 以下图片请横屏查
本文版权为原作者所有,
内容仅用于学习交流
客服
消息
收藏
下载
最近




































