查看完整案例


收藏

下载
01.破旧厂房到体验式酒店的惊喜蜕变 |首创拾柒酒店
02.工业老厂房化身多元有趣的居住空间 |MISA 工作室
03.老旧服装制厂变身儿童活动中心 |少年儿童活动中心
04.工业红砖仓库改造多功能空间 |‘回声’宅
05.重庆印制厂改造特色办公空间 | 举目垂屏
06.老厂房变身艺术社区 | 良友红坊文化艺术社区
07.三层砖墙式老厂房改造联合办公空间 | 幸福公园联合办公室
08.机床厂改造博物馆 | 江南造币博物馆及金基集团总部办公
01.
首创拾柒酒店
地点:北京
设计公司:DAGA Architects 大观建筑设计
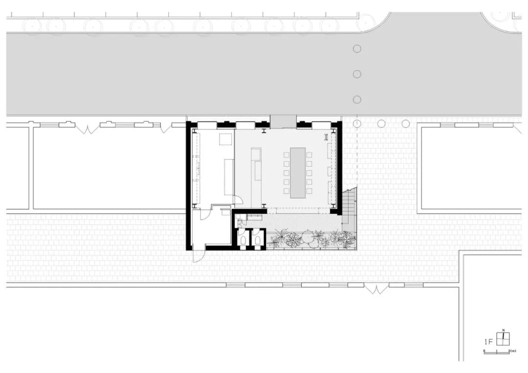
位于北京东城区永生巷的北京三露厂旧厂区,如今被首置文科改造成一个传播全国非遗文化的创新发展平台,隐于其中的非遗主题酒店希望创造一个集现代生活与传统文化于一体的特殊场景体验式酒店。
改造前
场地中原有的三组建筑物,分别为东南侧三间平顶砖混库房,西侧两排坡屋顶砖混合结构废弃建筑以及天桥底部两层的宿舍楼。大观建筑在改造设计中,既要使得独立分散并且保存状态各不相同的三组建筑物有序的共存,又能因地制宜的设计出不同的客房风格,展示不同的非遗文化。
原始旧厂区的历史悠久,百余年来多次修建,改造剩余了大量旧砖瓦堆砌在厂区角落,此次建筑改造很幸运的将其发现,并运用于设计之中。
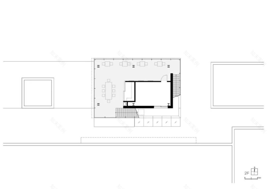
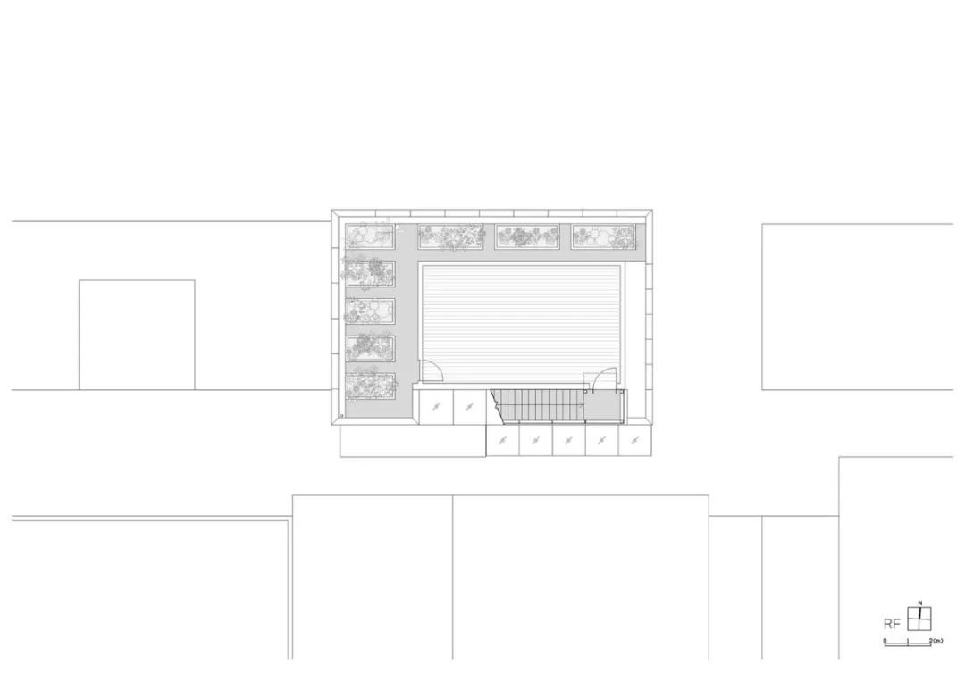
在场地中植入一个钢结构加玻璃采光顶的公共空间,将原始的三组建筑串联起来形成三个内庭院。同时玻璃采光顶的运用又保证了客房的自然采光。三个室内庭院在功能上互相区分,构成了酒店的三种公共空间:接待空间、交流空间、交通空间。
酒店共 17 间客房,6 种户型,每种户型中对于非遗文化的展示和要求各不相同,但都要改造出舒适的居住环境。
首层平面图
二层平面图
02. MISA 工作室加住宅
地点:杭州
设计:万境设计
项目位于一个中空的旧厂房内部。其设计目的是在当下工作与居住过度单一化的环境下,将这个城市的废弃空间改造成一个多元有趣的居住空间。
原有空间间隔与两幢厂房之间,是一个运货通道,顶面留着旧有的钢结构轻质顶棚。建筑周边从外部看缺乏良好的环境氛围,但是进入内部,你就会发现,因为有中庭的存在,整个空间感到非常明亮。
这个内部庭院占据了房子三分之一的面积。它提供了一种与自然的接触,并揭示出自然的各个方面,是工作生活的中心,也是一个引换正在现代城市日趋消逝的光、风、雨等自然物的一种装置。天光渗入院中,在墙上和院子里投下深深的阴影。
平面图
立面图
03.
少年儿童活动中心
地点:北京
设计:REDe Architects + 末广建筑
本项目的前身是一家建于 20 世纪 90 年代的服装制造厂,业主买下整个空置的厂区后,拟保留原有建筑物,并将其改造更新成以儿童科技馆为主,融合酒店、亲子教育、游学营地、商业等综合业态的少年儿童活动中心。
整个厂区主要分为南北两院。北院以是排架结构为主的单层单跨大厂房,曾经是服装厂区内最重要的生产车间。南院是砖承重墙木桁架屋面的小开间红砖房,原功能分别是库房、集体宿舍和食堂。基于原始建筑尺度和结构特性,设计把儿童科技馆、多功能厅和餐厅等需要大跨度空间的功能集中在北区;把酒店住宿功能集中在南区。
在大体量厂房与北方苍茫山脉间营造近人的尺度,通过置入步道、廊道、小广场和过庭等一系列空间构筑物,串联北院活动空间到南院住宿区的连续的立体景观体验,是密云服装厂改造项目最大的空间体验特色。
▼园区改造前后对比分析图
▼园区功能平面图 ©REDeArchitects+末广建筑
04.
“回声”宅
地点:北京
设计:KLC
该项目场地位于北京五环附近,位于市中心和郊区之间的特殊边界地区。它是一个工业街区,里面的红砖仓库是用于六十年代,客户买了一个老旧的红砖仓库作为主要的工作室和美食吧,仅出售有机植物制成的饮料,找来设计团队进行设计。
建筑需要有两层,包括食品实验室、就餐空间、销售空间、工作区、供团队艺术家使用的画廊、办公区和温室。
设计团队根据以下 8 条规则设计了项目。所有这些规则都具有多重视角,因此所创造的空间也非常激动人心。
动线分析
概念:共存
1.入口从外部看要显而易见,且有空间感。
2.从室内看向室外的景色要丰富。
3.将低密度和细长的流线变成一个空间。
4.设计一个没有隔板或门的连续空间,并根据室外环境确定室内每个位置的用途。
5.在营造建筑环境时,首要从被动式设计方面考虑,其他机械设备附加可选。
6.混合结构系统不仅要强调机械张力,而且要表达力的流动。
7.建筑材料应便于当地的建造技术获得,并应能联系过去与未来。
8.应当在产品和建筑设计的意义上创造出人工制品。
室内空间没有设计任何门,试图将三层楼的空间通过气味和声音连接起来。没有严格的空间使用规则让空间变得灵活且界线模糊。客户甚至可以坐在交通流线的中间。
同时,可以从建筑物内的任何方向感受到自然光,从而形成 3 维螺旋状的空间,像植物一样向上生长。
首层平面图
二层平面图
三层平面图
剖面图
05. 举目垂屏
地点:重庆
设计:青·微舍工作室
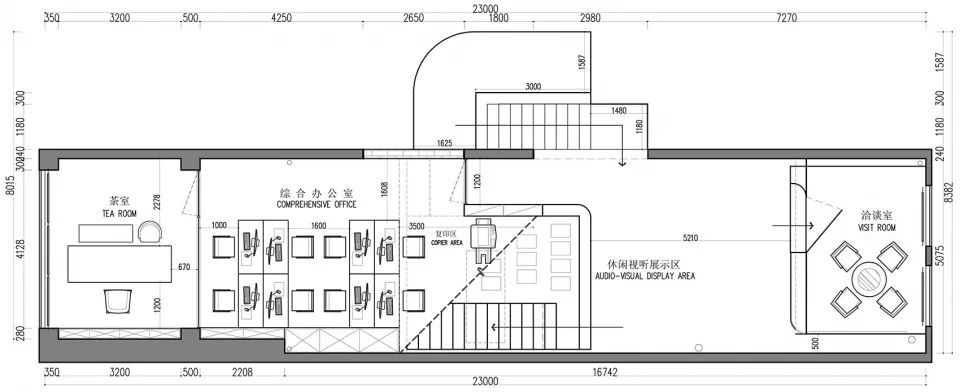
本项目是一处老厂房改造的办公空间,位于上世纪 30 年代修建的重庆印制一厂。轻工业并没有给房子留下太多的痕迹,就像是一间新建的毛坯房。
室内空间长 25 米,宽 5 米,通高 6 米。这对于一个不足十人的小团队而言并不算小,但作为一个策划公司,他们有其独特的空间分配方式:从空间类型上,并不像是个办公室,而更贴近于报告厅或是小剧场。
设计团队创造一种新颖的观演行为模式,并将其赋形,除此之外,不再做任何形式上的操作。
在这个低头一族的时代,一块巨大的屏幕悬于头顶,也许能片刻的治愈当代人的分神或是颈椎病,重拾古人仰望星空时的沉静、却又充满好奇。
一层平面图
夹层平面图
剖面图
06.良友红坊文化艺术社区景观改造
地点:武汉
设计:瑞拓设计
武汉良友红坊文化艺术社区前身是 1960 年代的老厂房,杂草丛生,建筑破旧,排水不畅等等问题困扰着这个原来的城市“棕地”,也使得这个节点如同一块城市伤疤,急需进行一场在地“手术”。
2018 年,上海红坊集团接手这个厂区的运营,找到设计团队对园区的景观设计和核心建筑 ADC 艺术设计中心进行了改造设计。
设计既不能采用置换式的大手术,也不能采用磨皮式的美容术,采用的是保留亲切感的距离感:让来到这个文化园区的人感觉到:仿佛回到自己的小时候,细看之下却是置于当代艺术的环境之中;这种对比产生的距离,以及因此延续的厂区文脉,能给目前轰轰烈烈的城市更新提供一种新的方式。
07.
幸福公园联合办公室
地点:上海
设计:向域设计事务所
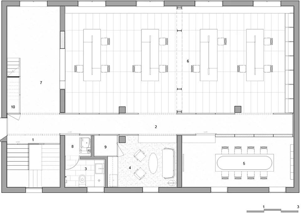
幸福公园坐落于幸福路上一幢位置显著但却极不起眼的老厂房三楼,对面是一个绿地公园。这幢建于上世纪 50 年代的 3 层斜顶砖墙式老厂房,平面面积约为 200 平米,三楼最高处的层高有 5.5 米。幸福公园是 Hidden Group 第一个实验性的联合办公项目,不同领域的设计师聚集于此,构成微小却丰富的行业生态。
传统的办公空间通常是运用隔墙围合出一个个不同功能的房间,房间与房间之间自然的形成了走廊。设计师反其道而行:把走廊作为整个空间的设计重点,将它视为一个独立的体量嵌入这个开敞空间。
轴测图
为了最大程度地保留老厂房的原始结构和层高,并且尽可能加强采光,建筑师拆除了所有过去几十年里修建的墙体和楼板。裸露的青砖诉说着空间的过去,原始宏大的木桁架在宽敞的开放式办公区耸立,空间被最大程度地释放出来。
平面图
08.江南造币博物馆及金基集团总部办公
地点:南京
设计:反几建筑
江南造币博物馆及金基集团总部位于南京来凤街菱角市 66 号,由一栋老厂房局部改造而成,项目所在的“国创园”园区,前身为南京第二机床厂厂区,厂房内部与外部给人的印象反差极大。
从外部看,“铸造车间”可谓平淡无奇,水泥抹灰墙面上开方窗,朴素而略显单调;而内部,3 列砖拱砌体在形式上具有强烈的韵律感,清水砖砌叠涩和拱券呈现出砌体结构特有的建构美感。
因此设计团队从厂房结构中提取出结构“单元体”进行尺度转换分析,3 道砖拱砌体把项目所在区域划分成南北两区。博物馆内部设置的“拱”形要素将空间划分为三部分,拱券设计手法充分呈现出“砖拱吊车梁”工业结构的建构之美。
剖透视
平面图
本文版权为原作者所有,内容仅用于学习交流
客服
消息
收藏
下载
最近































































































