查看完整案例


收藏

下载
办公空间占用了每天1/3甚至以上的时间,
于常规企业形象打造和工作效率提升之上,
是否也可以成为美学理念展演的生活新场所?
就着这个问题
设计团队做了不少思考
打造的中国内地第一家新零售概念店——
达明·纸间画廊
空间自有其要讲述的故事,设计首先是对其原始诉求的命题拆解:
1.与品牌及其产品产生多样且持续性的关联;
2.结构比例,空间基本格局的规整与变化;
3.分区,办公功能与其他场所功能的分与合;
4.社交场域,开放与私密、静态与流动性的平衡。
▲通过有效分割,空间规划为包容多种功能的剧场盒子。
基于空间的多命题诉求,设计师引入“剧场”这一创作概念,将舞台式的空间置入办公场所。同时融合大量品牌元素进行设计,如品牌主题色—紫色及各类产品,提炼出品牌富有活力和变化的创意形象。
▲植入“看台”打破了空间的平行格局,也形成更加新颖有趣的视角。
也借由“剧场”概念,原本开放式的场地被拆分设计为不同功能形态的盒子,包括公共交流中心、共享办公区、办公区及独立办公室、休闲区、材料展示区、储物间、茶水间及多义混合空间等。
▲公共交流中心,既是共享办公区,也是品牌展示中心,及开展企业内部会议、外部交流沙龙的活动中心。
▲区域内配置可移动家具,方便随时进行可容纳几十人的小型活动及分享沙龙。
▲办公区使用简洁的标准化产品,强化工作的专业感和高效氛围,盒子式设计在强化私密性的同时进一步传递出协同合作的精神。
▲休闲及材料展示区,将休闲与材料展示的功能密切结合起来。
▲休闲展示区毗邻专业办公区,有效平衡轻松与高效的工作氛围。
如何让人产生与空间交流对话的欲望?设计一方面以高活动性及多元化的区域塑造出多层空间形态,增强人与空间互动的欲望,而多变化的盒子窗口也成了有趣的取景框,把来访者的注意力聚焦在品牌产品展示和不同功能分区的剧目上。
▲小型会议室,引入港式“闸门”设计元素,如舞台幕布,创造有趣的空间对话感,亦在功能上有效平衡了私密与开放性。
“看台”将品牌主题墙置于视觉焦点,同时加入各类装置,提升“戏剧性”,也将舞台的表演性与产品展示性联系起来,强化了人与空间对话感。
▲使用品牌本身的产品做设计,空间也就成了一个巨大的展示舞台,品牌与室内空间高度融合为一体。
空间中设置多处展览装置,如井然有序的展示架、展示柜、荡板等,品牌墙纸及地板配合柔和温暖的照明效果,营造出一个和谐舒服的环境,也实现了产品展示的最大化。
▲材料陈列展示
▲
细节丰富的设计强化空间体验感与品质感。
整体设计,强调不同功能区独立、开放及混合多样使用的平衡,由此衍生出一个集办公、产品展览及互动交流的多义空间,以一种新型的空间互动方式来激发办公场所新价值。
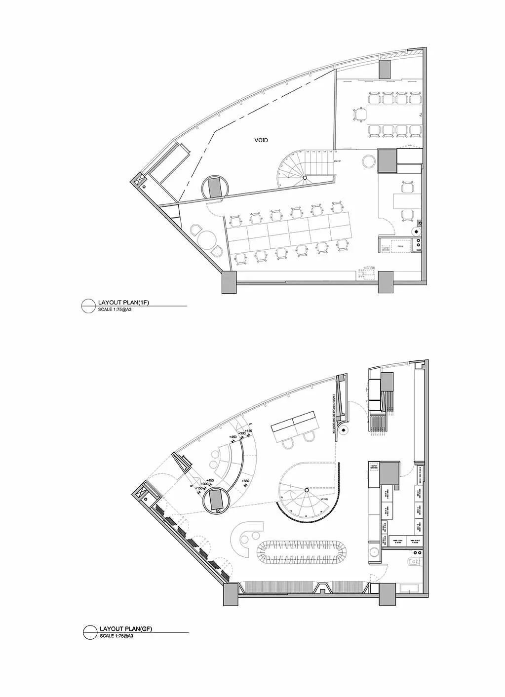
▲平面布置图,左侧留白处,设计团队正在为达明墙纸打造一个专业样板展厅,将沿用“达明·纸间画廊”的设计,预计今年下半年开放。
《达明·纸间画廊之旅》
▼
平面布置图
▼
Dufry是全球最大免税品零售商,在世界各地的机场、邮轮、海港、火车站和市区等旅游区域内运营免税商店,
设计团队
受邀为其设计最新的香港办公室。
设计概念
平原、丘陵、山地、高原、河流、海洋……形成了我们体验和观看世界的不同形态,从Dufry全球化运营的企业理念出发,设计试图将“世界”的理念植入这一办公空间,同时从其员工来自世界各地的多元文化背景出发,以兼容高效和自由轻松的氛围设计,打造全新的办公模式。
整体设计以“等高线”为概念,衍生出空间变化起伏的形态和曲线作为设计元素的视觉观感,结合牛仔布料特殊的纹理与触感,给人以年轻活力的感受。入口区域便设计了三个高度各不相同的会议室,细腻的肌理,高低错落的排序,配合特殊的牛仔布胶地板及细节,呼应了企业理念与设计主题。
在空间规划上,为倡导全新、高质量的工作生活方式,同时配合公司的经营理念,分别设置了独立育婴室,儿童区以及休闲放松区,满足员工不同的人性化需求,带来如在家般的舒适放松感。
天花用高低、大小不同的拱形营造山脉延绵起伏的开阔感,材质上运用牛仔布略带粗矿的纹理,并加上细致的边线,于开阔中又能体验到小细节。靛蓝色的地毯似流淌的海洋波浪,具有无比的运动感与活力。
休闲区被大胆设计成一个独特的牛仔布艺空间,从天花垂吊而下的牛仔布如同垂落的树枝,让人有如在“树荫之下”,三三两两慵懒的沙发,使人身心愉悦。
儿童区延续了“等高线”的设计,位于中间的不规则形“树屋”从天花造型延伸而下,与透明旋转滑梯相连,从安全考虑出发的细节设计,创造了一个让家长安心的儿童游乐空间。
项目还在进行中,欢迎大家继续关注后续。
办公空间占用了每天1/3甚至以上的时间,
于常规企业形象打造和工作效率提升之上,
是否也可以成为美学理念展演的生活新场所?
就着这个问题
设计团队
做了不少思考
打造的中国内地第一家新零售概念店——
达明·纸间画廊
空间自有其要讲述的故事,设计首先是对其原始诉求的命题拆解:
1.与品牌及其产品产生多样且持续性的关联;
2.结构比例,空间基本格局的规整与变化;
3.分区,办公功能与其他场所功能的分与合;
4.社交场域,开放与私密、静态与流动性的平衡。
▲通过有效分割,空间规划为包容多种功能的剧场盒子。
基于空间的多命题诉求,设计师引入“剧场”这一创作概念,将舞台式的空间置入办公场所。同时融合大量品牌元素进行设计,如品牌主题色—紫色及各类产品,提炼出品牌富有活力和变化的创意形象。
▲植入“看台”打破了空间的平行格局,也形成更加新颖有趣的视角。
也借由“剧场”概念,原本开放式的场地被拆分设计为不同功能形态的盒子,包括公共交流中心、共享办公区、办公区及独立办公室、休闲区、材料展示区、储物间、茶水间及多义混合空间等。
▲公共交流中心,既是共享办公区,也是品牌展示中心,及开展企业内部会议、外部交流沙龙的活动中心。
▲区域内配置可移动家具,方便随时进行可容纳几十人的小型活动及分享沙龙。
▲办公区使用简洁的标准化产品,强化工作的专业感和高效氛围,盒子式设计在强化私密性的同时进一步传递出协同合作的精神。
▲休闲及材料展示区,将休闲与材料展示的功能密切结合起来。
▲休闲展示区毗邻专业办公区,有效平衡轻松与高效的工作氛围。
如何让人产生与空间交流对话的欲望?设计一方面以高活动性及多元化的区域塑造出多层空间形态,增强人与空间互动的欲望,而多变化的盒子窗口也成了有趣的取景框,把来访者的注意力聚焦在品牌产品展示和不同功能分区的剧目上。
▲小型会议室,引入港式“闸门”设计元素,如舞台幕布,创造有趣的空间对话感,亦在功能上有效平衡了私密与开放性。
“看台”将品牌主题墙置于视觉焦点,同时加入各类装置,提升“戏剧性”,也将舞台的表演性与产品展示性联系起来,强化了人与空间对话感。
▲使用品牌本身的产品做设计,空间也就成了一个巨大的展示舞台,品牌与室内空间高度融合为一体。
空间中设置多处展览装置,如井然有序的展示架、展示柜、荡板等,品牌墙纸及地板配合柔和温暖的照明效果,营造出一个和谐舒服的环境,也实现了产品展示的最大化。
▲材料陈列展示
▲
细节丰富的设计强化空间体验感与品质感。
整体设计,强调不同功能区独立、开放及混合多样使用的平衡,由此衍生出一个集办公、产品展览及互动交流的多义空间,以一种新型的空间互动方式来激发办公场所新价值。
▲平面布置图,左侧留白处,设计团队正在为达明墙纸打造一个专业样板展厅,将沿用“达明·纸间画廊”的设计,预计今年下半年开放。
《达明·纸间画廊之旅》
▼
平面布置图
▼
Dufry是全球最大免税品零售商,在世界各地的机场、邮轮、海港、火车站和市区等旅游区域内运营免税商店,
设计团队
受邀为其设计最新的香港办公室。
设计概念
平原、丘陵、山地、高原、河流、海洋……形成了我们体验和观看世界的不同形态,从Dufry全球化运营的企业理念出发,设计试图将“世界”的理念植入这一办公空间,同时从其员工来自世界各地的多元文化背景出发,以兼容高效和自由轻松的氛围设计,打造全新的办公模式。
整体设计以“等高线”为概念,衍生出空间变化起伏的形态和曲线作为设计元素的视觉观感,结合牛仔布料特殊的纹理与触感,给人以年轻活力的感受。入口区域便设计了三个高度各不相同的会议室,细腻的肌理,高低错落的排序,配合特殊的牛仔布胶地板及细节,呼应了企业理念与设计主题。
在空间规划上,为倡导全新、高质量的工作生活方式,同时配合公司的经营理念,分别设置了独立育婴室,儿童区以及休闲放松区,满足员工不同的人性化需求,带来如在家般的舒适放松感。
天花用高低、大小不同的拱形营造山脉延绵起伏的开阔感,材质上运用牛仔布略带粗矿的纹理,并加上细致的边线,于开阔中又能体验到小细节。靛蓝色的地毯似流淌的海洋波浪,具有无比的运动感与活力。
休闲区被大胆设计成一个独特的牛仔布艺空间,从天花垂吊而下的牛仔布如同垂落的树枝,让人有如在“树荫之下”,三三两两慵懒的沙发,使人身心愉悦。
儿童区延续了“等高线”的设计,位于中间的不规则形“树屋”从天花造型延伸而下,与透明旋转滑梯相连,从安全考虑出发的细节设计,创造了一个让家长安心的儿童游乐空间。
项目还在进行中,欢迎大家继续关注后续。
客服
消息
收藏
下载
最近








































