查看完整案例

收藏

下载
山城之外,把喜乐装进大碗。扑面而来的抬头见喜。传统中式建筑和新式国朝的碰撞,分明的撞色。喜拉哈也是温州方言谐音:香辣蟹。以创意川菜为主题的小酒馆以新商业的模式,张灯结彩,不必拘谨,给喜庆重新定义。
传承创新
初入空间,入口即金钱符的拼花地面,迎接式的中式楼阁为前台的功能体营造氛围感。
初入空间,即有大喜,形成拍照打卡区。满屏中式元素,喜庆十足的红色醒目。戏曲元素,川式茶馆的竹椅,浓厚的市井味扑面而来。
可口可乐,抬头见喜。具有引导性的吊顶大字,不由会心一笑,挡不住喜庆的感染力。
场景情景化,功能体在传统建筑体内结合融合。于内,设有水吧烧烤台;于外,有收银迎宾。情景化山城之景,让人有身临其境之感。
皇上登基,仪式出恭。拾级而上,独立而私密,出恭如厕也惊喜。
光色调和
在自然光与灯光的密切调和中,空间中的热烈无限蔓延,斗拱设计巧妙形成灯光形式,给卡座带来浓厚的沉浸。
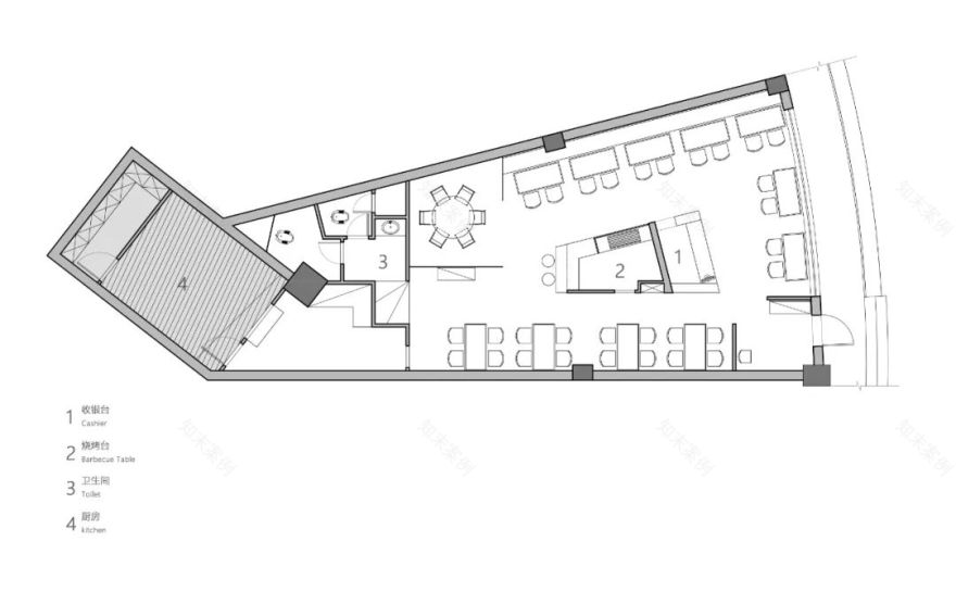
庭阁楼外,张灯结彩。空间因楼阁而生成两侧客区,可游,且保有尺度。灯笼,算盘,折扇,甚至是麻将,有趣的国潮把创意川菜,也是勒是雾都精神淋漓尽致,生活即当下。@平面图
- 项目信息 -
项目名称 / 喜辣哈 XILAHA
项目地址 / 浙江·温州
项目面积 / 160㎡
设计公司 / NinePick Design 杦拾设计
主案设计 / 陈王思
设计团队 / 方传达 孔鹏超 金震科 代力
设计时间 / 2022 年 1 月
完工时间 / 2022 年 3 月
项目摄影 / 陈豪
灯光照明 / 良遇照明
杦拾设计 NINE PICK DESIGN
室内 | 视觉 | 软装 | 造物 | 灯光
Phone:18768167269 陈
? 浙江省温州市鹿城区南塘新天地一号楼 324
Six unit 324, Nan Tang Xin Tian Di, Lucheng District, Wenzhou, Zhejiang
客服
消息
收藏
下载
最近






















