查看完整案例

收藏

下载
中粮龙溪·悦墅
COFCO BRILLIANT VILLA
海南,三亚
Sanya
, Hainan
纳天下第一湾之菁华于怀,
靠山面海溪水环绕;
齐聚天地八方优渥,
雄踞上风上水之处。
01
悦享亚龙湾
ENJOY YALONG BAY
中粮•龙溪悦墅位于亚龙湾国家旅游度假区内,中国唯一亚热带风情国家5A旅游度假区,8公里海岸环抱一湾清泓。
白沙恋恋,12米海水能见度,水质清冽,鱼翔浅底戏珊瑚;
雨林木风,溪地鹭鸣,蝶谷幽香。
COFCO BRILLIANT VILLA is located in the Yalong Bay National Tourism and Holiday Zone, China's only subtropical style country 5A tourism resort, with a coast of 8 kilometers surrounding Qinghong.
12 meters of seawater visibility, clear water quality.
▼图片来自网络 From The Internet
坐拥1389亩红树林湿地公园,同时清溪过境,活水入园,山、海、林、溪、Golf, 360度极境美墅。
Sitting on 1389 acres ofmangrove wetland park, at the same time crossing the stream, living water into the park, Mountain, sea, forest, stream, golf, 360-degree extreme beauty villa.
▼区位交通 Location Traffic
中粮亚龙湾·龙溪悦墅在总体规划及建筑布局方面强调构架的清晰及完整性,同时注重度假中心的品质及可持续性发展的要求,以度假区的生活尺度为基本单元解构各功能块,力争实现品质与能效的双赢。
COFCO BRILLIANT VILLA emphasized the clarity and integrity of the architecture in terms of overall planning andarchitectural lay out. At the same time, it focused on the quality of the resortand the requirements of sustainable development. It deconstructed the functional blocks based on the living standard of the resort. Strive to achievea win-win situation of quality and energy efficiency.
通过空间的层层递进,景观的逐级展开,为人们展现一个融富丽奢华与自然生态于一身的“现代化国际度假中心”。
Through the progressiveadvancement of space, the landscape unfolds step by step, showing people a"modern international resort center" with rich luxury and naturalecology.
▼规划结构 Planning structure
项目按照 “一核心四组团” 的规划理念设计,产品布局以会展中心为核心,以极具艺术气息造型,镶嵌在亚龙湾核心。
通过水系和路网划分四个相互独立又互为整体的组团,既聚合了项目又有效分割各个部分。
The project is designed inaccordance with the "one core, four groups" planning concept. The product layout is centered on the exhibition center, with an artistic style, and is embedded in the core of Yalong Bay.
外部以红树林湿地公园、高尔夫果岭社区水系为导向,合理地组织起社区内外的景观资源。
The exterior is guided by the mangrove wetland park and the community system of the Golf community, which rationally organizes the landscape resources inside andoutside the community.
▼鸟瞰图 Aerial view
独栋别墅组团,尽揽高尔夫,红树林等景观资源,花园洋房组团,紧邻红树林湿地公园,天赋极境,会展酒店组团与国际会议中心共同形成沿街展示面,彰显旷世风华。
The single-family villa group takes full advantage of the golf, mangroves and other landscaperesources. The garden house group is located next to the mangrove wetland park. The exhibition hotel group and the international conference center jointly form a display along the street, showing the magnificence of the world.
02
亚龙湾会议中心
CONFERENCE CENTRE
中粮亚龙湾会议中心作为地块以及整个亚龙湾的标志性建筑,是国家及世界各国政府首脑在南中国度假,以及开展经贸会展活动的亚龙湾唯一指定会址。
COFCO Yalong Bay ConferenceCenter, as the landmark and the entire Yalong Bay landmark, is the only designated meeting place of Yalong Bay for the heads of state and government of the world to vacation in South China and conduct economic and trade exhibitions.
▼会议中心实景
Photos
中粮亚龙湾会议中心总建筑面积1.8万㎡,分为4个建筑体,分别为大堂、展示中心、会议中心和餐厅,功能包含多功能厅、展厅、小会议室、餐厅及咖啡厅等。
The total construction areaof COFCO Yalong Bay Conference Center is 18,000 m2, which is divided into 4 scattered buildings, namely the lobby, exhibition center, conference center andrestaurant, including multi-purpose hall, exhibition hall, careful meeting room, restaurant and cafe, etc .
户外公共连廊有机连接各功能,创造与城市会展不一样的开放式的休闲度假会展模式,具备首脑经贸会议、庆典、宴会、演出和展览功能。
It is organically connected by the outdoor public gallery, creating an open leisure vacation exhibition mode that is different from the city convention and exhibition.
▼会议中心功能分析 Functional Analysis
▼会议中心实景 Photos
中粮亚龙湾会议中心,建筑立面设计亦融合现代中式红色实体元素,配以大片金属黄色竖向百叶分隔,充分体现中国文化元素与东方园林中水景交融的“禅”式韵味,步移景异,营造出了现代度假“新中式”会展的地标性建筑特色。
The design of COFCO YalongBay Conference Center also incorporates modern Chinese-style red solidelements, with large metal yellow vertical louvers to separate it, fully reflecting the "Zen" style of Chinese cultural elements blending with the waterscape in oriental gardens.
▼会议中心立面图
Elevation
03
独栋别墅
VILLAS
▼别墅手绘
Hand drawing
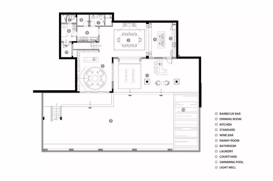
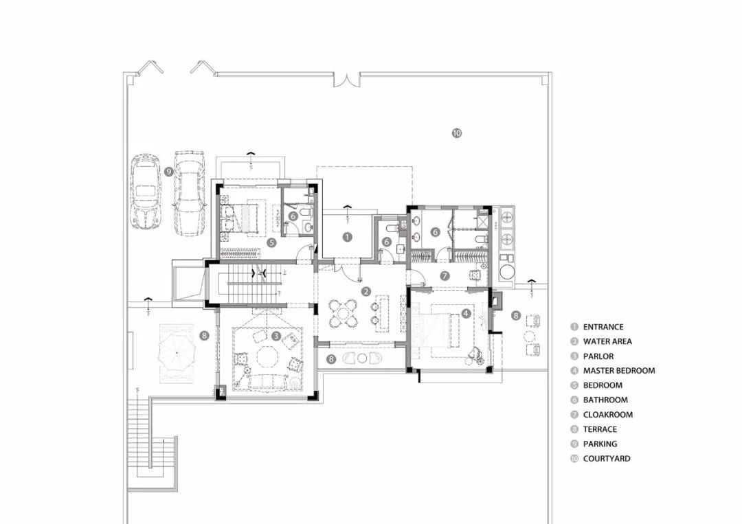
▼240㎡别墅负一层平面图 Basement
Floor
Plan
▼240㎡别墅一层平面图 First Floor
Plan
▼240㎡别墅二层平面图 Second
Floor
Plan
独栋别墅建筑采用相对紧凑的布局,保证庭院空间最大化,实现户户有泳池。所有户型均采用开敞地下室、利用前后高差形成双庭院的布置形式;地上通过设置敞厅、敞廊、开敞楼梯间、露台等形式,增加实际使用面积,提高产品的附加值。
The single villa building adopts a relatively compact layout to ensure that the courtyard space is maximized.
▼别墅实景
Villas
独栋别墅建筑立面风格选择“现代主义”风格,既吸收传统建筑工艺之精华,又敢于革新。
外立面线条流畅,木材和石材的对比运用,富有层次感,色彩典雅内敛,张弛有力的外立面设计愈加凸显了建筑的空间尺度。
The style of thefaçade of the single-family villa adopts the "modernist" style, which not only absorbs the essence of traditional building technology, but also daresto innovate.
外立面铺贴有高级石材, 石材天然质感的颜色与肌理,经典恒久,别有韵味。
The facade is paved with high-grade stone. The color and texture of the natural texture of the stone are classic and timeless.
▼别墅实景
Villas
04
会展酒店
CONFERENCE HOTEL
会展酒店采取内走廊的布局形式,户型紧凑,公摊小,实用率高。
客房朝向以景观资源最大化为原则,户型南北通透,具有良好的通风与采光性,平面空间方正实用,平面布局合理高效,空间层次丰富多样。
The convention andexhibition hotel adopts the layout of the inner corridor. The units arecompact, the booths are small, and the utility rate is high.
设计同时注重不同空间之间的视觉联络,通过室内外空间的分隔、隔断、融合、渗透创造丰富的空间层次感。
At the same time, we pay attention to the visual connection between different spaces, and create a rich sense of space through the separation, partition, fusion and penetration of indoor and outdoor spaces.
▼
会展酒店
实景
Photo
景观将延续会展中心高端、精品的景观风格,将文化与艺术融于景观设计中。
层次丰富
的中心叠水,精心打造的特色水景墙与文化广场,共同营造出高端的社区景观。
The landscape will continue the high-quality landscape style of the Convention andExhibition Center, and integrate culture and art into landscape design.
▼会展酒店实景
Photo
s
05
花园洋房
GARDEN HOUSE
▼花园洋房手绘
Hand drawing
花园洋房位于项目西地块,采取独立组团形式,采取山墙拼接的1T2建筑布局,户型之间干扰小,品质高。
The garden house islocated in the western part of the project. It takes the form of independent group and adopts the 1T2 building layout of gable splicing.
以合理的空间尺度保持居住的品质感、亲切感和安全感,起居室、主卧室等重要空间局部放大,彰显尊贵特质。
To maintain a sense of quality, intimacy, and security of living on a reasonable spatial scale, important spaces such as the living room and master bedroom should be partially enlarged to show noble qualities.
▼花园洋房实景
Photo
充分利用景观资源,每个户型都设计丰富、多层次、多角度的休闲观景平台,营造出轻松活泼的休闲度假气氛;
Make full use of landscape resources, each apartment is designed with a rich, multi-level,multi-angle leisure viewing platform to create a relaxed and lively leisure holiday atmosphere;
同时集中花园设计,大小不同的前后花园,花园之间通过室外楼梯互相相连,空间上互相渗透、交错、借鉴。
At the same time, focus on the design of the garden, the front and rear gardens of differentsizes, and the gardens are connected to each other through outdoor staircases.
▼花园洋房
实景
Photo
s
窗边鸟鸣,门前绿荫,绿野果岭,快意挥洒,水草丰茂,野趣生活,中粮龙溪·悦墅,璀璨地绽放在中国南部第一湾上。
Birds singing by the window, green in front of the door, wild life, cofco brilliant villa is blooming on the first bay in southernChina.
项目获奖 Awards
2015 地产设计大奖·中国 住宅项目优秀奖
2015
CRED
A
ward
For Residential
2016 年度美国金砖奖优胜奖
2016 American Gold Nugget Merit Award
2016年第十一届金盘奖华南赛区最别墅
2016 Kinpan Awards
Best Villa in South China
2016年度国际空间设计大奖最佳公共建筑
International Space Design Award Idea-Tops 2016 Public Architecture Design
项目信息:
业主名称:大悦城控股
项目地点:中国·三亚 亚龙湾
建筑面积:116,000 ㎡
设计/建成时间:2011 / 2015
建筑设计:深圳市骏地建筑设计有限公司
PIC:胡劲松
项目总监:张嵘
设计主创:陈卫伟
设计团队: 张强、顾铮、杨斌、冼琳、胡超
Project Information:
Owner Name: GRANDJOY
Project Location: Yalong Bay Sanya, China
Building Area: 116,000 ㎡
Design / Built Year:2011 / 2015
Architecture Design: Shenzhen JUND Architects Co.,Ltd.
PIC: Jason Hu
Project Director: Robin Zhang
Designer: William Chen
Team Members: Strong Zhang, Gu Zheng, Allen Yang , Cindy Xian, Joe Hu
精彩继续
▽
[
JUND ]
关于骏地设计
骏地设计于1997年进入中国市场,并于2005年正式在上海注册成立公司,2017年正式更名为上海骏地建筑设计事务所股份有限公司。目前,公司在北京、深圳、重庆、合肥、福州设立分支机构,拥有来自亚洲、北美洲、欧洲、澳洲等多个国家及地区的国际化注册建筑师团队。
品牌/Brand
商务/Business
招聘/Join Us
客服
消息
收藏
下载
最近









































