查看完整案例

收藏

下载
“窗外的风景,决定房子的价值”
01 江城重庆
River city ChongQing
山环水绕、江峡相拥的重庆,既是山城,又是江城。在这里,长江、嘉陵江穿城而过。嘉陵江重庆段古称渝水,重庆简称“渝”就来源于此,所以重庆人又把嘉陵江称为“母亲河”。
图片来自网络。位于嘉陵江畔的磁器口古镇是当地旅游地标之一,古镇原名龙隐镇,始建于宋代。“白日里千人拱手,入夜后万盏明灯”形容的就是这里的景象:傍晚时分,夕阳西斜,熙熙攘攘的游人,徜徉在嘉陵江畔的滨江步道上;夜幕降临,古镇灯饰流光溢彩,热闹非凡。
图片来自网络
02 看得见江景的房间
A Room with View
100 年前,由作家爱德华·摩根·福斯特,用传世著作《看得见风景的房间》,完美阐释了一条至今被人人称道的价值真理:窗外的风景,决定房子的价值。也曾有地产人说过:“房子的价值,不仅体现在室内,更要推开窗户看窗外。”
重庆中粮天悦壹号位于嘉陵江畔,与千年古镇磁器口隔江相望,江边自然风光尽收眼底,不仅收揽了靠水而居的情怀,也脱离了闹市的嘈杂。日暮向晚,经历疲惫一天的工作,回到家中坐在此处,目光望向远方,有远处青黛色的山峦云雾,也有磁器口的点点霓虹。伴随着由远及近的江船声,还有若有似无的江风簌簌声。时间仿佛在此刻静止......
134㎡ | 倚江而居
从入户进入这个家,暖棕色为主调,白色大理石与木纹多材质混搭,利落的线条打造简约的现代风格,透过落地玻璃为室内引入自然光线和绝佳的江景。5.6m 长的露台上设有小花园、沙发区、水景,视野开阔,坐拥绝美江景。
请横屏观看
空间内木质的温暖,带来一种低调的宁静感,沉稳内敛,饰品和灯具为空间注入艺术的氛围。
在开放式空间设计中,客厅与餐厅既保持互通,又体现出每个空间的独立性。餐厅墙面的装饰画来自韩国艺术家 Mimi Jung,运用渐变和半透明的形式,展示一种动态的静止,点亮了公共空间的色彩,提升空间的格调。
花艺与烛台突出空间感及大理石餐桌的纹理和品质感,晶莹的高脚杯和富有设计感的金属吊灯展现出轻奢有格调的空间氛围。
主卧以套房的形式,配备睡眠区、衣帽间、卫生间功能空间。将自然采光与室内光线完美结合,实现功能与形式的完美统一,极大的提高了居住者的舒适度。
次卧储物柜选用茶色玻璃材料,床头灯为卧室增添了氛围感。
灰色作为男孩房的主题色,钢铁侠挂画满足了男孩强烈的动漫英雄情结,将小男孩喜爱的玩具作为装饰,提升空间的活力。
170㎡ | 江畔日落台 ___ __________________ "
走进屋内,整体为新中式的设计风格,开放式的设计布局,将家里打造成明亮舒适的空间。站在长 9.4m 大露台上就像站在甲板上,吹着江风一扫整天的疲惫,看着日落夕阳,回忆过往种种,把所有的不快和思绪都交给风和即将到来的夜幕,享受一天里最后的安宁。
请横屏观看
客厅中,以定制米灰色系为主色调,大大的落地窗为室内引入自然光线。浅木色与细腻的纹理带来温暖而高级的空间质感,以儒释道文化的相互融合,一方书桌辟出一方天地。把兴趣融入自己的精神世界,在宁静中享受自己的一片绿洲。
餐厅与客厅位于同一空间,开放式的设计,通透舒适,深木色与米白色相对比,展现出低奢有格调的氛围,极具设计感的金属吊灯展现出极简主义的空间美学。
主卧一侧临窗,拉开窗帘便能感受清晨的第一缕阳光;另一侧空间用于喝茶看书,娴静美好。设计巧妙的布局、相互融合的色调、自然投射的光线等,创造好的氛围感,使我们的身心都可以沉浸其中。
与主卧相临的是收纳整齐的衣帽间,内含小巧典雅的梳妆台,空间利用充分。主卫大面积的镜子给人更加宽阔明亮的视觉感受,带有纹理的洗手台搭配黄铜材质的边框,干湿分离的合理设计,结合了当代人对家的空间使用需求。
次卧依旧延续优雅的设计风格,床头的台灯犹如一组有趣的艺术组合,和谐统一的配色营造了温馨舒适的空间氛围。
女孩房设计不论是挂画、饰品还是床上用品都充满着趣味性。将梦幻的粉色、柔软的布艺,一起装入孩童的成长空间。
项目信息
ABOUT THEPROJECT
项目名称:重庆中粮天悦壹号
项目地址:重庆
室内面积:134㎡/170㎡
室内设计:KLID 达观国际建筑设计事务所
软装陈设:KLID 达观国际建筑设计事务所
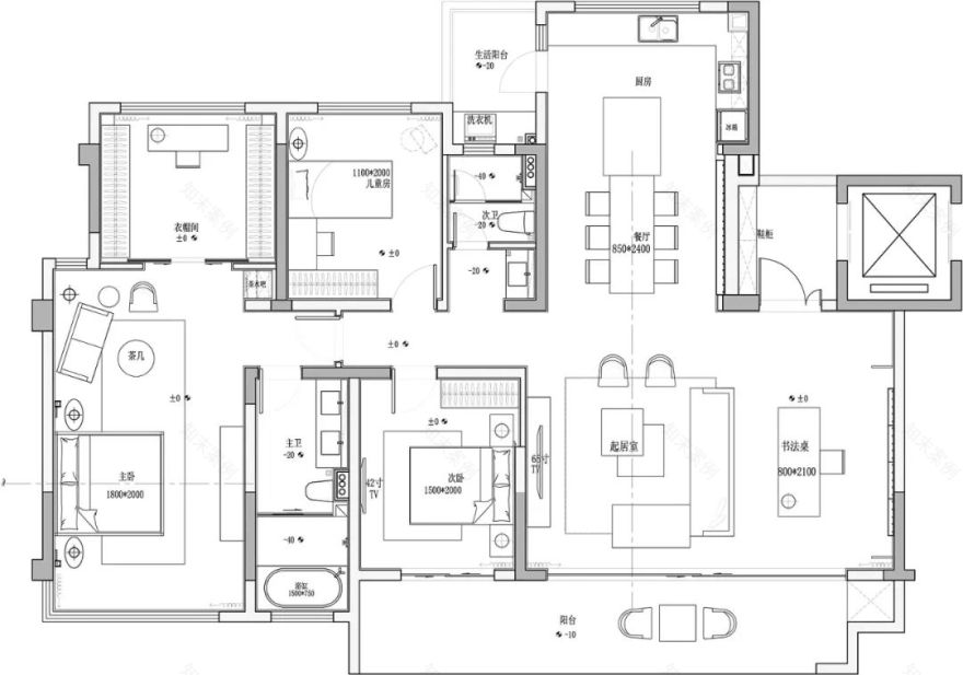
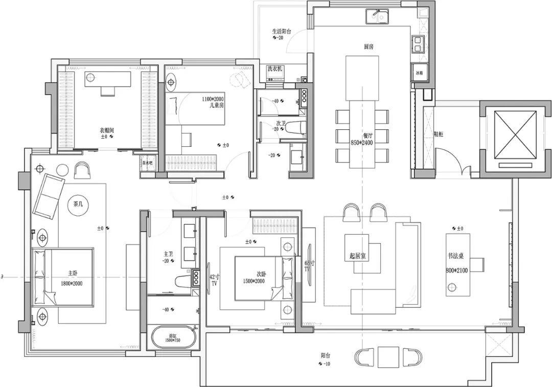
平面图
DESIGN PLAN
134 户型平面图
170 户型平面图
KLID 達觀國際建築設計事務所来自台北,深耕上海,至今已经走过了第 21 个年头,长期服务于全国前 100 强房地产开发商,业务范围涉及售楼处、会所、艺术馆中心、酒店、豪宅别墅及大平层样板房、办公室、公共与商业空间等领域。KLID, an international architectural design firm from Taipei,has been in Shanghai for 20 years, and has been servingtop 100 real estate developers for a long time. Its business covers sales offices, clubs, art galleries, hotels, luxury villas and flat apartments, offices, public and commercial spaces.
達觀作为一家国内极少数能够承接「建筑设计」「室内设计」「软装设计与软装工程」「景观方案」四位一体设计的事务所,秉承「达者为新,观之有道」的设计理念,对设计作品的呈现有着强烈的追求,并一直保持建筑、景观、室内由凌子達总监亲自主创,艺术与软装陈设设计由杨家瑀总监亲自主创,一体化完整呈现设计方案,实际落地众多一线城市标志性项目。
As one of the few designinstitutes in China which can providefour-in-one integrated design services including architectural design, interior design, renovation design and construction, landscape design, KLID has been adhering to the design concept of "Innovation from Observation", and has strong pursuitfor the design works display effect, KLID has been always maintaining a full-integrated design solution in which Mr. Kris Lin designs the architecture, landscape, interior and Ms Anda Yang designs arts and renovation. KLID hasdesigned many landmark projects in the first-tier cities.
達觀摒弃商业运作模式中的利益化,专注做设计,匠心、原创,求真务实、坚定不移的用作品说话。“以达者为新,观之有道”以豁达的胸襟看世界,以开阔的视野带来新的创意与想法。每个達觀人恪守以此为宗旨,创造出更多有创意的作品,下一个作品会更好。
KLID has been focusing on design, ingenuity, originality while abandoning the traditional interest-oriented business model. It emphasizes on pragmatism and firmly believes in that good design works bring good word of mouth. "Renovation comes from unique observation". We should open our eyes to the world and observe new ideas to expand our vision. Every KLIDer adheres to this philosophy and designs out more creative works, and we believe the next design work will be better.
凌子達 Kris Lin
KLID
達觀國際建築設計事務所 创始人兼设计总监
Kris Lin International Design Founder/Design Director
//
截至 2020 年 12 月累计荣获全球奖项 1010 项
杨家瑀 Anda Yang
KLID 達觀國際建築設計事務所 创始人兼软装设计总监 Kris Lin International Design Founder/Director Of Soft Design
地址:上海市闵行区伊犁南路 111 号钱江商务广场 13F
Add:13F,QianjiangBusinessPlaza,111YiliSouthRoad,MinhangDistrict,Shanghai
总机 Reception
商务 Marketing
人事 HumanResources
版权声明 CopyrightNotice
均归 KLID 達觀國際建築設計事務所所有。
客服
消息
收藏
下载
最近

































































