查看完整案例


收藏

下载
来自北欧的设计,总是多多少少流淌着极简主义的血液。而北欧由于其漫长寒冬的季节,使得他们热衷的设计并不是限于由,黑、白、灰组成的极致简约,而是在线条和通透空间中,增设暖色调,带来温馨与鲜活。正如今天由JAC设计工作室带来的这套案例,便是对北欧风的一次重新诠释。
哥本哈根,人们印象中的童话之城,不但拥有深厚的历史底蕴,也在现代城市的浪潮中,占据着领先的席位,来自丹麦的室内设计不乏全球各地的追崇者和模仿者。两三笔线条,几抹色彩,便能支撑起一整个空间的精气神,看似简单的轮廓,实则有着丰富的细节。
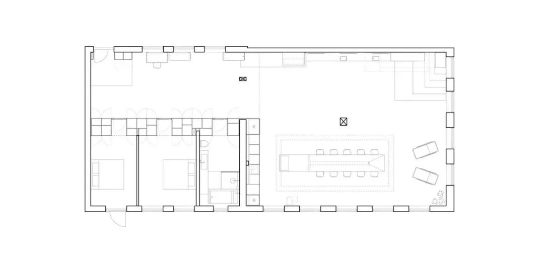
位于丹麦哥本哈根的 Islandsbrygge街区,一幢前工厂大楼内的 200平米公寓,有了全新的改观。这被称为“引人注目”的项目是由JAC设计工作室进行的整体操刀规划。
一边,设计师尊重历史,不仅尽力保留了原始建筑的特征,而且定制、修复了建筑内部的装饰物件。另一边,重新设计的部分,则是创意十足。我们可以显而易见地发现内部由一系列漂浮的平台和表层所穿插,使得朴实无华的平层增加了轻盈感和生命力。
设计师为了打造一个明朗开放的内部空间,撤销了层次和封闭的遮挡,包括起居室、厨房和餐厅都被打通了,家具则被用来创建各种区域的功能属性,并且同时代替了隔墙功能,这真是一个大胆的操作。
这个空间最大的亮点就是那条悬挂于墙面的楼梯,它由简洁的线条勾勒而出,是轻钢制成的,给空间一种悬浮的灵动感,同时呼应着整体上简洁、明快的风格。
JAC Studios 的设计师介绍说:“室内的高处和平地为主人提供了双重功能,并且设计师尤其注重细节和材料之间的连通性。”
在用餐区,一张4.5m长的悬臂桌尤其引人注目,桌子似乎漂浮在厨房和客厅之间,为聚会、社交和制作食材提供了多功能的需求。
另一部分的空间特色,则是一米深的内部分隔橱柜形成了一条通往两间卧室的入口,代替了传统的门廊。它既可以固定又可以活动,既有储物功能又构成了空间动线。 另外,JAC Studios设计师通过使用反射性材料(例如抛光的白色水磨石和琉璃瓦)来增强整个公寓的光线,又在整体上增强了室内的明亮度。
项目地点:
丹麦 哥本哈根
项目类型:
公寓
设计:
JAC Studios
摄影:
Karina Tengberg
关注 共合学设 订阅号
了解更多课程讯息
客服
消息
收藏
下载
最近












