查看完整案例

收藏

下载
△
The signature double-height transparent storefront
标志性的透明跃层店面
Founded in 2014, NIO is an innovative electric automotive company focusing on high-performance products. It is also committed to the vision of a global user community by establishing "NIO House" around the world. After identifying a design benchmark with bigger flagships, the brand is ready to set foot in all cities. Lukstudio has been commissioned to create the first NIO House in Nanchang.
成立于 2014 年的 NIO 蔚来是一家全球化的智能电动汽车品牌,它不仅专注于提供高性能的汽车产品,还在全球各地打造“牛屋(NIO House)”,以期建立起活跃的用户社群。
在总结完开设大体量旗舰店的经验后,品牌定下新的设计标准并应用于各城市新店的设计中。在此背景下,芝作室受邀为其打造位于南昌的首间“牛屋”。
△
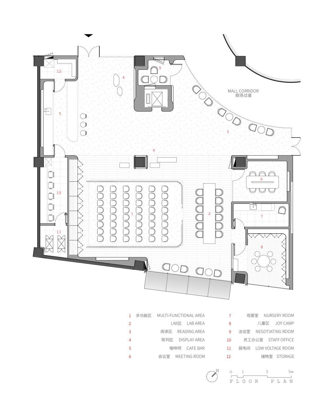
1F plan 一层平面图
The site is at a shopping mall with a 2-storey storefront. An open gallery approach is key to the first floor display area with two entrances.
南昌“牛屋”位于一家购物中心临街的跃层空间,芝作室因地制宜用开放式画廊的手法打造一楼展厅,南北皆有入口。
△
an open entrance to the mall
开放式入口设计
△ the mirrored ceiling extends the space visually
镜面吊顶从视觉上延伸空间
△the streamlined elevator hall entrance 流线处理的电梯厅入口
△
minimalist elevator hall 极简设计的电梯厅
Given the white terrazzo wall and floor, mirror stainless steel ceiling are the standard materiality, our effort is in streamlining all sharp corners and adoptingdiffused light details, giving the overall high-tech ambience a softer touch.
白色水磨石墙地面和镜面不锈钢吊顶为规定用材,设计团队努力消弭其锐角和增加漫射光,为空间整体的高科技氛围增添几分柔和。
△
2F plan-living room mode 二层平面图-客厅模式
△
2F plan-lecture mode 二层平面图-讲座模式
△
axonometric diagram 轴测图
△entrance to the owner zone on the second floor 二层会员客厅入口
△
a clear view of the different zones
弧形橱窗清晰地展示内部各分区
△ NIO café under the wavy ceiling
在波浪吊顶下的纯白 NIO 咖啡吧
△ the “polished” gallery
如同被流水打磨过的展示区
△detail of the arched ceiling
拱顶细节
Taking the elevator onto the second floor, one would arrive at another white gallery, but this time with a continuous arched ceiling. Inspired by water waves, the distinctive feature pays tribute to the water town identity of Nanchang and brings a lightness to the space. Under the rhythmic undulation, terrazzo cafe counter, display wall niches and booths are all shaped with streamline details, as if a stonescape polished by flowing water.
搭乘电梯抵达二楼,同样的白色“画廊”空间在此换上了连续的拱顶。拱顶设计以水波为灵感,借以体现南昌的水城特色,同时塑造空间的轻盈感。在律动的拱顶之下,水磨石材质的咖啡吧台、展示壁龛和独立展台也为流线形设计,仿佛水流冲刷而成的景观石,从细节上进一步延伸水的概念。
△
a view of the multi-functional space
多功能厅全景
△ the warm wooden living room filled with daylight
木材在阳光下围合出一个温暖的空间
△a shared space of relaxing atmosphere 令人放松的共享空间
△various forms of display for flexibility
多种展示形式配合不同产品
Contrasting to the austere white gallery, the adjacent multi-functional space finished in oak wood looks extra cozy.
与简约质朴的白色“画廊”形成鲜明对比的是相邻的多功能厅,这个由橡木围合而成的空间更显温暖与舒适。
△
behind the LAB table, a white box embodies the nursery and Joy Camp
LAB 区长桌后边的白色“盒子”里藏着母婴室和儿童游乐区
△
Joy Camp - a colourful kids’ playroom covered with soft surfaces
Joy Camp
-色彩缤纷的儿童游乐室,墙面覆盖着安全的软包吸音板
△ the meeting room is located next to the quiet nursery
会议室的吸音设计使与之相邻的母婴室能保持安静。
A meeting room, a nursery and a children’s playroom are located along the east wall, while the west cabinet stores all the stools and curtains necessary for converting the “living room” into a conference space.
多功能厅东侧依次分布着会议室、母婴室和儿童游乐区,西侧入墙橱柜则藏着可以将“客厅”转变为讲座空间的活动坐墩和隔帘。
△ a communal table at the LAB area could accommodate different gatherings
LAB 长桌区满足不同的集会需求
△
a social hub for the car owners
车主可以在这片区域开展休闲、社交、会议等活动。
△ subtle curves create a sense of weightlessness©LUKSTUDIO
微妙的曲线设计营造出轻盈感©LUKSTUDIO 芝作室
△
a power rail for removable sockets integrated under table top©LUKSTUDIO
桌面下方设计的电力轨道可加载移动插座©LUKSTUDIO 芝作室
△
the "floating" table “漂浮”的长桌
Apart from modular sofas and lounge seats, the open space also comes with a 5m-long communal table equipped for many types of gathering. Integrating subtle curves in its structure, the bespoke table appears to have its top lifted from the sides, conveying a weightlessness and echoing the water current theme.
除了沙发组合和休闲椅,多功能厅中央的开放区域还配备有一张 5 米的共享长桌,以满足不同的集会需求。长桌由芝作室设计定制,设计师在结构中融入了微妙的曲线,使桌面“漂浮”起来,呼应流水的设计主题。
△
an open living room 开放的客厅空间
△ a private lecture space 私密的讲座空间
△
steps of transformation 场景更换步骤
In the Nanchang NIO House project, Lukstudio takes on a challenge to optimize a predefined framework and comes up with ideas connecting to its site context. Our focus on humanscale experience and attention to details reinforce NIO brand’s user-centric vision. The resulting “living room” is a service hub where potential and existing car owners come together and build a progressive community of the future.
在南昌 NIO House 项目中,设计团队用呼应场地环境的设计思路,完成了在规定框架内找出最优解的挑战。芝作室对人性化体验和空间细节的注重,也强化了 NIO 蔚来品牌以用户为核心的愿景。由此而生的“会客厅”将作为服务站,聚集新旧车主,共同打造一个未来的先进社区。
Project Information
项目信息
Location
项目地址
|
World Trade Plaza, 1706 Honggu Middle Avenue, Honggutan, Donghu District, Nanchang City, Jiangxi Province
江西省南昌市东湖区红谷滩红谷中大道 1706 号世茂广场
Net Area
室内面积
|
470㎡
470 平方米
Interior Design
室内设计
|
LUKSTUDIO
LUKSTUDIO 芝作室
Director
设计总监
|
Christina Luk
陆颖芝
Design Team
设计团队
|
Yicheng Zhang, Haixin Wang, Min Dai
张一诚、王海鑫、戴敏
Scope
设计内容
|
facade, interior, millwork, furniture and soft decoration design
外立面改造、室内、展示道具、家具及软装设计
Key Materiality
主要材料
|
terrazzo, ceramic tile, chrome stainless steel, oak wood floor, oak veneer, enamel paint, fabric acoustic panels, carpet, artificial stone
水磨石、仿水磨石地砖、镜面不锈钢、橡木地板、橡木贴皮、橡木纹转印铝板、瓷漆、软包吸音板、地毯、人造石
Design Period
设计时间
|
2021.04-2021.07
2021.04-2021.07
Construction Period
施工时间
|
2021.07-2021.10
2021.07-2021.10
Lighting
Consultant
灯光顾问
|
SHUMUNG lighting design
杭州束芒照明设计有限公司
General Contractor
施工团队
|
TOPIN
上海境季建筑装饰工程有限公司
Furniture Products
家具产品
|
BENTU, GRADO, HAY, JOYSLIVING, MAGIS, TIWU, ZAOZUO
本土创造、格度、HAY、界意、MAGIS、体物、造作
Photography
摄影
|
Wen Studio
Wen Studio
客服
消息
收藏
下载
最近































