查看完整案例

收藏

下载
项目背景
Background
朴念 SPA 位于南京市城南老门东街区,历史上的老城南是南京商业和居住最发达的地区之一。如今按照传统样式复建传统中式建筑,集中展示传统文化,再现老城南原貌。整个街区是以砖、石、木这些自然质朴的材料建造的,这跟朴念的品牌理念在一些层面上不谋而合。我们的身体被服侍与美化的过程,也是心灵与精神被净化的过程。我们想为顾客策划一场自然、朴素、诗意般的身心之旅。
▼项目外观
两个中庭
Two atriums
四月底第一次去现场勘测的时候,我便对二层坡屋顶的空间与尺度所带来的场所氛围印象非常深刻。我想保留甚至无限放大这种场所精神。最终在空间组织上我们将二层的功能围绕内部中庭顺次展开的序列而布置。四周被分解的空间单元通过中庭又被统一起来。空间内其余的承重柱通过新建的墙体被隐匿,只保留了中庭内部的唯一柱体,并将它已混凝土原始肌理状态存在于空间内部,从视觉上带来的直观感受是它以自身强大的力量撑起了整个坡屋顶。
▼原始二层坡屋顶
▼二层中庭
▼裸露的混凝土结构柱
▼从中庭看向楼梯
利用回收的旧木料垂直错落置于中庭,向心而上的混凝土结构柱和木柱将空间抽象化。抽象化的中庭无限放大了场所氛围和精神。
▼错落有致的木柱
一层的入口我们通过置入一个四面开口的盒子作为中转过渡空间,因此,又形成了一个中庭。中庭的顶部我们刻意向下弯曲成拱形,形成包裹感,同时增加入户的序列和仪式感。
▼从入口看向室内
▼一层中庭
分割与连结 Divisions and connections
对于美容 SPA 空间来说,为了满足商业需求,需要在有限的空间内分割出若干个满足私密性的小空间用于 SPA 服务。但是为了让空间能获得更多的流动感和视觉上的延展,我们的策略是将房间的拱形门洞上方作镂空处理,这样既能确保内部的隐私又能和外部空间连结。
▼从中庭看向休闲区
▼从过道看向房间
入户中庭通过四面打开的盒体,巧妙地形成了轴线和交叉轴线,制造了中庭景观,也丰富灵活了动线。透过洞口视野层层递进,虚实相生。这种既分隔又连续的意象,让空间同时兼顾隐私性和开放性。
▼透过门洞看向产品展示区
▼透过门洞看向休闲区
▼休闲区
依托空间中原始的承重柱体将之转化为厚实的墙体。墙体上的大大小小的开口,激发了我们的好奇心与想象力去一探究竟。相较于薄墙,厚重的墙体上开口容易从侧面反射光线,在光线进入室内时予以雕塑化。
▼从休闲区看向中庭
▼从休闲区看向楼梯间
▼从中庭看向休闲区
▼圆形洞口
面对街区的一侧,我们将原始门扇限定在 90 度角度呈打开状态,让外部的环境也能尽收眼底,模糊内外的边界,让空间更彰显包容,与外部街区同时发生暧昧的关系。
▼从过道看向街区
材料与肌理 Materials and textures
整个街区的建筑表皮都是青砖灰瓦,为了室内部分和建筑更为融合亲近,我们选择利用青砖来铺设室内地面。环境,建筑,人三者在室内空间里相呼应,光线穿透花格窗与粗糙的肌理相撞,留下斑驳的光影,让质朴的空间更加宁静且富有诗意。
▼斑驳的青砖地面
▼光影形成丰富的层次
▼休闲区
▼材质的碰撞
墙顶的界面处理上我们选择了一款饱和度相对低的脏粉色肌理涂料,由现场工人刻意批刮出一种随性自由的视觉效果,给人以一种放松的状态。
▼窗景
▼二层休闲区看向楼梯间
施工过程中拆除下来的门板我们将它们做成了茶几的面板,对于旧事物再利用的态度也决定了我们设计改造的处理方式。将回收的木梁以及老榆木门板加以处理后我们又重新有效将它们利用起来。其中木梁以产品展示架、长凳以及柱体的形式呈现在空间中。
▼老榆门板做成的茶几
▼拆卸下的门板做成的卡座
▼钢板和木头的穿插
▼木梁搭建的长凳
▼柱子细节
在材料选择使用上我们是克制的,采用低造价的砖、石头以及回收处理后的老木头,这些材料温润朴实的特性也跟品牌所追求的健康与自然理念相契合,并试图让人、空间与自然之间建立联系。
▼楼梯踏步细节
▼吧台细部
▼中庭石头
▼门板细部
▼手稿概念图
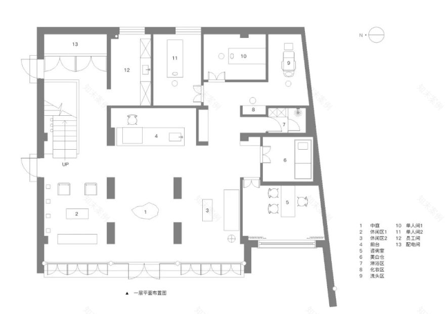
▼一层平面布置图
▼二层平面布置图
项目名称:朴念 SPA
设计方:MOU 建筑工社
项目设计 & 完成年份:2021.5~2021.7 & 2021.7~2021.10
主创及设计团队:吴状,付仕玉
项目地址:南京市秦淮区张家衙 20 号
建筑面积:320㎡
摄影:吴昂
委托方:南京朴念智能科技有限公司
施工方:南京南匠装饰工程有限公司
合作方:南京天正木业
主要材料:青砖、老榆木、艺术肌理涂料、钢板
客服
消息
收藏
下载
最近












































