查看完整案例

收藏

下载
通过体块穿插,构成空间的分隔。运用材质的肌理和色彩的叠加,重新塑造里弄老房的现代居家空间。
The space is separated by the interpenetration of the blocks.Using the texture of material and contrasting colors to recreate the modern space of the old house.
男主人是留法回国的服装设计师,从小生长于上海,既有着对老上海的里弄记忆和情节,又偏爱现代风格。
帮设计师设计家,有共鸣也有挑战。改善老房子现状的劣势条件,满足当下的居住习惯,还要将屋主的喜好风格整合转化呈现出现代又摩登的空间的语言
。
改造
之前
ORIGINALSITE
现场问题
DISADVANTAGE
- 南北隔断,屋内潮湿阴暗。
- 通风,采光均不理想。
- 天井废弃,公共空间浪费。
改造优势
ADVANTAGE
▼坐北朝南,自带天井庭院
▼公寓底层,3.7m净高,利用高差新建夹层。
▼独门独户,可以增设窗户,通风换气。
改造策略
RENOVATION STRATEGY
▼
南北方向打通,不做视觉和空间上的隔断。
▼
让光进来,让空气流动。
▼
灵活定义空间,行为决定功能。
利用原始房屋的净高优势,靠窗区域用作多时间段使用的活动场地。采用100x100的方钢搭建了夹层,夹层下方用作开放的洗厨和洗漱区,地面做了三级踏步下沉0.6m,以保证首层拥有2.1m净高,楼上卧室2m的净高。
改造后实景
AFTER RENOVATION
为了让人在视觉上和体验感更开阔,钢梁和天花处理成白色,弱化结构,灯具选择了嵌入式条形灯带沿着钢梁的方向排布。将体量感大的收纳空间和电器设置在楼梯下靠墙一侧。
利用台阶的高差设计了一体长凳,弱化多级台阶的体量感。座位下设计了抽屉式收纳,定制岩板洗漱台,保证正面视角的利落简洁。
材质搭配
MATERIAL& DETAIL
▼白色背景基调:选用白色水泥米色石子的水磨石地砖,白色背面烤漆的长虹玻璃柜门面板,爵士白的大理石纹岩板,不同肌理感的白色搭配在一起,细腻明亮。
▼线条和几何面的黄铜色用来点睛。
▼丝绒的纯色布料用于软装,有一点复古摩登。
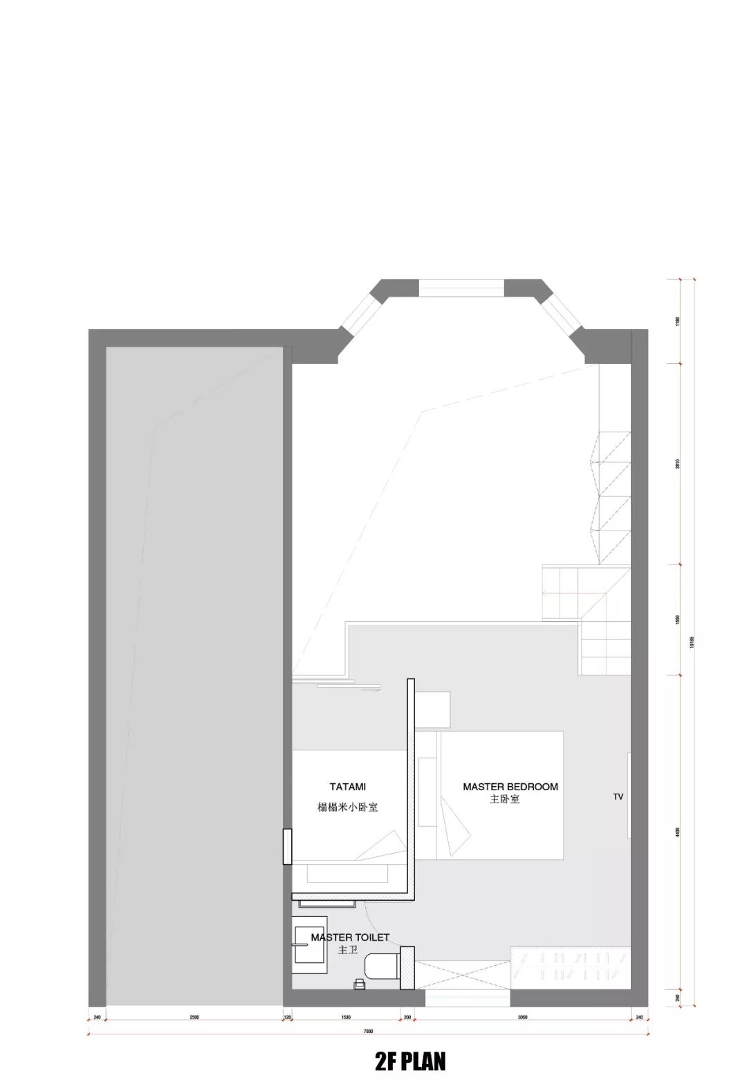
改造后平面
NEW LAYOUT
改造剖面
SECTION
主案设计/ 李梦婕,
张英琦
Design Director/ Maggie Li,
Linc Zhang
参与设计/ 杨晔科,王滟杰,陆凯琳
Assistant Designer/ Cookie Yang, Yanjie Wang, Rube Lu
项目地址/ 上海
Location / Shanghai
改造前面积
/
50㎡
Area before renovation
/
50㎡
改造后面积
/
75㎡
Area after renovation
/
75㎡
竣工时间/ 2019年2月
Completion Time / February, 2019
施工/ 温端銮
Construction / Duanluan Wen
摄影/ 木卡工作室
Photography/Muka Architects
EN
D
Copyright © 2019 Muka Architects . All Rights Reserved.
设计咨询 l 建筑改造 l 空间设计 l 空间摄影
客服
消息
收藏
下载
最近
























