查看完整案例


收藏

下载
炎夏,空气里的湿热在薄雾褪去后日渐浓郁,天亮得早了,也更久了些。晴日艳阳给人带去蓬勃朝气,待近暮时分,便积蓄了一整日的充实。此刻,回家的催促就成了最动听的完满终曲,暂别后的团聚欢喜,发酵在晚风里、彩霞间,混着入夜的迷离,在万家灯火处,又升起新一轮的雾岚缱绻。
如何算得上那片星空下的醉心港湾,拨开迷雾即可瞧见,美好的样子,不就是眼前这番。
详观客厅,垂帘处采光充沛,饰画与地毯就氤氲画风遥相呼应,侧脸抱膝的艺术雕像一身雪白纯粹,仿佛置身事外,却又像生着一份根深于此的宁静,与空间和谐共存。
茶几外围着三面沙发,一边,米白的淡然稀释着深棕固有的严谨,另一边,优雅雾蓝与素雅浅灰相得益彰。在大理石纹理与金属质感所营造的奇趣氛围下,简约现代感中和了沉稳大气的质朴格调,进而升华,将客厅的温婉韵味更显得时尚轻盈。
毗邻的就餐区,桌面与椅面是醒目纯白,红枫置中作为点缀,一旁酒柜以墨黑相称,低调中,一丝轻奢有余,不失气派。
设计之所以可使人动心,除了外在的魅力,当然还少不了内含的实用与情感寄托。细细想来,在那一屋之下,最契合于此,并且最使人依赖、贪恋的,当属卧室一隅。
本案中,卧室整体维系着低饱和的明亮度,色块从灰到蓝、粉、红,皆以暗调为主,木地板与地毯的铺设烘托着温润情愫,在和缓恬静的氛围中酣眠,才可真正享受到一场甘甜回味的安神之旅。
在婉转盘旋的楼梯上缓步慢行,跟随内心指引,去到书房、茶室、花园……每踏出一步,都是多一份的满足和温馨,这便是家的魔力。
设计师依着居住者的习性与所需,为偌大的空间规划格局、选定基调,以设计精髓对其注入灵魂,使它不再空洞、木讷。当日光可以随心洒落各处,当微风可以将花香遍布屋角,生活的灵动便由此而生。
四季有景,随处有爱。那些缱绻的岁月星河里,点滴都是生命的美好与向往。
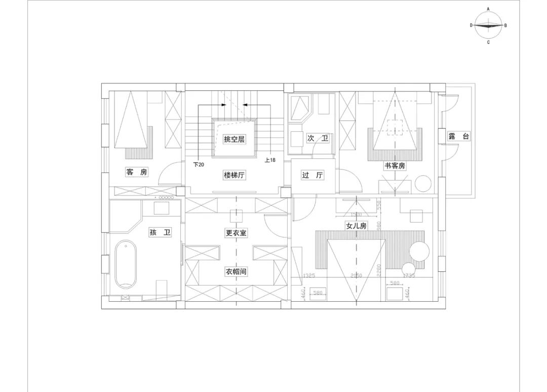
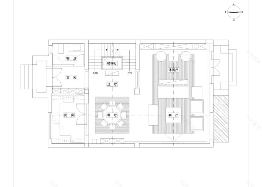
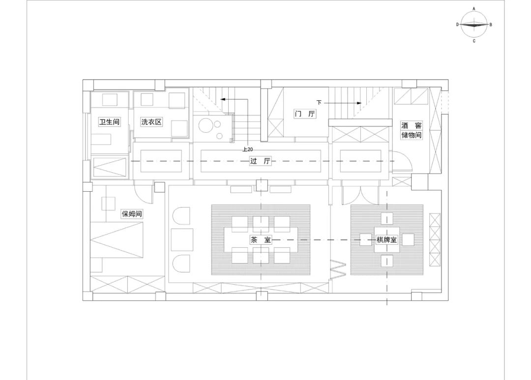
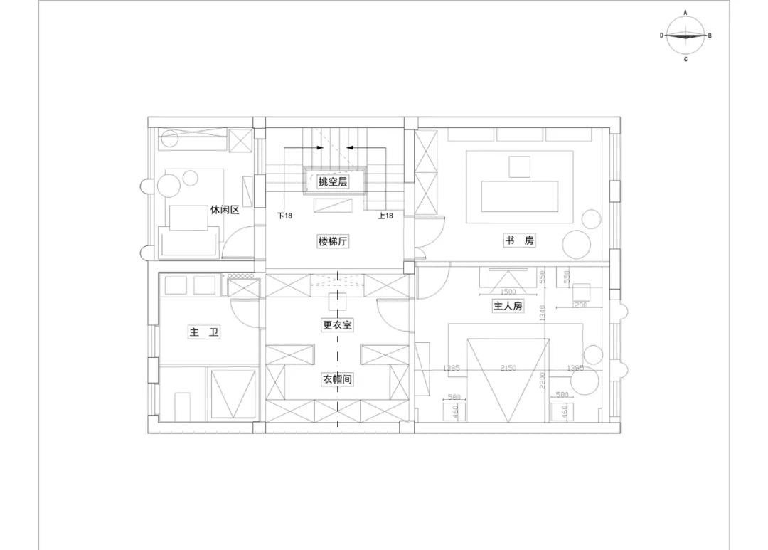
△
平面图
项目名称:宁海御华府
项目面积:460平方米
主要用材:大理石、岩板、护墙、棉麻布艺
硬装设计:钱超
软装设计:林燕多
项目撰文:袁玥
设计预约:138 6780 8898
钱超
宁波品赫设计董事/设计总监
从事室内设计行业16年
注册高级室内建筑师
CIID中国建筑学会室内设计分会会员
CIDA中国室内装饰协会专业会员
IFI国际室内设计师/室内建筑师联盟会员
宁波建筑装饰协会设计分会会员
40UNDER40中国宁波杰出设计青年
IDEA50宁波装饰设计年度人物
青设会· 宁波分会会长
荣获奖项:
2008中国(上海)国际建筑及室内设计节金外滩奖
2009中国室内空间环境艺术设计大赛(住宅空间)优秀奖
2010爱在一念之间(徐府婚房)新浪杯优胜奖
2011中国室内设计大赛佳作奖
2012中国室内设计大赛佳作奖
2014搜房网设计师频道装饰设计大赛(驻站设计名家)
2014年度杰出设计师(中国建筑装饰协会)
2016金堂奖(别墅类)
2016宁波别墅设计优秀奖(别墅实景类)
2017中国青年室内设计奖(别墅实景类)
2018HI-Design第六届CIID室内设计大赛二等奖(商铺组)
2018第十二届中国国际室内设计优秀奖
设计理念:
美的东西不只是表面的美观,还有内在的舒适,它折赏心悦目的同时,会使人不自觉展开联想,正如一部优秀电影,能让观影人产生身临其境的代入感。所以在设计项目中,设计师作为控局人,应该用精准的设计语言来表达他的思想。
林燕多
宁波市品赫装饰设计工程有限公司艺术总监
国际建筑装饰高级陈设艺术师
中国建筑学会室内设计分会会员
宁波市建筑装饰行业协会软装分会理事
家居中国(深圳)2017年度十雅谈软装设计师
宁波市2017年度十佳陈设设计师
宁波2018年度设计人物杰出软装设计师
客服
消息
收藏
下载
最近






































