查看完整案例


收藏

下载
项目名称:
瑞诗妍美容SPA心境馆
项目面积:
1200㎡
主案设计:
曹烈江
深化设计:
汪卓锋 吴俣 沈明鑫
每
一条弧线都有自己独立的灵魂,在不经意的空间处回旋出恰到好处的状态,这是空间语言对女性与其所追求美的诠释。空间包含了美容、spa、医美以及对私人vip客户的私人服务空间。
▼1F平面方案
▼ 1F大厅
作为一个塑造美的地方,我更期待来访的人都能在踏进这片空间时即刻开始从身体到心灵重塑美的历程。
▼ 1F茶室
▼ 1F多功能室
▼ 1F美甲区
▼ 1F面诊室
▼2F 平面图
利用不同材质制造肌理实现墙体与弧线的过度关系,柔的语言被映射在各个角落。利用灯光将
空间的层次体现的意犹未尽。
▼2F 包厢
▼3F平面图
摒弃传统硬朗的棱线,空间中柔中带力的曲线,让原本固态的空间变的灵动。
过多的功能
空间排列不可避免的产生狭长的通道。为破除过长空间给人造成的不适,设计在此将墙体做了不同角度的弧线转折。
▼
3F走廊
▼3F vip包厢
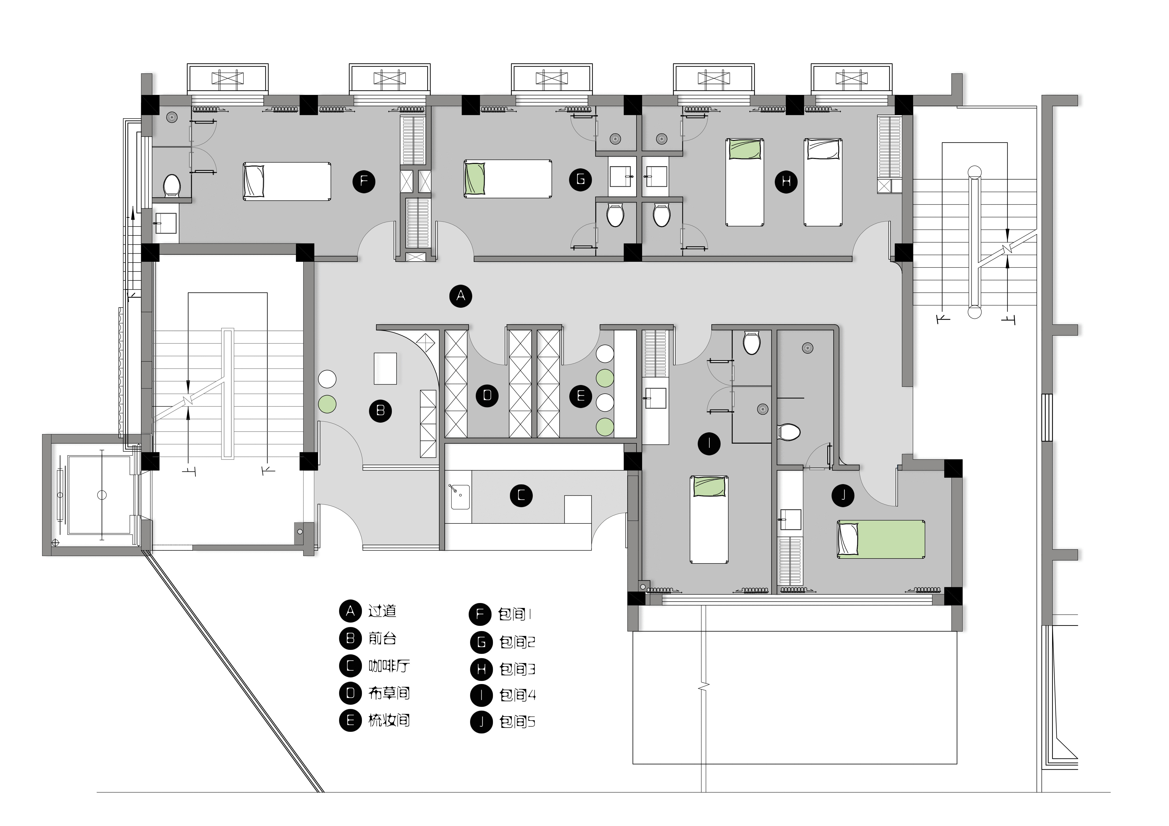
▼ 4F平面图
通过对线性空间的重新塑造展现女性所追求的美,同时赋予医疗美容机构更前瞻的品牌价值。
作为医疗空间设计严格遵循不同的工程系统标准,都遵循了健康环保的要求。
▼ 4F大厅
▼ 4F面诊室
▼ 屋顶咖啡吧
闲暇之余也可在顶层小坐,眺望近在咫尺的江景。朝江一面全玻璃材质希望在全天各时段最具观赏性江景变成其空间的视觉核心。
能为追求善与美的人们,提供良好的空间环境,壹舍设计愿奉献自己的一份力量。
在此,非常感谢,一直关心及帮壹舍的朋友们!
客服
消息
收藏
下载
最近
















































