查看完整案例

收藏

下载
光永远是一种把空间戏剧化的重要元素。
—Tadao Ando
▲点击查看视频
后疫情时代,“开启城市新物种”计划将一批勇于挑战、敢于创新、对生活充满激情的中生代推向前沿。他们与时俱进不畏变化,不断探索未来的形态;他们注重思考,试图通过各种客观的存在现象来催生新的可能……MKING,就是其中的典型代表。
探索
Explore
MKING PARTYK 位于南京竹山路 293 号,人造太空的科幻感门头引导着人们进入一场穿越时空的异次元暗夜迷境。神秘的、未知的、朋克的、数字的、未来的……无数打破常规世界的场景营造集中式叠印交织,以一派宏大组合和意外片段诱发繁荣激烈的都市狂欢。
大厅入口的异型墙面带来失重错觉,水波纹不锈钢天花板的高反射性令人犹如跌进万花筒里的迷离幻境,打开了观望世界的新视角。扭曲的动态造型和机械感让形与影都展现出异乎寻常的美丽,现实与虚幻的边界也由此变得模糊难辨,无声中吸引着人们探索隐藏的个性和美好。
意象
Imagery
空间物质通过客观物理现象、主体创作情感催生一种新的艺术形式。它是理性和感性的结合,关联着人在别处的所见、所闻、所感,在交互时产生瞬间的情景和不同的感触,由此加强空间的未知性。
光与色
路易·康曾说:“自然里的所有物质,山陵、溪流、空气以及我们自己都是发出的光,这一团被称为物质的实体投下了阴影,而阴影属于光。”
光与色集合成的梦境带着令人怦然心动的魔力,魅惑的炫彩敲开了一场时空之旅的大门。设计以光的路径体验为导向展开叙事,让光与影本身形成有趣的组合,再以神秘方式打开感官探寻的通道,却又拒绝直白的表述,于是在迂回婉转间构成引人入胜的沉浸式体验。
形与构
艺术是空间的灵魂,无论它是时尚还是前卫,所有空间构建要素都是为了唤起人们内心深处的音乐符号。
通往大厅的自动舱门开启,也几乎拨动了空间轴上的另一道维度,它更像一艘悬浮于夜空上的星际飞船,走近后,周身知觉才一层层被唤醒。
光与影
时尚,向来是娱乐空间的主旨表达。这里仿佛进入另一个平行世界,都市男女用五光十色描绘生活主旋律,有粉蓝之间的冷暖对比,也有蓝红之间的碰撞夸张。一切都显得那么特立独行又自信笃定——光代表了空间的主张。
而光是有表情的,并且掌控着人们的情绪。光影之间对称、透视、交叠,抑扬顿挫的节奏演化成一部无声剧目,主角便是深入其中的人,剧情就由自己主导。
每一个绮梦,不仅属于 MKING,更属于 MKING 的客人。
声与视
走廊通过控制灯光的延伸、扩散、变焦构成时空隧道的假象,尽头仿佛连接着无法预判的过去或将来。
内部共有 23 种包间,设计师根据不同空间尺度和客群定位展开不同风格表现,给人以贲然新奇之感。
随着脚步的前行来至包间,声、光、电的魔力排除外界纷杂干扰,感官盛宴升级为沉浸式的身心震!巨大的愉悦感与满足感蔓延开来,让人完全投入其中,从纷繁压力里彻底解脱出来,而后陶醉在多主题场景叙述中——
与其说它在营造一种氛围,不如说它找到了通往另一个精神世界的入口。
星际包厢指向更虚无的时间轴,赛博朋克式工业环境充满科幻式张力,镜面的倒影和青色冷光加深场域的幽玄氛围,犹如置身闪动的元宇宙。
设计的尺度是形态叙事的艺术,流线从空间中抽离出来糅进灯光里,通过光的变化来掌控色彩的流转,从而实现梦幻迷醉的时空之感。这是对当下建筑与空间逐渐走向艺术的呼应,也为娱乐空间设计带来新的启发。
▲左右滑动查看更多情景图
镜头翻转,场景
从无垠星海被拉回到千百年前。流水的幕墙、婆娑的竹影、朴拙的石灯,将时空重置为烛影摇红的年代,绯色与幽蓝在冷凝中定格,在怀想中糅合。
本原
Original
世界的本原是物质,物质的本原是“客观存在”。长久以来,“存在”为“物质”创造并不断创造一切,包括过去、现在和未来。
在 MKING 的空间构想中,设计师以广阔的时空观念颠覆惯常的娱乐空间思维模式,打造有力度、有激情、有冲击与迷恋的场所氛围,扰乱一切平衡又重构机能秩序,让身处其中的玩家,时而感受宇宙和自我的渺小,时而感受存在与虚无的宏大。
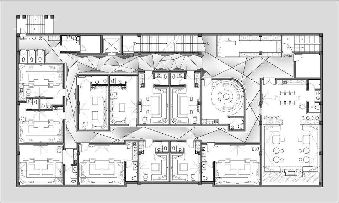
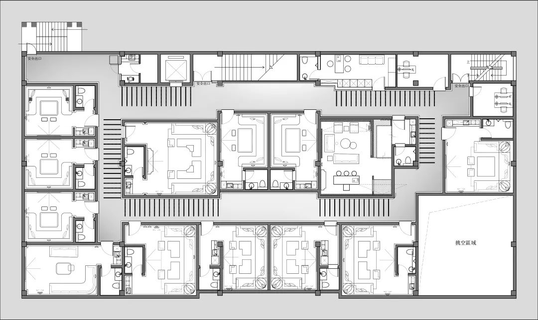
▲左右滑动查看平面图
▲左右滑动查看模型图
项目名称:暗夜秘境 MKING PartyK
项目地址:南京江宁 Jiangning District, Nanjing
项目类型:商业娱乐 Business Entertainment
项目面积:3000 ㎡
主创设计:李宽喜 Kuanxi Li
设计顾问:袁明 Ming Yuan
王宏风 Hongfeng Wang
设计团队:罗思伟 Siwei Luo
渠智程 Zhicheng Qu
胡曦文 Xiwen Hu
顾向华 Xianghua Gu
谢晨帅 Chenshuai Xie
设计公司:品奕汇设计 PCD
集设汇设计 CTD
灯光深化:合一照明 HYL
装置深化:诚意定制 Cheery Custom Made
空间摄影:黑曜石 OBSIDIAN
设计时间:2021.08
竣工时间:2022.01
往 期 阅 读
PCD 新案
| 泊云间·见乐
PCD 作品 | 造梦之旅
PCD 作品
| 文人意趣·诗意办公空间设计
PCD 作品
| 潮向酒吧·时间的形态
<更多作品请于公众号内查看>
·品奕汇(PCD)设计
— 平衡“道”与“器”
—
我们从 2003 年创立设计工作室,2010 年注册“品奕汇”,始终立于本原、回归本心,坚持可度量的物质空间与不可度量的精神追求,运用点线面体语言表达,品读融汇出设计的核心:“空间的法眼是气息”。
遵循人本意志,触感建筑空间本质,品奕汇致力于为客户营造积极、向善、愉悦、和谐的环境和心境,实现空间功能化与审美个性化的和谐。
Add:南京市江宁区将军大道 8 号玛斯兰德辣椒街区 58-1
客服
消息
收藏
下载
最近


















































