查看完整案例

收藏

下载
“情動於中而行於言,
言之不足故嗟嘆之;
嗟嘆之不足故詠歌之;
詠歌之不足,
不知手之舞之,
足之蹈之也。”
引自中国古代诗歌理论
作曲/ 章礽然
入口接待
空间,
rece
ption space
舞蹈如同人的另外一种语言,进而抒发情感。作为学习与交流民族民间舞蹈的空间,我们希望空间语言与舞蹈语言产生某种共鸣。项目位于北京市海淀区,空间功能综合了舞蹈教学、课堂讲座、休闲交流和会议办公等,设计中需考虑学生、家长、老师、办公者、宾客等不同需求。
Dance is like another language of people to express the emotion. As for the design of space for learning and communicating ethnic folk dance, we hope that the language of space and the language of dance have some resonance.
Located in Haidian District, Beijing, the project provides space for dance teaching, class lectures, leisure communications, conferences and office work, meeting diverse demands of students, parents, teachers, office staff, guests,etc.
【一】
「
延伸的身体
」
接待空间作为入口区域是最开始看到的视觉点,具有一定空间引导性和文化展示性,在有限空间格局中,设计中考虑放大空间视觉感受。舞蹈中关于身体伸展的动作给予了启发,在某些伸展动作时,舞者会将自己的手臂及双腿伸到最远处。
The reception space, as the entrance area, is the first visual point to be seen. It provides certain spatial guidance and displays the culture of ethnic folk dance. In the limited space pattern, the perception of space enlarged visually is considered in the design. The body movements in dances give us inspiration. In some stretching movements, the dancers stretches their arms and legs as far as possible.
设计中,我们将前台区域纳入到L型墙中进行整体考虑。顶部软膜天花吊顶通过斜向处理和倾斜的形式打开上部的张力,完成向不同方向的伸展。前台与右侧台阶连为一体放大了底部的伸展张力,台阶在这里暗示了一个舞蹈跳跃可能性的场所。底部粗糙肌理的美岩板饰面增强了其重量感,与顶面吊顶的延展覆盖构建相互平衡关系。同时表达出「更靠近地面,更接近天空」的舞蹈意向。
In the design, we incorporated the reception area into the L-shaped wall area for general consideration. The soft membrane ceiling on the top stimulate the tensions in the upper part by oblique design processing and the inclined form to complete stretching in different directions. The reception desk is connected to the steps on the right to increase the stretching tension at the bottom. The steps here suggest a space for dancing and jumping. The rough-textured slate veneer at the bottom increases its visual weight and builds a balanced relationship with the extended coverage of the ceiling. At the same time, it expresses the intention of dance: "closer to the ground, closer to the sky".
【二】
「被拉长的舞裙」
展示空间作为空间第二幕,设计中考虑以流动性的方式进行过渡。舞蹈中关于动作的过渡给予了启发,连贯、旋转、弧线、延时让舞蹈动作与动作之间呈现出流动感。
As a space apprearing sequently,, the design of exhibition space considers transitions in the way of fluidity. In the dance, the transition of movement gives the inspiration. Coherence, rotation, curve and delay make the dance present a dynamic flow between two sequential single movements.
通过一个弧墙开始过渡,弧线的转角似乎意味着光线和轨迹在未知面的不确定性,主体的线条造型由木质层板组合而成从而形成水平的横向肌理。展示空间中,镀锌钢板墙面作为日常教学中公告栏,电子屏幕输出动态的视频内容供参观者观赏。
The transition begins through an curved wall, the corner of which seems to mean the uncertainty of the light and the track on the unknown surface. The line shape of the subject is formed a horizontal transverse texture by being composed of wooden boards
.
In the exhibition space, the galvanized steel wall surface serves as a bulletin board in daily teaching, and the electronic screen shows dynamic video for visitors to watch.
从接待空间向展示空间看
view from reception space to exhibition space
从展示空间向休闲空间看
view fr
om exhibition space to leisure space
弧形转角后即公共休闲区域,我们将流动的弧形线条墙体作为组织语言,将学生休息,家长等候,教学及聚会等多种功能板块舒展整合于轨迹中。墙体下端设置座位平台,中段设置展示界面,界面中聚碳酸酯板的使用将实体的空间片段模糊处理,同时也在片刻映像了「即时舞蹈」的人群。
After the curved corner is the public leisure area, the flowing curved line wall is the language to organize and integrate the multiple functional blocks such as students' rest, parents' waiting, teaching and gathering into its track. The seat platform is set at the lower part of the wall, and the display interface is set at the middle part. The use of polycarbonate board in the interface blurs the solid space fragments, and reflect the "instant dance" crowd in a moment.
【三】
「空间中的眼睛」
现场中,展示区域与公共休闲区域中的一棵圆柱子给我们增加了难题,从平面图上看,它处在一个相对中间的位置。我们尝试将中间的柱子赋予空间属性,同时产生与整体形式及内容上的连接。
On the site, a column between the exhibition area and public leisure area has added design difficulties to us. From the perspective of the plan, it is in a relatively central position. We try to give the space attribute to the middle column, and produce connections between the column and the whole forms and functions at the same time.
设计中,柱子被弧墙包裹。再次反观平面,如同在整体的空间中心置入一个「眼睛」的构成。让我们联想到儿童画中对于物体的想象以及立体派绘画作品中分解、重组和并置的形式。将整个平面看作画面,此处的「眼睛」与弧线木质墙体、前台吊顶的多边形体块形成某种要素与要素之间的关联。
In the design, the column is wrapped by the curved wall. The plan, being looked at again, is like an eye in the center of the whole space in terms of form. This makes us think of the imagination of objects in children's paintings and the forms of desolution, reconstitution and juxtaposition in cubist paintings. Looking at the entire plan as a picture, the "eye" here, the curved wooden wall, and the polygonal block of the ceiling above the reception space forms a certain link between elements.
图解/ 施新桐
中国古典舞以手、眼、身法、步为技巧要素,
需要相互的关联与配合。
Chinese classical dance uses hand, eyes, body style, and steps as technical elements,
the interrelated links of which are necessary.
从展示空间向休闲空间看
view from exhibition space to leisure space
关于对柱子的包裹,从四周不同方向上看有所差别。从展示区域看,我们对柱子进行遮挡,对休闲区域起到一定隔挡作用。而从休闲区域看,柱子被显露出来,在这里,「眼睛」成为了休闲区域的置物与展示空间。
Regarding the wrapping of the column, there are differences visually f
rom different directions around. From the perspective of the exhibition area, we shield the column, so it plays a certain role in diving the leisure area. Seen from the leisure area, the column is revealed. Here, the "eye" becomes the shelving and display space of the leisure area.
从休闲空间看柱子
view from leisure space to the "eye"
【四】
「虚影下的即时舞蹈」
由于功能需求,休闲空间与会议空间需在不同场景下相互转化,因此方案提出了开放共用以及独立分隔的两种空间模式。设计使用整面折叠门完成空间的打开与闭合:中间处的折叠门关闭后,即是两个独立的空间,可保持工作人员会议办公需要的私密性;打开后,即是一个融合的共用空间,适应了多人的会议与教学交流需要。在折叠门的材料使用上,我们使用了聚碳酸酯板,营造模糊视觉感的同时体现温度及亲切感。
Due to functional requirements, the leisure space and conference space need to be transformed into each other in different situations. Therefore, the scheme proposes two space modes: open sharing and independent separation. The design uses the entire surface of the folding door to fufill the functions of opening and closing in the space: When the folding door in the middle is closed, it is two separate spaces, which can maintain the privacy required by the staff meeting and office work; when opened, it is an integrated common space, which adapts to the needs of multi-person conferences and teaching exchanges. In the use of folding door materials, we use polycarbonate board to create spatial ambiguity as well as intimacy.
舞蹈教室区域包括一个200平米大教室,两个130平米中型教室以及一个小教室,从公共空间到教室区域设置了等候以及换鞋区作为空间的过渡,为学生提供一个相对舒适放松且私密的舞蹈准备区域。空间设有充足更衣室空间,方便学生更换舞蹈服装以及化妆准备。设计中我们对更衣室入口进行空间上的遮挡处理,使其不直接面向公共区域。
The dance classroom area includes a 200-square-meter large classroom, two 130-square-meter medium-sized classrooms, and a small classroom. Waiting and shoe-changing areas are set up as transitional area from the public space to the classroom area, providing students with a relatively comfortable, relaxed and private dance preparation area. There are ample dressing rooms in the space for students to change their dance costumes and to do make-up preparations. In the design, we make the entrance of the dressing room not face the public area directly.
大舞蹈教室, large dance classroom
中型舞蹈教室,
medium-sized dance classroom
空间设计中采用了多种色彩的墙面,
呼应了民族民间舞蹈艺术中丰富的色彩意向。
A variety of colors are used in the space design,
which echo the rich colors in the ethnic folk dance.
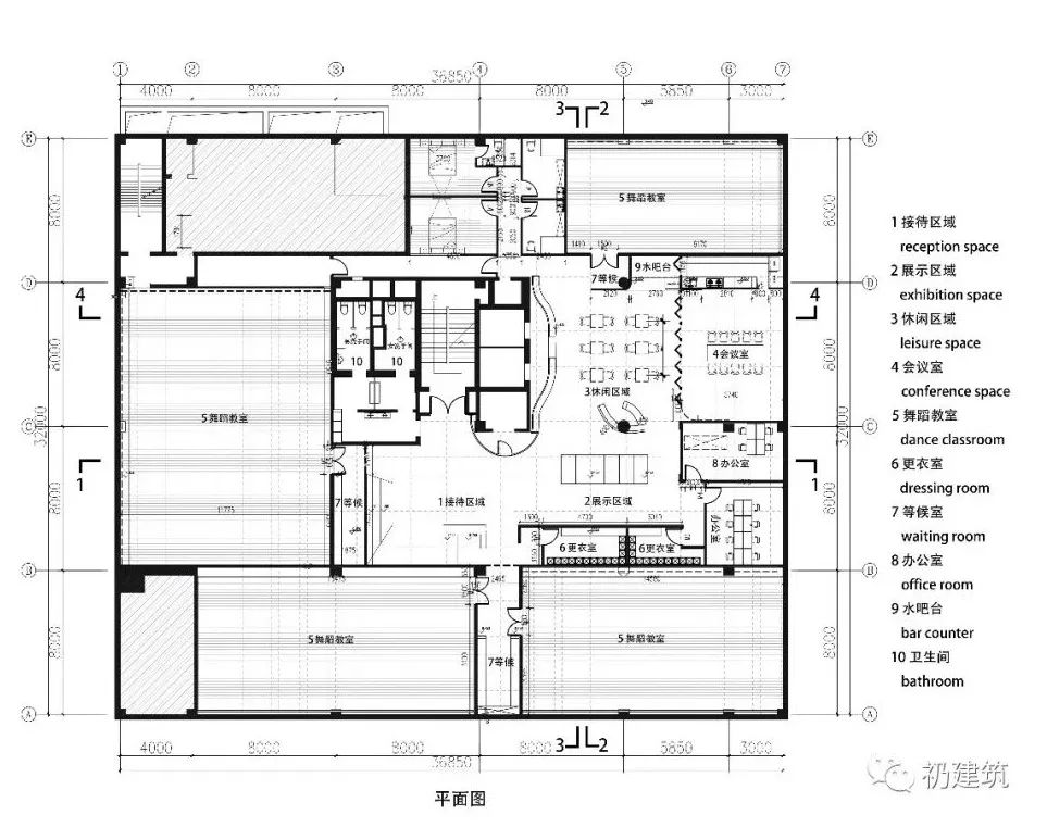
平面图,plan
剖面图,sections
建筑师:章礽然,施新桐
Architects: Zhang Rengran, Shi Xintong
地址:
北京市海淀区民族大学南路
Location: South Road, Minzu University, Haidian District, Beijing, China
方案
/
扩初
/
施工图:
礽建筑
Concept/Developing/Construction Drawings: Rengarch
业主:北京中国民族民间舞蹈家协会
Client: Beijing Chinese Ethnic Folk Dancers Association
建筑面积:953.9m²
Building Area: 953.9m²
项目年份:
2019.3-2019.5
Date: 2019.3-2019.5
摄影师:张斌
Photographs: Zhang Bin
英文校对:丁旭
English proofreading: Ding xu
礽建筑
RENGARCH
客服
消息
收藏
下载
最近

































