查看完整案例

收藏

下载
抽象艺术是以内在需求为基本原则的,即表达情感的需求,注重主人翁内心的感受,而不拘泥于特定造型形式来进行创作。设计师通过更合理的格局排布和动线梳理,来刻画人居生活场景,精致视觉感受,提高陈设质感,将艺术色彩所呈现的特色融入日常,打造专属生活空间。
在艺术主调的浸润下,几何与抽象美学的动态创作中,现代和法式轻奢风格在韵律的秩序中达到恰到好处的平衡,设计师力求为人们尽致呈现“家”的氛围和感受,打破传统样板间的堆砌式装饰,利用抽象艺术和质感材料重塑风格,随着空间更迭变化和细节的精心点缀唤醒感官的体验,乐在其中。
01. 几何维度融入现代审美空间,激发多重感官
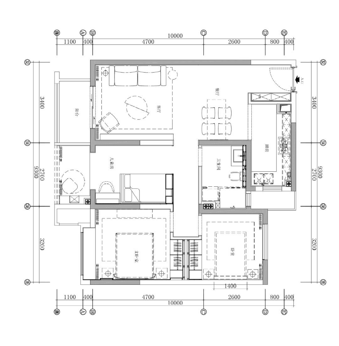
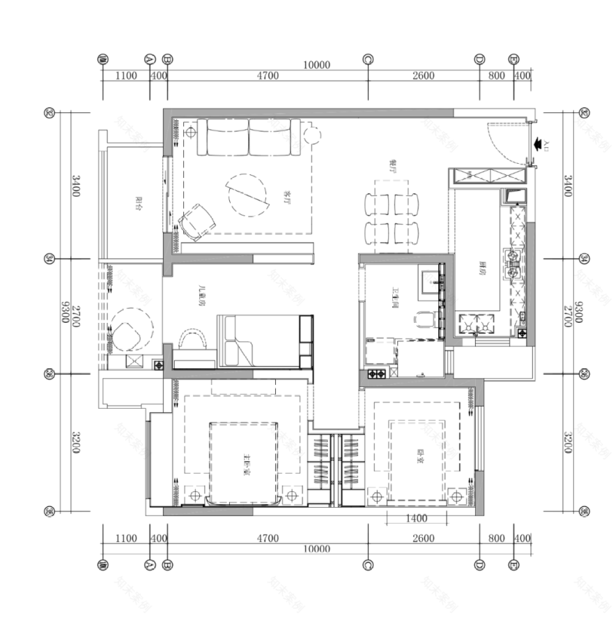
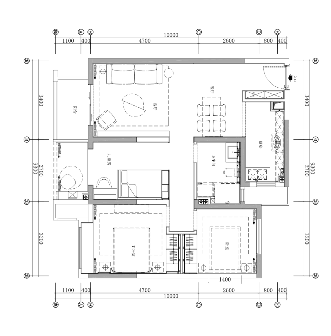
户型一面积为 100㎡。几何的魅力在于简约,圆形与重叠色块的完美相遇,以时尚、新颖、设计感重新定义现代风格,白色为基调,搭配蓝灰调色彩,给空间增加即时的视觉效果,跳脱的区域背景板和地毯与空间均匀的色调相结合,为动态的视觉效果提供平衡的审美感受。
银色圆桌、布艺单人沙发、几何图案地毯、艺术的边几,质感时尚的家具透露出新奇而前卫的艺术气息,多重视觉体验在明亮的自然光中合而为一,给人现代别致的舒适感。
客餐厅一体的设计让原本就宽敞的空间显得更加大气,延续客厅的设计风格,蓝色圆形的挂画和格纹餐椅成为空间的视觉焦点,软装的微妙之处就在于不经意间的刚刚好。
主卧背景选用灰色磨砂材质,床头采用皮质软包,金属装饰的点缀凸显出设计感,整体的灰色主调简约地还原生活的纯粹本真,让卧室成为回归真心的港湾。
次卧也是精心雕琢,窗帘、床品、挂画、灯饰,几何图形的元素,犹如惊喜一般映入眼帘,生动趣意的色块像音符一样在一片淡雅的灰色基底里跳跃。
儿童房以当下流行的灰粉色为主调,如童话般梦幻的空间,让人忘却烦恼,空间简洁却又不失时尚趣味,在这样的空间里令人感到舒适放松。
平面图
02. 平衡抽象艺术打造法式轻奢,提升空间归属感。户型二面积为 121㎡。将抽象的艺术形态融入设计中,以简单明了的线条设计高贵雅致,天然理石肌理感打造经典轻奢风格特色,编织理想生活的美好,低调而不失奢华,稳重而不显沉闷,时光漫入岁月里,种下一撇不经意的温暖,一本书一席毯子,在落地窗前一坐就是一个下午...
中性简洁的色彩凸显高级感,纯白皮沙发、不同大理石纹路的茶几和地面,轻奢元素处处可见的考究是设计师打造质感生活里的心思,巩固现代时尚感的同时不乏舒适度。
优雅生活,不负时光。简单的白与沉稳的灰,碰撞宁静的一抹蓝色,整个空间萦绕优雅沉稳的气息。抽象设计的灯具、摆设,增加空间的层次感和价值感。轻奢不是突兀的金属质感,更多的是视觉的平衡和空间的归属,奢华有度,优雅刚好。
主卧采用迷人的法式优雅床品做点缀,现代又温馨,透露出高雅的审美,提升艺术气息,让在其中生活的人能够感受到空间的温度。
次卧则采用的是同色系的色彩对比,用宁静平和的墨绿色系点缀在灰色主调中,宛如河水一般波光粼粼。床背景利用质感壁纸和抽象画挂件提升空间秩序感,时尚的单人沙发兼具舒适与设计,是对现代法式生活的追寻。
阳光肆无忌惮地洒向室内,惬意幽静的感觉,以独具特色的轻奢格调吸引视觉,新奇纯真的色彩搭配能让孩子在独立的空间探寻未知,充满童趣的家具点缀出空间的趣味性,抽象可爱的挂画激发孩子想象空间。
平面图
结语
点点线线、圈圈圆圆,几何图案勾勒出万种形态,犹如人生百态,抽象给家无尽遐想,转变世间种种却又离不开初之起点,设计之初心,是提升主人翁的品味,释放空间整体效果,线与色块的组合,碰撞出火花,给了家无尽的想象。
EVD 廿象设计通过空间里几何分割和抽象展示的艺术工艺和审美趣味,追求人与空间关系的纯粹,强化现代装饰视觉效果和情景体验,重塑样板房的多样化,提升人居沉浸式舒适氛围。
项目信息
项目名称:甘肃天水恒顺·阳光城翡丽湾样板间
甲方单位:阳光城
项目地点:甘肃省天水市
项目面积:
户型一:100㎡、户型二:121㎡
完工时间:2021 年 4 月
软装设计:EVD 廿象设计
项目摄影:一千度视觉
EVD 廿象设计是一家立足于中国上海,提供国际化、建筑室内一体化、高端艺术服务的多元性设计事务所。坚持以古典美为基础,致力于空间情绪与经验、尺度、细节、材料和光的研究,并从常规经验与日常事件切入内在的“深层结构”,从而创造出不同的空间体验。
郝丽运&杨冰
EVD 廿象设计丨竹风轻动,珠帘月上玲珑影
EVD 廿象设计 x 元禾大千|回归自然,诗意栖居
EVD 廿象设计|红绿蓝交迭构建家的理想色
EVD 廿象设计|雅致轻奢,以艺术格调凝练理想人居!
EVD 廿象设计丨古典美学诠释永恒空间
EVD 廿象设计官方联系渠道:
地址:上海市长宁区哈密路 166 号 B 栋 401 室
邮编:200050
Address:B-401,NO.166Hami RD,Changning,Shanghai,CHINA
Zip code:200050
关注我们
FOLLOW US
客服
消息
收藏
下载
最近
























































