查看完整案例

收藏

下载
融创 • 未来海
FUTURE SEA • SUNAC
墙的另一边,是一望无际的“海”。让人想起肉眼无法看到的世界,诉说着人们内心的事物。这也是我理想中的建筑形态……——安藤忠雄
一线江景的自然资源优势、未来海以奢阔的空间尺度,开阔的观景视野,通过极简主义的创新演绎,呈现通透、现代、雅致的建筑气质,营造丰富多彩的多功能生活空间。
#01 江景与建筑
©融创东南区域
项目位于福州高新区,海西园区中部偏北位置,东侧为宝贵的乌龙江江景资源,周边交通便捷,拥有极佳的景观视野。
福州城市空间结构定位为“一区两翼、双轴多极”,中心城区按照“东进南下、沿江向海”的城市发展方向发展,早在 1991 年就获批国家级新区的福州高新区,是乌龙江岸上最璀璨的明珠,未来海所处的海西高新技术产业园更是汇集福州未来城市发展活力。
规划根据周边条件,地块内南侧沿街建筑呈南北向布置,保证城市界面的通透性,并形成一定序列感。适当增加空间开敞度,保证城市设计中的主要景观轴线及视觉通廊贯通。
临江建筑高低错落,形成“滨水低腹地高,错落有致”的形态,与周围建筑相组合,形成一道完美的城市天际线。
#02 多功能混合社区
项目规划 5 栋高层住宅、2 栋商务办公 SOHO、1 栋 2 层商业沿西侧道路沿街布置,通过住宅、公寓办公、商业多种业态的分区组合,各功能区既相对独立,避免交叉干扰,又紧密连接,打造出生活便利、环境舒适、富有活力的混合社区。
地块内部结合周边日照情况及景观朝向,建筑整体沿适当偏转,呈南偏东朝向布置。住宅分布在小区的南侧,并围合出独立的中心大花园,保证相对独立性与均好性;沿街建筑界面完整,有效形成序列感,强调建筑群整体气势,又提升了城市整体景观价值。
#03 中央大花园
小区由高层住宅适当偏转围合式布局,顺应周边城市界面朝向,并利用建筑高层的偏转及错落围合出中庭景观资源,做到户户有景,步移景异,形成既有共享性又有私密性的园中园环境空间。
设计依托中心景观绿地、带状景观绿地,形成片区生活景观环;商业空间、小区步道、小区绿地、中心花园共同构成丰富的立体公共空间体系。
#04 现代极简立面
建筑采用现代风格,强调形体拉平、规整对称、经典的三段式立面、横线条贯通,立足几何美学与精工细作,呈现跟周边建筑和而不同的气质。极具辨识度的“铂金灰”,组合大面积的玻璃窗,形成通透、简洁、优雅的建筑气质,独具国际风尚。
小区整体色彩调整为浅色为主,与周围城市肌理形成良好呼应的同时又增强了小区的整体性。
坡屋顶形式充分展现福州地域特色和建筑文化,是传统与现代手法的融合,框架化的铂金灰线条、立面精致的洞口细节,配合大面积玻璃栏板,均体现出建筑的现代、精致和新锐。
©融创东南区域
住宅底层架空结合绿化,增加公共休闲活动功能,设计承袭融创“归心社区”营造理念,打造书享、果壳、足迹等归心空间,为业主营造丰富多彩的人文活动交流空间。
设计图纸
△ SOHO 北立面
△ 住宅北立面
△ 住宅南立面
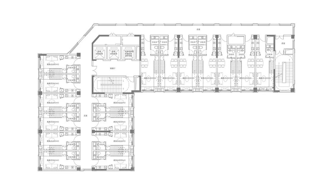
△ SOHO 住宅平面
△ SOHO 标准层平面
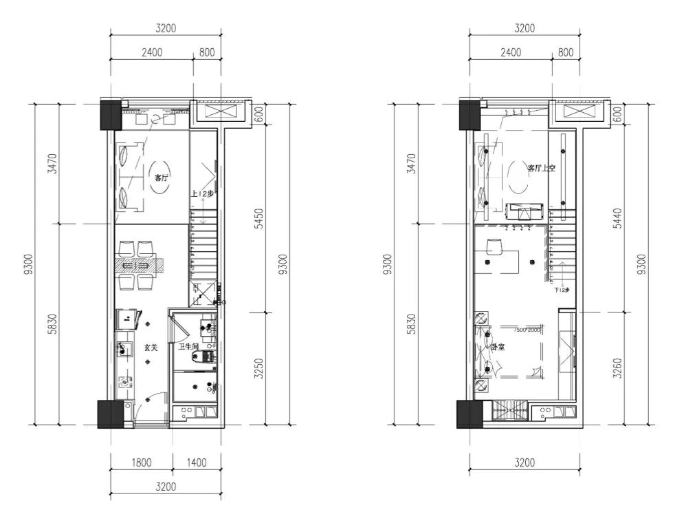
△SOHO 公寓首层平面
△SOHO 公寓夹层平面
项目概况
—
项目名称:融创·未来海
项目地址:福建省福州市高新区
建筑面积:136205 平方米
建设单位:福州融硕置业有限公司
甲方团队:融创东南区域福建公司研发设计部
建筑设计:上海中房建筑设计有限公司
设计团队:包海泠、徐世敏、王洋、陈玉、李晓迪、王健健、于静
施工图设计:厦门上城
景观设计:麦田景观
室内设计:典尚设计
建筑摄影:吴志盛
相关阅读
招聘热线:021-63775779
客服
消息
收藏
下载
最近




































