查看完整案例

收藏

下载
融创CHINA山水江南
CHINA LANDSCAPE JIANGNAN
“对于中国的现代建筑来说,新的形式、新的创作道路正是要从中国自己的传统建筑格局里产生。”
——贝聿铭
作为融创全球第四座山水系著作,CHINA山水江南以山水为立意,以极简为美学,将东方传统文化与国际化审美相结合,打造全新国际中式风格。
寻山探水、中式雅韵
江南文化之城无锡,是一座被山水包围的城市,山水为骨、人文为韵。经开区南临太湖、北依蠡湖,项目位于经开区太湖北侧,靠近市政府绿轴,景观资源丰富,山水相依。
设计秉承山水画“可行、可望、可游、可居”的四可之境,根植于中国传统精神,同时汲取江南文化的自然、轻盈、淡雅。在建筑形式、空间层次、景观氛围、居住理念等方面以现代手法表达传统文化精神。
开合有致、山水画境
普利兹克奖得主约翰·伍重先生曾经说过,“东方建筑的核心精神是屋顶下的灰空间,它应该是开放、通透的,一处与自然对话的场所。”
主入口处中轴对称的空间布局,既传承传统空间格局,又有别于传统做法,打开了中式建筑的传统形制,挣脱院落的封闭感。步入其中,建筑融入山水、园林绘入建筑,勾勒出了远山近水的东方意境。
总体规划注重礼仪、秩序的打造、动线开合的变化。丰富的花木、多变的空间与水景的结合,强调轴线仪式感的同时,通过移步景异的传统造园手法,以及对空间“起承转合”节奏的把控,使整个礼仪轴更具尊荣感和体验感。
建筑色彩整体淡雅素净,传承江南传统建筑特点,从传统建筑的檐、院、墙、窗、门等元素中汲取灵感,以现代技术演绎。去繁取简,取其比例和神意,以极简的大幅玻璃幕墙与简明的金属线条为主,打造“新江南”主义园林 。
曲廊通幽、回归生活
回廊是传统园林庭院不可或缺的要素之一,山水江南L型的连廊,既能起到空间引导和界定的作用。迂回行进,步移景异,回廊小径婉转其间,更添游园趣味。
金属屋面、吊顶、深灰色的金属支撑打造的连廊轻盈舒展,与周边景观相映成趣。格栅以隔而不断的方式构筑室内外的微妙联结,伴随光影的虚实变化,“山水”画境徐徐展开。
富有韵律的空间设计,延续山水造景的意向,螺旋状的楼梯连接着等高线错叠的天花板,山形的屋顶结合线与面的堆叠,丰富了室内视觉层次,给人无限的山水空间畅想。
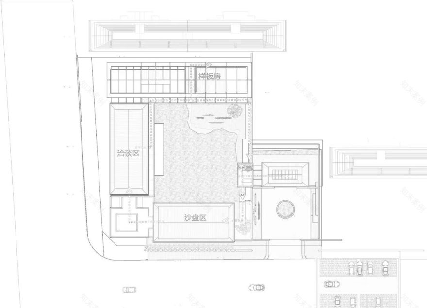
设计图纸
△总平面
△节点
项目名称:融创CHINA山水江南
项目地址:江苏省无锡市经开区
建筑面积:5000平方米
建设单位:无锡政融城市建设发展有限公司
建筑设计:上海中房建筑设计有限公司/施工图设计:江苏城归设计有限公司
设计团队:黄涛、叶琳、黄睿、汪益帆、王颖、凌天齐、吴欣颖、丛众一、朱自强
甲方团队:
顾菲、徐静、黄丹丹、
林扬、侯锞蔚、季文娟、吕冬
景观设计:LANDAU朗道国际
室内设计:近境制作、无间设计
建筑摄影:黎伟
相关阅读
招聘热线:021-63775779
客服
消息
收藏
下载
最近


























