查看完整案例

收藏

下载
项目说
办公空间是公司的一处形象名片,它不仅衬托着办公氛围,还承载着公司的个性及内在品质。2018年徐绮设计事务所乔迁至厦门湖里区航空商务广场,徐绮设计团队运用多元材料和现代建筑方式设计出融合自然与艺术的办公环境,演绎理性构建中的优雅、时尚。(恰逢徐绮设计事务所创立六周年,让我们再度回顾这处陪伴我们奋斗、成长的办公空间吧。)
01.
前厅 ANTEROOM
©许晓东
整体设计理念以品质、艺术、自然为线索,表现于材质、用色、意境的细节把控,贯穿在空间的软装铺陈,细腻无声,又恰到好处,在理性的篇幅中漫写抒情,呈现素雅宁静之美。
©许晓东
©Suki
材料的运用上,大面积蓝灰色自然矿石墙面浑然内敛,自然纹路犹如写意画卷,富有极强的视觉感,赋予空间关于自然的臆想。同时加入了温暖的木色,平添空间温馨感,局部用黄铜及黑钛勾勒点缀,让整个空间呈现出静谧但不沉闷的办公氛围。
©许晓东
色调雅致,黑色的凝炼、白色的纯净,空间中不同体块、不同质感的灰色,就成了整个空间中最活泼的元素,富有节奏感。
02.
沙发接待区
HOLDING AREA
©许晓东
综合接待区壁炉隔断承载着餐厅与接待厅自然分区的功能,跳动的火焰自在灵动,一动一静,别有一番趣味。
©许晓东
接待区家具造型呼应空间体量的几何线条感,纯白简灰的极简色调,柔软的沙发与通透的理石台面搭配,呈现一种刚硬与柔和并存、轻盈与稳重并呈的特殊质感。
©许晓东
纤柔的花艺同样以极少的形式艺术地存在,编织出空灵的静谧感与美。巨大的落地窗将室外光景引入室内,白天是郁郁葱葱的绿,夜晚则是静谧的灯光花园。壁炉的另一侧,餐厅大长桌同样满足公司会议或小型聚餐功能的灵活转换。
03.
会议室
CONFERENCE ROOM
©许晓东
步入前厅,会议室移门的设计划分会议室与公共办公区,可自由闭合,使两个空间既相对独立,又互相连接,满足公司小型会客以及会议的不同功能需求。空间动线带领客人的视线,让客人的视线不能完全看到, 但能感知下一个场景的手法递进空间。
04.
办公区
ADMINISTRATIVE AREA
©许晓东
阳光透过天窗沿着楼梯洒进室内,随时间的变化呈现斑斓的光影变化,自由、惬意。
©Suki
整体白色的办公家具,干净有力的线条,给人一种轻盈感,营造自然轻松的办公氛围。打破了传统办公室的呆板格局,每个空间独立又互相联通,使得工作伙伴之间增加了互动、信息分享和协作。
©许晓东
05.
总监办公室
MAJORDOMO'S OFFICE
©许晓东
06.
其他 OTHER AREA
休闲区 RECREATION AREA
©许晓东
阅读室 READING ROOM
©许晓东
07.
户外景观
OUTDOOR LANDSCAPE
©许晓东
©Suki
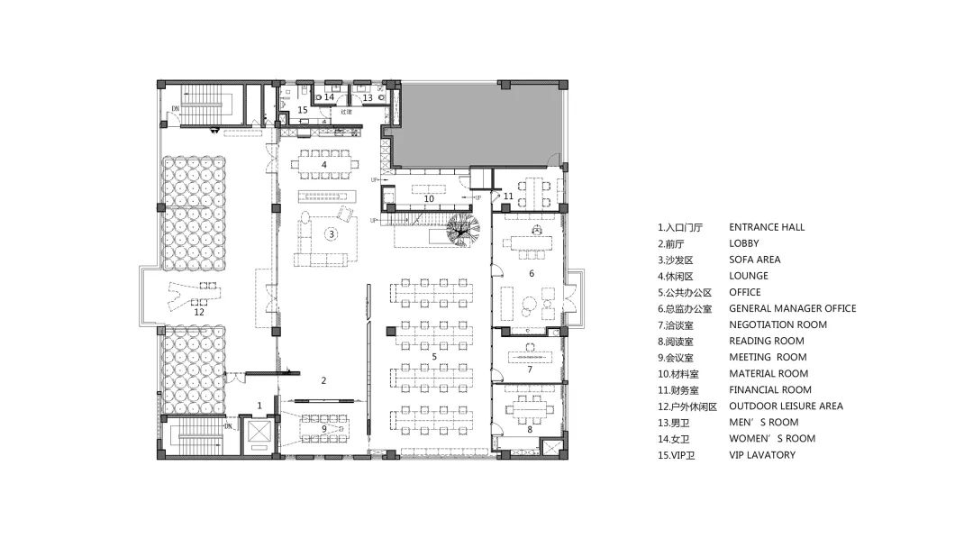
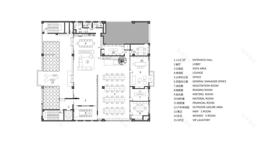
平 面 图
▽
(平面1F)
(平面2F)
项目信息:
项目名称:徐绮设计事务所办公室
项目地点:中国厦门
设计单位:徐绮建筑设计咨询(上海)有限公司
主创设计:徐绮
设计团队:张江、张永正、蓝天贵、张烨、翁凯艺
施工单位:广州珠江装饰工程有限公司
开发建商:厦航地产
项目面积:800㎡
完工时间:2018/08
摄影师:许晓东(全案拍摄),Suki(局部拍摄)
主要材料:石材、木地板、黑钛、铜
设计师介绍
徐绮(Suki)
徐绮设计事务所设计总监
徐绮有着长达16年的设计经验,先后担任厦门喜马拉雅设计装修公司设计总监、上海李玮珉建筑设计事务所专案经理,于2014年创立徐绮设计事务所。擅长现代简约的手法以纯粹的设计,演绎宁静、优雅的空间体验。
身为女性的柔美与优雅,让徐绮有着属于自己的设计风格——在理性的设计框架下,构建感性的空间语系。女性视角让徐绮更擅长营造空间的生活温度与居住时尚。
关于SUJI
徐绮设计事务所(SUJI DESIGN STUDIO)是一家以提供高端设计服务的设计机构。公司致力于住宅地产和商业地产的产品研究 , 主要从事高端住宅、会所、售楼处、样板房、写字楼、精品酒店等的设计工作。
客服
消息
收藏
下载
最近
































