查看完整案例

收藏

下载
#飞机稿 03 号
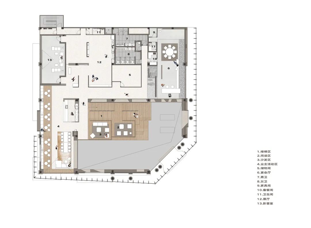
东莞城市展厅
人是空间的使用者
空间应为人服务
我们希望重新定义空间中的联系
创造一个丰富体验的“共享社区”
一至二层如同建筑般进行连接,将一层所有区域退还给社区,服务于周边,实现共享。
空间中大量使用木饰面,营造温暖舒适的环境氛围。空间隔而不断,通透却不失安全感。
转角处别有洞天,豁然开朗。空间采用无主灯照明,明亮而柔和。
简约而不简单。体块间的碰撞与摩擦,材料间的窃窃私语,无不为此处增添趣味。
飞机稿 03#档案信息
档案名称:东莞城市展厅
生源地:深圳市超级平常空间设计有限公司
体积:879.38㎡
出生年份:2020 年
家庭成员:吴敏文、阳建勋、邹竞伟、李宜铮、黄剑斌
环保出行 珍爱飞机稿
“每一个飞机稿都有着它存在的意义,它是设计师难以启齿的‘废稿’,同时也是设计师的修行必经之路。重新解读,定会在未来某处发挥它的价值。”
内容策划 ada
编辑排版 卢俊宇
#SuperNormal Design#超级平常设计
商业策划|空间设计|软装配饰|材料研究
超级平常,2014 年创⽴于⼴东深圳。我们认为惊喜和智慧,都蕴藏在每一个平常的生活中,但经常被我们所忽视或者忘记。我们从一颗平常心开始重新解读,真实感受使用者所处的一切氛围,我们以策展的思维和展览的形式接轨商业品牌、用多元的创意路径去链接场景。
通过设计的力量创造幸福,这是我们的使命
0755-86707310
深圳市南山区沙河街道东方社区深南大道 9019 号东方花园桂花苑裙楼 301C
客服
消息
收藏
下载
最近

































