查看完整案例

收藏

下载
#飞机稿02号
RED HOTEL
“真的光芒就是美”
这是建筑大师密斯-凡德罗
从哲学家圣-奥古斯丁那里窥探出的
通往事实真理的隐秘入口
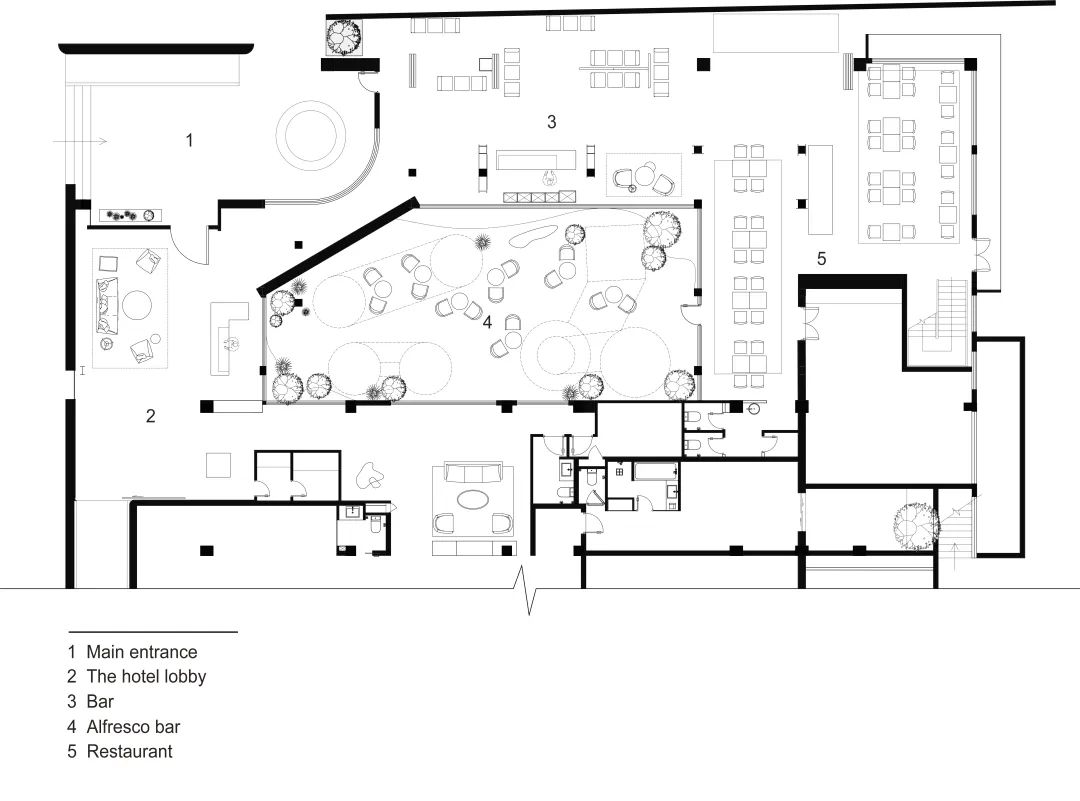
老建筑旧改最直接的处理方式
就是以平淡如水的叙事口吻
直接切入到建筑的本质
空间、构造、模数和形态
设计当中没有过多的装饰
隔阂的空间被自然打破
然后重组
内外贯穿
没有骤然的分界,
形成流通
这个时候,光也冲破禁锢
在空间中流淌
飞机稿02#档案信息
档案名称
RED HOTEL
生源地
深圳市超级平常空间设计有限公司
体积
950㎡
出生年份
2019年
家庭成员
吴敏文 阳建勋
王创哲
杨梅 关天达
环保出行 珍爱飞机稿
“每一个飞机稿都有着它存在的意义,
它是设计师难以启齿的“废稿”,
同时也是设计师的修行必经之路。
重新解读,定会在未来某处发挥它的价值。”
内容策划
ada
编辑排版
卢俊宇
#
SuperNormal Design
#超级平常设计
商业策划 | 空间设计 | 软装配饰 | 材料研究
超级平常,2014年创⽴于⼴东深圳。我们认为惊喜和智慧,都蕴藏在每一个平常的生活中,但经常被我们 所忽视或者忘记。我们从一颗平常心开始重新解读,真实感受使用者所处的一切氛围, 我们以策展的思维和展览的形式接轨商业品牌、用多元的创意路径去 链接场景。
通过设计的力量创造幸福,这是我们的使命
0755-86707310
深圳市南山区沙河街道东方社区深南大道9019号东方花园桂花苑裙楼301C
客服
消息
收藏
下载
最近































